PROJEKTIST
Luise 13 on sulle, kui sul on oluline elada naabruskonnas, mis ei ole igav ja majas, mis ei ole tavaline.
Luise 13 maja asub Luise tänava ääres. Seda ümbritsevad nii ajaloolised puitmajad, kui ka veidi uuemad kivimajad. Luise 13 on eri arhitektuuristiilide ühendavaks lüliks ning sulandub oma keskkonda ideaalselt.
Ümbruskonna pargid on laste-ja loomasõbralikud. Rohkelt lastemänguväljakuid annavad su pere pisematele ja sulle endalegi võimaluse linnamelust eemalduda ning akusid laadida.
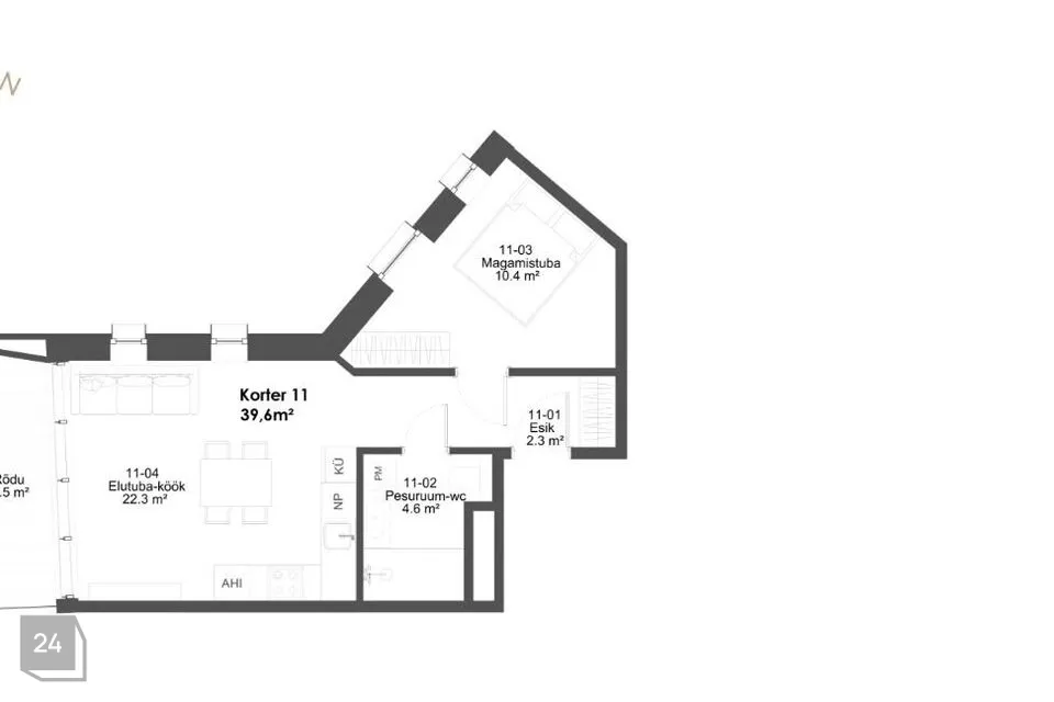
KORTER
Korter nr 11 asub 3. korrusel ja on 2toaline. Korteri neto pind on 40m2. Korteril on 6.6 m2 terrass. Kõrged laed - 2,8m. Võimaik juurde osta parkimiskoht ja panipaik.
Korterite asetus ning fassaad aitavad tänavamürast eralduda.
ASUKOHT
Luise 13 asukoht on nii praktiline kui ka põnev. Kassisaba ise on ajalooline ja karakteriga piirkond, kus on lastel mõnus üles kasvada. Samal ajal on ümbruskonnas Vanalinn, Tõnismägi ja Kristiine. Seega on jalutuskäigu kaugusel kaubanduskeskused, koolid, lasteaiad, pargid ja paljud muud asutused.
Naabruses on kõik eluks vajalik olemas – poed, kohvikud, ilusalongid, kliinikud, bussipeatused, koertepargid.
Arhitektuuri -ja kultuurinautlejad saavad aega veeta Vanalinna tänavatel, teatrites, näitustel, jne. Meelelahutuse sõbrad leiavad aga kiirelt tee kesklinna kinodesse, kohvikutesse ja baaridesse. Ning trennisõpradel on samuti rohkelt valikut nii väljas kui sees treenimiseks.
PARKIMINE
Luises elades saad vajalikud toimetused tehtud ka ilma autota, sest ühistransport on vaat et ideaalne. Aga kui tahad siiski autoga sõita, siis pargi auto maja maa-alusesse parklasse. Parkimiskoha hind on 19 000 eurot. Panipaik 6 000 eur.
Küsi lisa!
Luise 13 on sulle, kui sul on oluline elada naabruskonnas, mis ei ole igav ja majas, mis ei ole tavaline.
Luise 13 maja asub Luise tänava ääres. Seda ümbritsevad nii ajaloolised puitmajad, kui ka veidi uuemad kivimajad. Luise 13 on eri arhitektuuristiilide ühendavaks lüliks ning sulandub oma keskkonda ideaalselt.
Ümbruskonna pargid on laste-ja loomasõbralikud. Rohkelt lastemänguväljakuid annavad su pere pisematele ja sulle endalegi võimaluse linnamelust eemalduda ning akusid laadida.
KORTER
Korter nr 11 asub 3. korrusel ja on 2toaline. Korteri neto pind on 40m2. Korteril on 6.6 m2 terrass. Kõrged laed - 2,8m. Võimaik juurde osta parkimiskoht ja panipaik.
Korterite asetus ning fassaad aitavad tänavamürast eralduda.
ASUKOHT
Luise 13 asukoht on nii praktiline kui ka põnev. Kassisaba ise on ajalooline ja karakteriga piirkond, kus on lastel mõnus üles kasvada. Samal ajal on ümbruskonnas Vanalinn, Tõnismägi ja Kristiine. Seega on jalutuskäigu kaugusel kaubanduskeskused, koolid, lasteaiad, pargid ja paljud muud asutused.
Naabruses on kõik eluks vajalik olemas – poed, kohvikud, ilusalongid, kliinikud, bussipeatused, koertepargid.
Arhitektuuri -ja kultuurinautlejad saavad aega veeta Vanalinna tänavatel, teatrites, näitustel, jne. Meelelahutuse sõbrad leiavad aga kiirelt tee kesklinna kinodesse, kohvikutesse ja baaridesse. Ning trennisõpradel on samuti rohkelt valikut nii väljas kui sees treenimiseks.
PARKIMINE
Luises elades saad vajalikud toimetused tehtud ka ilma autota, sest ühistransport on vaat et ideaalne. Aga kui tahad siiski autoga sõita, siis pargi auto maja maa-alusesse parklasse. Parkimiskoha hind on 19 000 eurot. Panipaik 6 000 eur.
Küsi lisa!
















































