Hea meelega tutvustame Teile uut arendust Pirital!
Tegemist on vaikse piirkonnaga mõnusas männimetsas Kloostrimetsa asumis. Selle kauni koha südamesse kerkivad kolmekorruselised uued A-energiaklassi kortermajad, milledes on modernsed kõrgete lagedega valgusküllased korterid. See kodu on loodud neile, kes tahab nautida rohelust, värsket õhku ning sportimisvõimalusi linna mürast eemal.
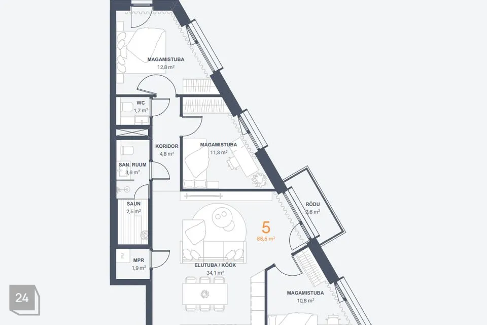
Kloostrimetsa 72-5
MIKS VALIDA KORTER SIIA:
- Kõrged laed (2.85m)
- Saun
- Klaasitud rõdu (4.2 + 3.6 m2)
- Bisly targa kodu lahendus
- A-energiaklass
- Võimalus valida siseviimistlust
- Autonoomne küttesüsteem
- Katusel päikesepaneelid
- Mänguväljak ja turvaline keskkond
- Elektriauto laadimispunkti ja konditsioneeri valmidus
- Läheduses kool, lasteaed, raamatukogu, pood, bussipeatus, perearstikeskus, mets ja meri
Asukoha väärtust tõstavad Tallinna Teletorn ja Botaanikaaed, kuid tõeliseks pärliks on kaunis ümbritsev loodus ja mets, kust ainult 5 min autosõidu kaugusel on meri ning 15 min kaugusel Tallinna kesklinn. Kõik eluks vajalik on käeulatuses!
Hoonete arhitektuurilise lahenduse taga on innovaatiline Arhitektuuribüroo Korrus, kellel kogemusi aastast 2005. Siseviimistluste pakette on kokku pannud siseaehitekt Merle Eek.
Rohkem infot: https://avanex.ee/kloostrimetsa-70/
NB! Pildid on illustratiivse iseloomuga.
















