See kaasaegne hoone on ehitatud kvaliteetsetest materjalidest, kus kandvad seinad on raudbetoonelementidest ja korterivahelised seinad on tugevad täisbetoneeritud õõnesplokkmüüritised. Välisseinad on soojustatud 200 mm paksuse kivivillaga, tagades sooja ja mugava elukeskkonna. Kaugküttesüsteem, radiaatorid tubades ja põrandaküte vannitoas ja WC-s tõstavad elamismugavust. Korteris on ka eraldi ventilatsiooniagregaat ja PVC kolmekordsed aknad argooniga, mis tagavad madala energiakasutuse ja vaikse sisekliima.
Korter
korteri üldpind on 69m2+7m2 klaasitud panoraam rõdu
Korter on loodud peresõbralikuks, sisaldades avarat esikut peegelkapi ja kahe mugava magamistoaga. Master magamistoas on eraldi walk inn garderoob . Vannituba ja WC ja erladi kodu painipaik kujs paikneb pesumasin ning kuivati lisavad mugavust ning avatud planeeringuga elutuba ja köök on ideaalsed koosolekuteks ja külaliste vastuvõtmiseks. Suurel klaasitud rõdul saab nautida päikesetõuse ja -loojanguid,
Asukoht
Asukoht on logistiliselt suurepärane – linna pääseb mugavalt bussiga, autoga on veelgi kiirem. Läheduses asuvad mitmed haridusasutused, sealhulgas koolid, lasteaiad ja huviringid. Sportimise armastajatele on võimalik valida sobiv jõusaal.
Lisad
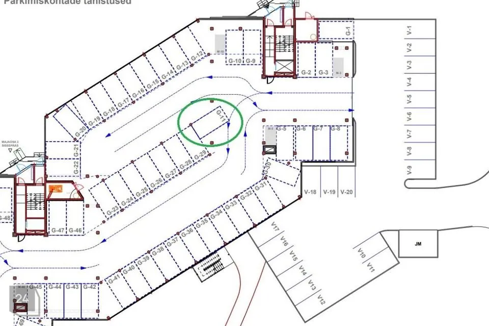
Mugav parkimine eraldi parkimiskohas maja garaažis. (hinna sees) Panipaik on hinna sees, tagades piisavalt ruumi kõikide asjade jaoks.
Ärge jääge ilma võimalusest osta see ideaalne kodu! Helistage ja leppige kokku aeg korteriga tutvumiseks!
Korter
korteri üldpind on 69m2+7m2 klaasitud panoraam rõdu
Korter on loodud peresõbralikuks, sisaldades avarat esikut peegelkapi ja kahe mugava magamistoaga. Master magamistoas on eraldi walk inn garderoob . Vannituba ja WC ja erladi kodu painipaik kujs paikneb pesumasin ning kuivati lisavad mugavust ning avatud planeeringuga elutuba ja köök on ideaalsed koosolekuteks ja külaliste vastuvõtmiseks. Suurel klaasitud rõdul saab nautida päikesetõuse ja -loojanguid,
Asukoht
Asukoht on logistiliselt suurepärane – linna pääseb mugavalt bussiga, autoga on veelgi kiirem. Läheduses asuvad mitmed haridusasutused, sealhulgas koolid, lasteaiad ja huviringid. Sportimise armastajatele on võimalik valida sobiv jõusaal.
Lisad
Mugav parkimine eraldi parkimiskohas maja garaažis. (hinna sees) Panipaik on hinna sees, tagades piisavalt ruumi kõikide asjade jaoks.
Ärge jääge ilma võimalusest osta see ideaalne kodu! Helistage ja leppige kokku aeg korteriga tutvumiseks!





















































