VÕL LEPINGUGA VAID 5% SISSEMAKS
Tule avasta oma uus kodu Tallinna südames!
Valmimisaeg 2026 veebruar!
Lisainfo : https://grunbergi.ee/
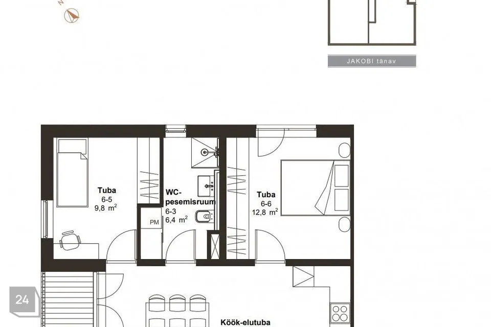
Pakkumises on 72,2 m2 suurune sisehoovi vaatega rõduga korter maja teisel korrusel.
Korteris on avar köök-elutuba, kaks magamistuba, dushiga vannituba ning eraldi tualettruum külalistele. Korteril on ka mõnus 6.8 m2 suurune katusealune rõdu.
Grünbergi Maja on kaasaegne viiekorruseline elamu, mille arhitektuur paistab silma elegantsi ja funktsionaalsuse poolest.
Majas on kokku 17 valgusküllast ja modernset korterit ning 3 äripinda, mis pakuvad ideaalset kombinatsiooni linnamugavustest ja rahulikust elukeskkonnast.
Kaunis rohelise hooviga kodu
Grünbergi Maja hooviala on kujundatud roheliseks puhkealaks, pakkudes privaatsust ja võimalust nautida vaikust keset linna. Enamikul korteritest on rõdud, kus saab nautida vaadet rohelusele. Hoone maa-alusel korrusel on parkimiskohad. Parkimiskoha hind on 25 000.-
See on ideaalne paik neile, kes soovivad elada kaasaegses, hubases ja inimsõbralikus keskkonnas.
Kõik eluks vajalik käeulatuses
*Lähedal asuvad haridusasutused: Vahetus läheduses on uus Liivamäe lasteaed ja Juhkentali Gümnaasium, pakkudes suurepäraseid haridusvõimalusi peredele.
*Kaubandus ja vaba aeg: Vaid lühikese jalutuskäigu kaugusel asuvad peatselt renoveeritav Keskturg, Stockmanni kaubamaja ja Rimi väikepood – kõik vajalik igapäevaseks eluks on siinsamas.
Linna südames, ideaalsete ühendustega
Grünbergi Maja asukoht kolme magistraaltänava – Tartu maantee, Juhkentali ja Odra tänava – vahel pakub suurepäraseid ühistranspordiühendusi ning kiiret ligipääsu kõikidesse Tallinna linnaosadesse.
Hoone eskiislahenduse on koostanud tunnustatud arhitekt Ignar Fjuk (ARHITEKTUURIBÜROO IGNAR FJUK)
Ehituskvaliteedi tagab pikaajalise kogemusega kinnisvara arendaja Capitall Mill.
Majas on veel pakkuda erinevate planeeringute ja suurustega 3-4 toalisi kortereid.
Sisekujunduses on valida 3 paketi vahel.
Võta meiega lisainfo saamiseks ühendust
Võta meiega lisainfo saamiseks ühendust juba täna ja leia oma uus kodu või äri linnasüdames, kus linn ja maarohelus kohtuvad.
JAGA MINU KONTAKTI KÕIGILE, KES VAJAVAD KINNISVARANÕU!
- - - - - - - - - -
Telli hindamine UUS MAA Kinnisvarabüroolt https://uusmaa.ee/teenused/hindamine/
ning saad:
- Eksperthinnangu kuni 20% soodsamalt kui võtad koduga seotud laenu Swedbankist
- Pankadest parimad kodulaenutingimused
- Kiire, kvaliteetse ning usaldusväärse hindamisteenuse Eestis
UUS MAA KINNISVARABÜROO EKSPERTHINNANGUID AKTSEPTEERIVAD KÕIK FINANTSASUTUSED.
- - - - - - - - - -
Liitu Uus Maa uudiskirjaga ja saa homset kinnisvarainfot juba täna!
https://www.uusmaa.ee/uudiskirjagaliitumine/
- - - - - - - - - -
Kodu aitab osta Swedbank.
Pakkumise saamiseks kasuta koodi UUSMAA ja Sind teenindatakse eelisjärjekorras.
Võtame ühendust 1 tööpäeva jooksul.
Uus Maa kliendile soodsam lepingutasu. Küsi täpsemat infot maaklerilt.
Finantsteenuseid pakub Swedbank AS. Tutvu tingimustega, pea nõu.
Tule avasta oma uus kodu Tallinna südames!
Valmimisaeg 2026 veebruar!
Lisainfo : https://grunbergi.ee/
Pakkumises on 72,2 m2 suurune sisehoovi vaatega rõduga korter maja teisel korrusel.
Korteris on avar köök-elutuba, kaks magamistuba, dushiga vannituba ning eraldi tualettruum külalistele. Korteril on ka mõnus 6.8 m2 suurune katusealune rõdu.
Grünbergi Maja on kaasaegne viiekorruseline elamu, mille arhitektuur paistab silma elegantsi ja funktsionaalsuse poolest.
Majas on kokku 17 valgusküllast ja modernset korterit ning 3 äripinda, mis pakuvad ideaalset kombinatsiooni linnamugavustest ja rahulikust elukeskkonnast.
Kaunis rohelise hooviga kodu
Grünbergi Maja hooviala on kujundatud roheliseks puhkealaks, pakkudes privaatsust ja võimalust nautida vaikust keset linna. Enamikul korteritest on rõdud, kus saab nautida vaadet rohelusele. Hoone maa-alusel korrusel on parkimiskohad. Parkimiskoha hind on 25 000.-
See on ideaalne paik neile, kes soovivad elada kaasaegses, hubases ja inimsõbralikus keskkonnas.
Kõik eluks vajalik käeulatuses
*Lähedal asuvad haridusasutused: Vahetus läheduses on uus Liivamäe lasteaed ja Juhkentali Gümnaasium, pakkudes suurepäraseid haridusvõimalusi peredele.
*Kaubandus ja vaba aeg: Vaid lühikese jalutuskäigu kaugusel asuvad peatselt renoveeritav Keskturg, Stockmanni kaubamaja ja Rimi väikepood – kõik vajalik igapäevaseks eluks on siinsamas.
Linna südames, ideaalsete ühendustega
Grünbergi Maja asukoht kolme magistraaltänava – Tartu maantee, Juhkentali ja Odra tänava – vahel pakub suurepäraseid ühistranspordiühendusi ning kiiret ligipääsu kõikidesse Tallinna linnaosadesse.
Hoone eskiislahenduse on koostanud tunnustatud arhitekt Ignar Fjuk (ARHITEKTUURIBÜROO IGNAR FJUK)
Ehituskvaliteedi tagab pikaajalise kogemusega kinnisvara arendaja Capitall Mill.
Majas on veel pakkuda erinevate planeeringute ja suurustega 3-4 toalisi kortereid.
Sisekujunduses on valida 3 paketi vahel.
Võta meiega lisainfo saamiseks ühendust
Võta meiega lisainfo saamiseks ühendust juba täna ja leia oma uus kodu või äri linnasüdames, kus linn ja maarohelus kohtuvad.
JAGA MINU KONTAKTI KÕIGILE, KES VAJAVAD KINNISVARANÕU!
- - - - - - - - - -
Telli hindamine UUS MAA Kinnisvarabüroolt https://uusmaa.ee/teenused/hindamine/
ning saad:
- Eksperthinnangu kuni 20% soodsamalt kui võtad koduga seotud laenu Swedbankist
- Pankadest parimad kodulaenutingimused
- Kiire, kvaliteetse ning usaldusväärse hindamisteenuse Eestis
UUS MAA KINNISVARABÜROO EKSPERTHINNANGUID AKTSEPTEERIVAD KÕIK FINANTSASUTUSED.
- - - - - - - - - -
Liitu Uus Maa uudiskirjaga ja saa homset kinnisvarainfot juba täna!
https://www.uusmaa.ee/uudiskirjagaliitumine/
- - - - - - - - - -
Kodu aitab osta Swedbank.
Pakkumise saamiseks kasuta koodi UUSMAA ja Sind teenindatakse eelisjärjekorras.
Võtame ühendust 1 tööpäeva jooksul.
Uus Maa kliendile soodsam lepingutasu. Küsi täpsemat infot maaklerilt.
Finantsteenuseid pakub Swedbank AS. Tutvu tingimustega, pea nõu.































