Soovid elada Kadrioru ühes silmapaistvama arhitektuuriga majas? Sinu võimalus soetada maitsekalt renoveeritud korter mille sarnast on müügis üliharva.
KORTER
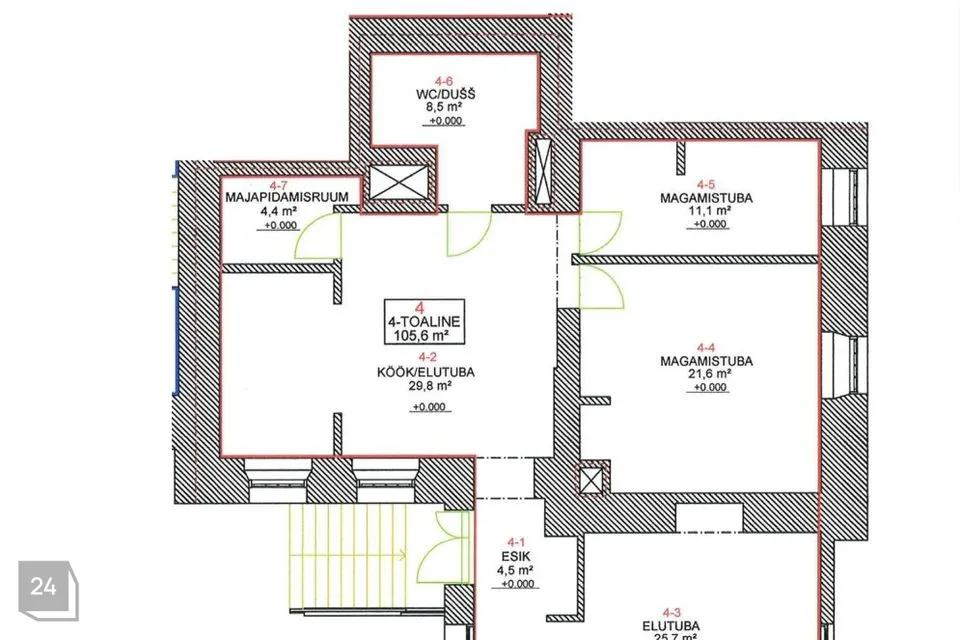
Müügile on tulnud stiilne 4-toaline, eraldi sissepääsuga, korter hoovimajas Narva mnt 46. Ajaloolises hoones, kus on vaid 16 korterit, on oskuslikult ühendatud juugendstiilile omased detailid ja kaasaegsed mugavused. Kõrged laed, avarad ruumid ja elegantselt valitud siseviimistlus loovad tervikliku atmosfääri. Korter sobib ka stuudioks või äripinnaks.
Korteri koosseisu kuuluvad:
Esik (4,5 m²): Privaatne sissepääs otse õuest. Mahukas seinakapp üleriietele ja jalatsitele.
Elutuba (25,7 m²): Avar ja valgusküllane suurte akendega ruum, ideaalne nii lõõgastumiseks kui ka külaliste vastuvõtuks, antud tuba saab kasutada ka magamistoana või muul otstarbel.
Köök/elutuba (29,8 m²): Köögis korralik köögimööbel koos integreeritud tehnikaga (külmkapp, pliit, ahi, nõudepesumasin), elutoas jääb piisavalt ruumi suure söögilaua jaoks.
Magamistuba (21,6 m²): Ruumikas magamistuba koos sisseehitatud garderoobiga, mis pakub piisavalt hoiuruumi ja loob korrastatud elukeskkonna.
Magamistuba (11,1 m²): Sobib ideaalselt ka kodukontoriks. Mahukas seinakapp.
WC/Duširuum (8,5 m²): Suur ja avar duširuum, kus on hea ruumilahendus ja palju nutikat kapiruumi.
Majapidamisruum (4,4 m²): Hetkel kasutusel panipaigana, soovi korral saab sinna sauna või tualeti ehitada.
Korter on täielikult renoveeritud ja hästi hoitud, põrandal naturaalne parkett, seinad värvitud heledates toonides, vannitoa põrand plaaditud, hea sisekliima eest hoolitseb majapõhine soojustagastusega ventilatsioon.
KÕRVALKULUD
Kommunaalid on väga mõistlikud, suvel ca. 200 eur, talvel ca. 400 eur, ühistul laenud puuduvad.
HOONE/PARKIMINE/PANIPAIK
Ajalooline juugendstiilis hoone, projekteeritud tuntud arhitekt Otto Schotti poolt 1911. aastal, on Kadrioru üks silmapaistvamaid arhitektuuripärleid. 2015. aastal teostatud põhjalik renoveerimine tõi esile hoone unikaalsed ajaloolised ja arhitektuurilised väärtused, säilitades ajastutruud detailid ja lisades tänapäevaseid mugavusi.
Igal korteril on oma kindel parkimiskoht turvalises sisehoovis ning ruumikas soe panipaik keldrikorrusel.
Majas tugev KÜ, majale on väljastatud kasutusluba.
ÜMBRUS JA LIIKUVUS
Kadrioru piirkond on üks Tallinna hinnatumaid elupiirkondi, kus ajalooline ja kaasaegne arhitektuur harmooniliselt koos eksisteerivad. Jalutuskäigu kaugusel ootavad rohelised pargid, sealhulgas Kadrioru park ja Eesti ainus barokkloss, mitmed muuseumid, stiilsed kohvikud ja restoranid. Piirkonnas on suurepärased ühistranspordiühendused, mis tagavad kiire ja mugava ligipääsu linna erinevatesse piirkondadesse. Kadrioru ajatu võlu ja väärtus pakuvad ideaalset elukeskkonda neile, kes hindavad kesklinna mugavusi, rikkalikku ajalugu ja rahulikku atmosfääri.
LISAINFO
Kui tunned, et see võiks olla Sinu uus kodu siis võta minuga ühendust!
KORTER
Müügile on tulnud stiilne 4-toaline, eraldi sissepääsuga, korter hoovimajas Narva mnt 46. Ajaloolises hoones, kus on vaid 16 korterit, on oskuslikult ühendatud juugendstiilile omased detailid ja kaasaegsed mugavused. Kõrged laed, avarad ruumid ja elegantselt valitud siseviimistlus loovad tervikliku atmosfääri. Korter sobib ka stuudioks või äripinnaks.
Korteri koosseisu kuuluvad:
Esik (4,5 m²): Privaatne sissepääs otse õuest. Mahukas seinakapp üleriietele ja jalatsitele.
Elutuba (25,7 m²): Avar ja valgusküllane suurte akendega ruum, ideaalne nii lõõgastumiseks kui ka külaliste vastuvõtuks, antud tuba saab kasutada ka magamistoana või muul otstarbel.
Köök/elutuba (29,8 m²): Köögis korralik köögimööbel koos integreeritud tehnikaga (külmkapp, pliit, ahi, nõudepesumasin), elutoas jääb piisavalt ruumi suure söögilaua jaoks.
Magamistuba (21,6 m²): Ruumikas magamistuba koos sisseehitatud garderoobiga, mis pakub piisavalt hoiuruumi ja loob korrastatud elukeskkonna.
Magamistuba (11,1 m²): Sobib ideaalselt ka kodukontoriks. Mahukas seinakapp.
WC/Duširuum (8,5 m²): Suur ja avar duširuum, kus on hea ruumilahendus ja palju nutikat kapiruumi.
Majapidamisruum (4,4 m²): Hetkel kasutusel panipaigana, soovi korral saab sinna sauna või tualeti ehitada.
Korter on täielikult renoveeritud ja hästi hoitud, põrandal naturaalne parkett, seinad värvitud heledates toonides, vannitoa põrand plaaditud, hea sisekliima eest hoolitseb majapõhine soojustagastusega ventilatsioon.
KÕRVALKULUD
Kommunaalid on väga mõistlikud, suvel ca. 200 eur, talvel ca. 400 eur, ühistul laenud puuduvad.
HOONE/PARKIMINE/PANIPAIK
Ajalooline juugendstiilis hoone, projekteeritud tuntud arhitekt Otto Schotti poolt 1911. aastal, on Kadrioru üks silmapaistvamaid arhitektuuripärleid. 2015. aastal teostatud põhjalik renoveerimine tõi esile hoone unikaalsed ajaloolised ja arhitektuurilised väärtused, säilitades ajastutruud detailid ja lisades tänapäevaseid mugavusi.
Igal korteril on oma kindel parkimiskoht turvalises sisehoovis ning ruumikas soe panipaik keldrikorrusel.
Majas tugev KÜ, majale on väljastatud kasutusluba.
ÜMBRUS JA LIIKUVUS
Kadrioru piirkond on üks Tallinna hinnatumaid elupiirkondi, kus ajalooline ja kaasaegne arhitektuur harmooniliselt koos eksisteerivad. Jalutuskäigu kaugusel ootavad rohelised pargid, sealhulgas Kadrioru park ja Eesti ainus barokkloss, mitmed muuseumid, stiilsed kohvikud ja restoranid. Piirkonnas on suurepärased ühistranspordiühendused, mis tagavad kiire ja mugava ligipääsu linna erinevatesse piirkondadesse. Kadrioru ajatu võlu ja väärtus pakuvad ideaalset elukeskkonda neile, kes hindavad kesklinna mugavusi, rikkalikku ajalugu ja rahulikku atmosfääri.
LISAINFO
Kui tunned, et see võiks olla Sinu uus kodu siis võta minuga ühendust!










































