Kaasaegne ja energiasäästlik 3-toaline hommikupäikesega korter!
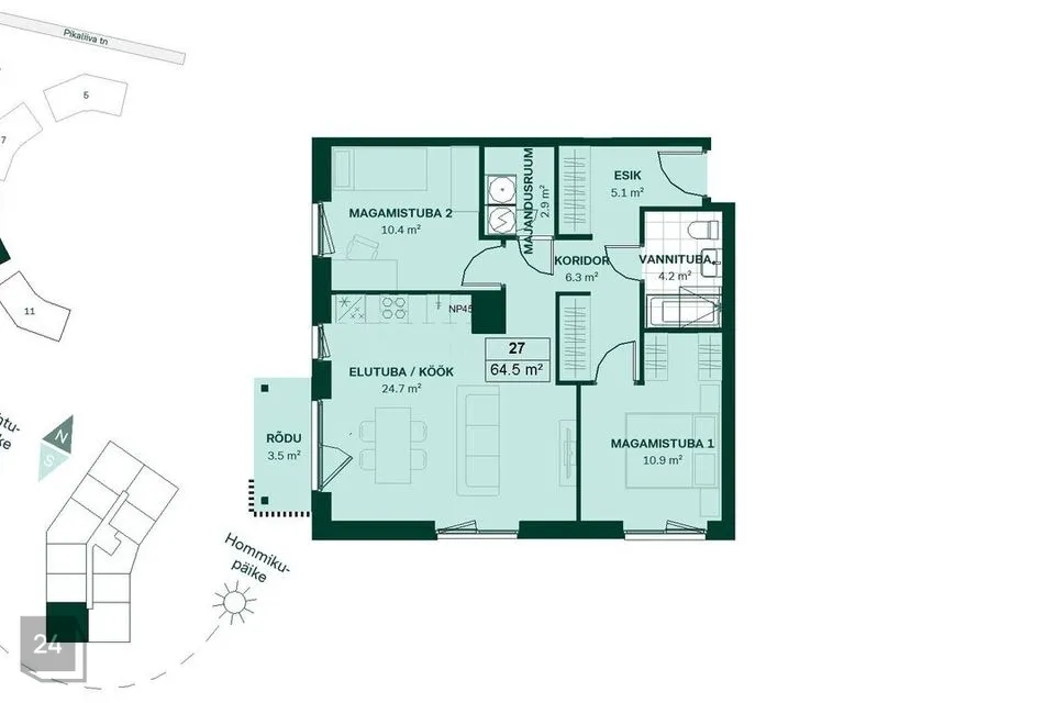
See 64,5 m² suurune kodu pakub läbimõeldud planeeringut, kvaliteetseid materjale ja energiatõhusaid lahendusi. A-energiaklass tagab madalad ülalpidamiskulud ning vesipõrandaküte loob ühtlase ja meeldiva soojusjaotuse. Maast laeni aknad toovad siseruumidesse palju loomulikku valgust, rõhutades avarust ja kaasaegsust.
Elutuba ja köök (24,7 m²) on avar ning valgusküllane, pakkudes mitmekülgseid sisustusvõimalusi. Köök on funktsionaalne ja modernse lahendusega, sobides nii igapäevasteks toimetusteks kui ka suuremateks koosviibimisteks. Rõdu (3,5 m²) pakub ideaalset paika hommikukohvi nautimiseks.
Kaks magamistuba (10,9 m² ja 10,4 m²) pakuvad piisavalt ruumi nii puhkealaks kui ka kodukontoriks. Nutikalt paigutatud majandusruum (2,9 m²) võimaldab pesumasina ja muude kodumasinate paigutust, hoides eluruumid korras ja hästi organiseerituna.
Vannituba (4,2 m²) on ruumikas ning sisustatud kvaliteetsete viimistlusmaterjalidega, tagades mugava ja praktilise kasutuse. Esik (5,1 m²) ja koridor (6,3 m²) on varustatud mahukate panipaikadega, mis võimaldavad igapäevaseid esemeid käepäraselt hoiustada.
Maa-aluse parkla suur osa lisab avarust hoovialale, tagades samal ajal elanikele mugava parkimise, kus sinu auto on alati ilmastikuolude eest kaitstud. Uue kodu hinnas sisaldub eraldiseisev panipaik, kus on mugav hoiustada suuremaid hooajaväliseid asju.
Korter on sissekolimiseks valmis ja sisustamata, pildid on illustratiivsed.
Võta ühendust ja tule tutvuma!
Tutvu lähemalt: bonava.ee/pikaliiva
See 64,5 m² suurune kodu pakub läbimõeldud planeeringut, kvaliteetseid materjale ja energiatõhusaid lahendusi. A-energiaklass tagab madalad ülalpidamiskulud ning vesipõrandaküte loob ühtlase ja meeldiva soojusjaotuse. Maast laeni aknad toovad siseruumidesse palju loomulikku valgust, rõhutades avarust ja kaasaegsust.
Elutuba ja köök (24,7 m²) on avar ning valgusküllane, pakkudes mitmekülgseid sisustusvõimalusi. Köök on funktsionaalne ja modernse lahendusega, sobides nii igapäevasteks toimetusteks kui ka suuremateks koosviibimisteks. Rõdu (3,5 m²) pakub ideaalset paika hommikukohvi nautimiseks.
Kaks magamistuba (10,9 m² ja 10,4 m²) pakuvad piisavalt ruumi nii puhkealaks kui ka kodukontoriks. Nutikalt paigutatud majandusruum (2,9 m²) võimaldab pesumasina ja muude kodumasinate paigutust, hoides eluruumid korras ja hästi organiseerituna.
Vannituba (4,2 m²) on ruumikas ning sisustatud kvaliteetsete viimistlusmaterjalidega, tagades mugava ja praktilise kasutuse. Esik (5,1 m²) ja koridor (6,3 m²) on varustatud mahukate panipaikadega, mis võimaldavad igapäevaseid esemeid käepäraselt hoiustada.
Maa-aluse parkla suur osa lisab avarust hoovialale, tagades samal ajal elanikele mugava parkimise, kus sinu auto on alati ilmastikuolude eest kaitstud. Uue kodu hinnas sisaldub eraldiseisev panipaik, kus on mugav hoiustada suuremaid hooajaväliseid asju.
Korter on sissekolimiseks valmis ja sisustamata, pildid on illustratiivsed.
Võta ühendust ja tule tutvuma!
Tutvu lähemalt: bonava.ee/pikaliiva

























