Uhiuus modernne ja energiatõhus 3-toaline korter suure terrassi ja rõduga.
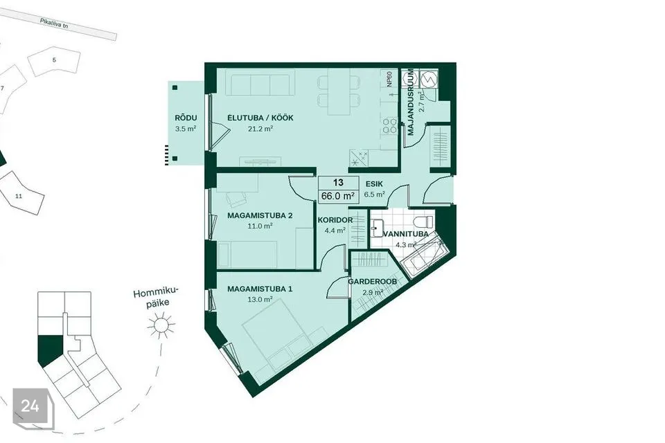
See 66 m² suurune korter ühendab kaasaegse arhitektuuri, energiasäästlikkuse ja läbimõeldud ruumilahenduse. A-energiaklass tagab madalad küttekulud ning vesipõrandaküte loob ühtlase ja meeldiva sisekliima. Maast laeni aknad avardavad ruumi ning toovad sisse rohkelt loomulikku valgust.
Elutuba ja köök (21,2 m²) moodustavad avatud eluala, kus interjöör sulandub sujuvalt väliruumi. Tänu suurtele akendele avaneb vaade terrassile, lisades õhulisust ja avarust. Modernne köök on funktsionaalne ning pakub küllaldaselt tööpinda ja panipaiku.
Korteris on kaks magamistuba (11 m² ja 13 m²), mis sobivad suurepäraselt nii isiklikuks ruumiks kui ka kodukontoriks. Vannituba (4,3 m²) on sisustatud kvaliteetsete materjalidega ning eraldi majandusruum (2,7 m²) tagab mugava pesuhoiustuse ja -hoolduse.
Esik ja koridor (kokku 10 m²) on avarad ning praktiliselt lahendatud, pakkudes rohkelt sisseehitatud panipaiku.
Korteri suurimaks väärtuseks on 3,5 m² rõdu, mis laiendab eluruumi ning võimaldab nautida hommikupäikest ja avarat väliruumi.
Samuti on suures magamistoas eraldi ruum walk-in garderoobile (2.9 m²), mis võimaldab asju mugavalt hoiustada.
Tänu energiasäästlikele lahendustele, kvaliteetsetele viimistlusmaterjalidele ja läbimõeldud planeeringule on see kodu ideaalne neile, kes hindavad mugavust, stiili ja funktsionaalsust.
Maa-aluse parkla suur osa lisab avarust hoovialale, tagades samal ajal elanikele mugava parkimise, kus sinu auto on alati ilmastikuolude eest kaitstud. Uue kodu hinnas sisaldub eraldiseisev panipaik, kus on mugav hoiustada suuremaid hooajaväliseid asju.
Korter on sisustamata, pildid on illustratiivsed.
Võta ühendust ja tule tutvu sisustatud näidiskorteri ja valminud koduga!
Tutvu lähemalt: bonava.ee/pikaliiva
See 66 m² suurune korter ühendab kaasaegse arhitektuuri, energiasäästlikkuse ja läbimõeldud ruumilahenduse. A-energiaklass tagab madalad küttekulud ning vesipõrandaküte loob ühtlase ja meeldiva sisekliima. Maast laeni aknad avardavad ruumi ning toovad sisse rohkelt loomulikku valgust.
Elutuba ja köök (21,2 m²) moodustavad avatud eluala, kus interjöör sulandub sujuvalt väliruumi. Tänu suurtele akendele avaneb vaade terrassile, lisades õhulisust ja avarust. Modernne köök on funktsionaalne ning pakub küllaldaselt tööpinda ja panipaiku.
Korteris on kaks magamistuba (11 m² ja 13 m²), mis sobivad suurepäraselt nii isiklikuks ruumiks kui ka kodukontoriks. Vannituba (4,3 m²) on sisustatud kvaliteetsete materjalidega ning eraldi majandusruum (2,7 m²) tagab mugava pesuhoiustuse ja -hoolduse.
Esik ja koridor (kokku 10 m²) on avarad ning praktiliselt lahendatud, pakkudes rohkelt sisseehitatud panipaiku.
Korteri suurimaks väärtuseks on 3,5 m² rõdu, mis laiendab eluruumi ning võimaldab nautida hommikupäikest ja avarat väliruumi.
Samuti on suures magamistoas eraldi ruum walk-in garderoobile (2.9 m²), mis võimaldab asju mugavalt hoiustada.
Tänu energiasäästlikele lahendustele, kvaliteetsetele viimistlusmaterjalidele ja läbimõeldud planeeringule on see kodu ideaalne neile, kes hindavad mugavust, stiili ja funktsionaalsust.
Maa-aluse parkla suur osa lisab avarust hoovialale, tagades samal ajal elanikele mugava parkimise, kus sinu auto on alati ilmastikuolude eest kaitstud. Uue kodu hinnas sisaldub eraldiseisev panipaik, kus on mugav hoiustada suuremaid hooajaväliseid asju.
Korter on sisustamata, pildid on illustratiivsed.
Võta ühendust ja tule tutvu sisustatud näidiskorteri ja valminud koduga!
Tutvu lähemalt: bonava.ee/pikaliiva







































