https://kalevimaja.ee/
Aknad ja rõduuksed on 3x klaaspaketiga saksa tüüpi kvaliteetsed puitaknad, mis vastavad kõrgendatud heliisolatsiooninõuetele. Korterite suur väärtus on avarust lisavad kõrged laed.
Juhkentali 14 kinnistule on ehitatud 5. korruseline hoone. Esimesel korrusel asuvad äripinnad ja ülejäänud korrustel korterid. Asudes sisuliselt Kalevi Spordihalli esisel platsil, on hoone planeeritud arhitektuurselt silmapaistava nurgahoonena. Korvpallisaali kaarkatuse kontekst on see, mis on ajendanud kaare motiivi kasutama ka Juhkentali 14 hoonel. Maja välisfassaad on kaetud krohvisüsteemis tellisemotiiviga, mida ilmestavad tugevad kaaremotiivid. Maja all soklikorrusel paiknevad parkimiskohad kortermaja elanikele. Parkimise katusepealne ja hoov on kaetud muruga, ligipääsud asfalteeritud. Sissesõit soklikorrusele on Juhkentali tänavalt. Autovärav avaneb automaatikaga. Lisaks parkimiskohtadele on keldris panipaigad ja tehnilised ruumid.
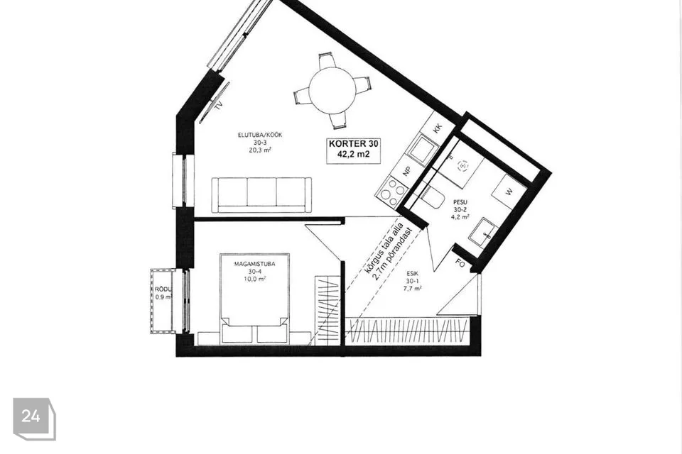
Arhitektid on näinud tublisti vaeva, et viimane kui üks korter oleks suurepärase kaasaegse planeeringuga ja optimaalse ruumikasutusega. Korterite suur väärtus on avarust lisavad kõrged laed. Majal on maa-alune parkla, kust saab liftiga sõita otse oma korrusele, Hoones on panipaigad ja eraldi jalgrattaruum, oma kinnine ja turvaline hoov. Lühidalt - kõik, mida oma kodult tänapäeval ootad.
Hoone on projekteeritud A-klassi. Energiasäästlikud tehnosüsteemid aitavad kaasa energiatõhususele ja ideaalse sisekliima loomisele. Katusel on päikesepaneelid, mis aitavad energiakulusid kontrolli all hoida. Hoone kõikides ruumides on põrandaküte, mis tagab efektiivsema kütmise. Hoone ventilatsioon on soojatagastusega.
Soovi korral lisandub parkimiskoha ja panipaiga maksumus vastavalt 33 000.- ja 5000.-
Aitan Teid kinnisvara müümisel ja üürile andmisel ning hindamisel, ostmisel ja laenu taotlemisel.
Korrektsed lepingud ja professionaalsed tehingud. Tasuta konsultatsioon. Reklaam kõikides suurimates kinnisvaraportaalides, välimeedias ja ajalehtedes.
1Partner on Eesti üks juhtivatest kinnisvarafirmadest, mille põhiteenused on:
- vahendamine
- hindamine
- haldamine
- ehitamine
- arendamine
- investeeringute juhtimine
Kogu teave meie pakkumiste ja teenuste kohta: 1partner.ee
Aknad ja rõduuksed on 3x klaaspaketiga saksa tüüpi kvaliteetsed puitaknad, mis vastavad kõrgendatud heliisolatsiooninõuetele. Korterite suur väärtus on avarust lisavad kõrged laed.
Juhkentali 14 kinnistule on ehitatud 5. korruseline hoone. Esimesel korrusel asuvad äripinnad ja ülejäänud korrustel korterid. Asudes sisuliselt Kalevi Spordihalli esisel platsil, on hoone planeeritud arhitektuurselt silmapaistava nurgahoonena. Korvpallisaali kaarkatuse kontekst on see, mis on ajendanud kaare motiivi kasutama ka Juhkentali 14 hoonel. Maja välisfassaad on kaetud krohvisüsteemis tellisemotiiviga, mida ilmestavad tugevad kaaremotiivid. Maja all soklikorrusel paiknevad parkimiskohad kortermaja elanikele. Parkimise katusepealne ja hoov on kaetud muruga, ligipääsud asfalteeritud. Sissesõit soklikorrusele on Juhkentali tänavalt. Autovärav avaneb automaatikaga. Lisaks parkimiskohtadele on keldris panipaigad ja tehnilised ruumid.
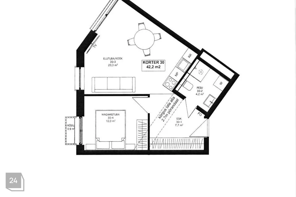
Arhitektid on näinud tublisti vaeva, et viimane kui üks korter oleks suurepärase kaasaegse planeeringuga ja optimaalse ruumikasutusega. Korterite suur väärtus on avarust lisavad kõrged laed. Majal on maa-alune parkla, kust saab liftiga sõita otse oma korrusele, Hoones on panipaigad ja eraldi jalgrattaruum, oma kinnine ja turvaline hoov. Lühidalt - kõik, mida oma kodult tänapäeval ootad.
Hoone on projekteeritud A-klassi. Energiasäästlikud tehnosüsteemid aitavad kaasa energiatõhususele ja ideaalse sisekliima loomisele. Katusel on päikesepaneelid, mis aitavad energiakulusid kontrolli all hoida. Hoone kõikides ruumides on põrandaküte, mis tagab efektiivsema kütmise. Hoone ventilatsioon on soojatagastusega.
Soovi korral lisandub parkimiskoha ja panipaiga maksumus vastavalt 33 000.- ja 5000.-
Aitan Teid kinnisvara müümisel ja üürile andmisel ning hindamisel, ostmisel ja laenu taotlemisel.
Korrektsed lepingud ja professionaalsed tehingud. Tasuta konsultatsioon. Reklaam kõikides suurimates kinnisvaraportaalides, välimeedias ja ajalehtedes.
1Partner on Eesti üks juhtivatest kinnisvarafirmadest, mille põhiteenused on:
- vahendamine
- hindamine
- haldamine
- ehitamine
- arendamine
- investeeringute juhtimine
Kogu teave meie pakkumiste ja teenuste kohta: 1partner.ee














































