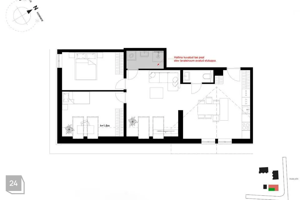
See on hubane katusealune 3-toaline kodu, mis vaatab Magdaleena tänava poole ning asub hoone kolmandal korrusel. Siin on kuni 4,5 meetrit kõrged kaldlaed. Korteris on eraldi majapidamisruum. Kodude sisearhitektuur on inspireeritud uue ja vana põnevast dialoogist. Põrandal on halli tooni kalasabaparkett, 2,3 meetri kõrgused siseuksed on valged. Ornamentidega keraamiline plaat viitab hoone väärikale ajaloole, kuid mõjub samas ka moodsalt. Sanitaartehnika on harjatud grafiiditooni. Selle kodu detailivalik (ukselingid, pistikud/lülitid ning siinivalgustid) on mustad. Vannitoa kohale tekib väike panipaigaruum või lavats.
Maja valmib 2024. aasta algul.
Koos Eek & Mutso arhitektuuribürooga loome Magdaleenasse uued kodud. Siia tulevad mõnusalt tänapäevased korterid ja oma suur ja kinnine salaaed, mis on mõeldud ainult majaelanikele. Siin saad end tunda sama privaatselt kui oma kodus.
Aiaga piiratud õuealal asub kokku neli maja. Esimeses etapis valmivad 2023. aasta alguses kaks maja 20 koduga ja teises etapis 10 koduga maja ning 4-toaline ühepereelamu.
Magdaleena tänav asub kesklinnas Kitseküla asumis. Mõneminutilise jalutuskäigu kaugusel on erinevad rongi-, trammi- ja bussipeatused, kust on mugav liikuda nii südalinna kui ka näiteks Ülemiste linnakusse. Ümber nurga asuvad Kullatera ja Magdaleena lasteaiad. Ühe trammipeatuse kaugusel asub Tallinna Ühisgümnaasium ning paari peatuse kaugusel kõik ülejäänud kesklinna koolid.
Majade vahel on roheline aiaala, kuhu tehakse elanikele grillimisnurk, pergola, pinksilaud ning lastele erinevad atraktsioonid.
Maja valmib 2024. aasta algul.
Koos Eek & Mutso arhitektuuribürooga loome Magdaleenasse uued kodud. Siia tulevad mõnusalt tänapäevased korterid ja oma suur ja kinnine salaaed, mis on mõeldud ainult majaelanikele. Siin saad end tunda sama privaatselt kui oma kodus.
Aiaga piiratud õuealal asub kokku neli maja. Esimeses etapis valmivad 2023. aasta alguses kaks maja 20 koduga ja teises etapis 10 koduga maja ning 4-toaline ühepereelamu.
Magdaleena tänav asub kesklinnas Kitseküla asumis. Mõneminutilise jalutuskäigu kaugusel on erinevad rongi-, trammi- ja bussipeatused, kust on mugav liikuda nii südalinna kui ka näiteks Ülemiste linnakusse. Ümber nurga asuvad Kullatera ja Magdaleena lasteaiad. Ühe trammipeatuse kaugusel asub Tallinna Ühisgümnaasium ning paari peatuse kaugusel kõik ülejäänud kesklinna koolid.
Majade vahel on roheline aiaala, kuhu tehakse elanikele grillimisnurk, pergola, pinksilaud ning lastele erinevad atraktsioonid.





















