Korterid on valmis ja detsembri alguses saad juba sisse kolida!
Korterite sissemaks on ainult 5% ja meie aitame müüa Sinu praeguse kodu!
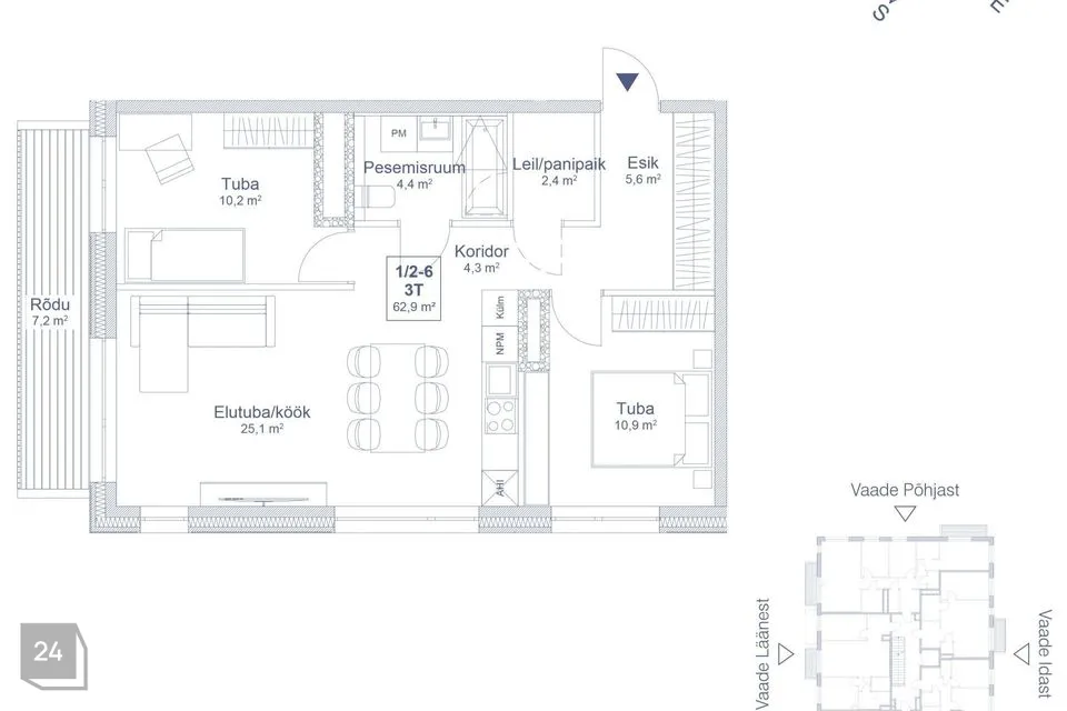
Müüa 3-toaline korter Saue keskuses, 2025. a lõpus valmivas A-energiaklassi majas.
5-kordse maja 3. korrusel asuvas nurgapealses korteris saab nautida kogu päeva päikest. Korteris on Hall siseviimistluspakett ja pesuruumis on dušinurk. Korteri juurde kuulub suur rõdu 7,2 m².
NB! Kuulutuse juures olevad pildid on näidiskorterist ning välipildid on 3D visualiseering.
Sama planeeringuga on ka:
4. korrusel korter nr 11.
Korteri hinnas sisaldub siseviimistlus ja sanitaartehnika.
Korteri hinnale lisandub:
Panipaik 1. korrusel: 4000 €
Parkimiskoht hoovis: 6000 €, varjualuses: 8000 €
Jahutusseade elutoas: 4 000 €.
ARENDUSE TUTVUSTUS
Saue keskuses valmivad 2025. aasta lõpus endise tööstusmaastiku asemele kaks kortermaja äripindade ja 31 koduga. Kvaliteetsed ehitusmaterjalid, korteripõhine soojustagastusega ventilatsioonisüsteem ja A-energiaklass tagavad mõnusa sisekliima ja mõistlikud energiakulud ning võimaldavad kodu ostmisel saada pankadelt parimad laenutingimused.
Keskuse Kodude projekti arendavad KIN Kinnisvara ja PSP Capital. Projekti autoriteks on tunnustatud PIN Arhitektid ja ehitaja on pikaajalise korterelamute rajamise kogemusega Riser Ehitus.
Olulised märksõnad:
* 2-4-toalised korterid suurusega 49,4-93,1 m²;
* kaugküttel põhinev vesipõrandaküte, tubade kaupa reguleeritav;
* igal korteril on rõdu või terrass;
* sisearhitekt Aet Sanderi disainitud kolm kaunist siseviimistluspaketti;
* iga korteri jaoks on panipaik 1. korrusel;
* lift tagab mugava koju jõudmise igas vanuses elanikele;
* viimase korruse korterites on jahutus standardis, teistes korterites saab jahutuse soetada lisatasu eest – valmidus on olemas;
* parkimiskohti on eraparklas 32 ja avalikus parkimises 18 – nii on tagatud piisavalt parkimisruumi nii elanikele kui külalistele. Osad parkimiskohad on varjualuses;
* elektriautode jaoks on laadijate rajamise valmidus;
* majade katustele rajatakse päikesepark.
Saue on looduskaunis ja väljakujunenud elukeskkond neile, kes hindavad väiksema linna võlusid, turvalisust ja rahulikumat elutempot.
Lasteaed, kool, terviserajad, poed, söögikohad ja kõik muu eluks vajalik on siin lühikese jalutuskäigu kaugusel.
Rattaga pääseb mööda kergliiklusteid mugavalt ümberkaudsetesse asulatesse ja rongiga jõuab poole tunniga Tallinna südalinna tööle või mõnusat õhtut nautima.
Vaata täiendavat infot arenduse kodulehelt https://keskusekodud.ee ja broneeri oma uus kodu juba täna!
JAGA MINU KONTAKTI KÕIGILE, KES VAJAVAD KINNISVARANÕU!
- - - - - - - - - -
Telli hindamine UUS MAA Kinnisvarabüroolt https://uusmaa.ee/teenused/hindamine/
ning saad:
- Eksperthinnangu kuni 20% soodsamalt kui võtad koduga seotud laenu Swedbankist
- Pankadest parimad kodulaenutingimused
- Kiire, kvaliteetse ning usaldusväärse hindamisteenuse Eestis
UUS MAA KINNISVARABÜROO EKSPERTHINNANGUID AKTSEPTEERIVAD KÕIK FINANTSASUTUSED.
- - - - - - - - - -
Liitu Uus Maa uudiskirjaga ja saa homset kinnisvarainfot juba täna!
https://www.uusmaa.ee/uudiskirjagaliitumine/
- - - - - - - - - -
Kodu aitab osta Swedbank.
Pakkumise saamiseks kasuta koodi UUSMAA ja Sind teenindatakse eelisjärjekorras.
Võtame ühendust 1 tööpäeva jooksul.
Uus Maa kliendile soodsam lepingutasu. Küsi täpsemat infot maaklerilt.
Finantsteenuseid pakub Swedbank AS. Tutvu tingimustega, pea nõu.
Korterite sissemaks on ainult 5% ja meie aitame müüa Sinu praeguse kodu!
Müüa 3-toaline korter Saue keskuses, 2025. a lõpus valmivas A-energiaklassi majas.
5-kordse maja 3. korrusel asuvas nurgapealses korteris saab nautida kogu päeva päikest. Korteris on Hall siseviimistluspakett ja pesuruumis on dušinurk. Korteri juurde kuulub suur rõdu 7,2 m².
NB! Kuulutuse juures olevad pildid on näidiskorterist ning välipildid on 3D visualiseering.
Sama planeeringuga on ka:
4. korrusel korter nr 11.
Korteri hinnas sisaldub siseviimistlus ja sanitaartehnika.
Korteri hinnale lisandub:
Panipaik 1. korrusel: 4000 €
Parkimiskoht hoovis: 6000 €, varjualuses: 8000 €
Jahutusseade elutoas: 4 000 €.
ARENDUSE TUTVUSTUS
Saue keskuses valmivad 2025. aasta lõpus endise tööstusmaastiku asemele kaks kortermaja äripindade ja 31 koduga. Kvaliteetsed ehitusmaterjalid, korteripõhine soojustagastusega ventilatsioonisüsteem ja A-energiaklass tagavad mõnusa sisekliima ja mõistlikud energiakulud ning võimaldavad kodu ostmisel saada pankadelt parimad laenutingimused.
Keskuse Kodude projekti arendavad KIN Kinnisvara ja PSP Capital. Projekti autoriteks on tunnustatud PIN Arhitektid ja ehitaja on pikaajalise korterelamute rajamise kogemusega Riser Ehitus.
Olulised märksõnad:
* 2-4-toalised korterid suurusega 49,4-93,1 m²;
* kaugküttel põhinev vesipõrandaküte, tubade kaupa reguleeritav;
* igal korteril on rõdu või terrass;
* sisearhitekt Aet Sanderi disainitud kolm kaunist siseviimistluspaketti;
* iga korteri jaoks on panipaik 1. korrusel;
* lift tagab mugava koju jõudmise igas vanuses elanikele;
* viimase korruse korterites on jahutus standardis, teistes korterites saab jahutuse soetada lisatasu eest – valmidus on olemas;
* parkimiskohti on eraparklas 32 ja avalikus parkimises 18 – nii on tagatud piisavalt parkimisruumi nii elanikele kui külalistele. Osad parkimiskohad on varjualuses;
* elektriautode jaoks on laadijate rajamise valmidus;
* majade katustele rajatakse päikesepark.
Saue on looduskaunis ja väljakujunenud elukeskkond neile, kes hindavad väiksema linna võlusid, turvalisust ja rahulikumat elutempot.
Lasteaed, kool, terviserajad, poed, söögikohad ja kõik muu eluks vajalik on siin lühikese jalutuskäigu kaugusel.
Rattaga pääseb mööda kergliiklusteid mugavalt ümberkaudsetesse asulatesse ja rongiga jõuab poole tunniga Tallinna südalinna tööle või mõnusat õhtut nautima.
Vaata täiendavat infot arenduse kodulehelt https://keskusekodud.ee ja broneeri oma uus kodu juba täna!
JAGA MINU KONTAKTI KÕIGILE, KES VAJAVAD KINNISVARANÕU!
- - - - - - - - - -
Telli hindamine UUS MAA Kinnisvarabüroolt https://uusmaa.ee/teenused/hindamine/
ning saad:
- Eksperthinnangu kuni 20% soodsamalt kui võtad koduga seotud laenu Swedbankist
- Pankadest parimad kodulaenutingimused
- Kiire, kvaliteetse ning usaldusväärse hindamisteenuse Eestis
UUS MAA KINNISVARABÜROO EKSPERTHINNANGUID AKTSEPTEERIVAD KÕIK FINANTSASUTUSED.
- - - - - - - - - -
Liitu Uus Maa uudiskirjaga ja saa homset kinnisvarainfot juba täna!
https://www.uusmaa.ee/uudiskirjagaliitumine/
- - - - - - - - - -
Kodu aitab osta Swedbank.
Pakkumise saamiseks kasuta koodi UUSMAA ja Sind teenindatakse eelisjärjekorras.
Võtame ühendust 1 tööpäeva jooksul.
Uus Maa kliendile soodsam lepingutasu. Küsi täpsemat infot maaklerilt.
Finantsteenuseid pakub Swedbank AS. Tutvu tingimustega, pea nõu.






























