Uusarenduste rajoonis saadaval viimased 2 boksi antud arendusest!
Hea planeeringuga ja oma muruplatsiga 4-toalised ridaelamuboksid on suurepärane valik perele.
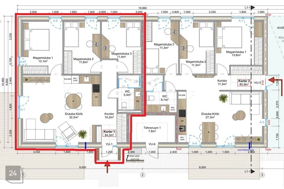
Hästi läbimõeldud planeering kus on avar ja valgusküllane 32m2 elutuba avatud köögiga, 3 magamistuba ning duširuum/WC.
Tegemist on nurgapealse boksiga, mille juurde kuulub ka umbes 300 m² suurune muruplats. Uuel omanikul on võimalus rajada maja ette väike terrass, kus nautida suvepäevi ja vaba aega.
Hoone ehitatud betoonelementidest 430mm.
-Sisekiht 150mm R/B
-soojustus 200mm villsoojustus
-väliskiht 80mm R/B.
-Aknad 3x pakettaknad.
Tehnosüsteemid:
Kütteks õhk-vesi soojuspump põrandaküttena.
Soojustagastusega ventilatsioon.
B-energiamärgis
Vesi-kanal tsentraalne.
Iga boksi juurde kuulub 4 tasuta parkimiskohta.
Väga hea asukohaga. Korralikud asfalteeritud tänavad, poed, teater, kino, ilusad linna pargid jms kõik väikese jalutuskäigu kaugusel.
Teised samas arenduses saadaval olevad boksid.
Boks nr 2: 189 000€
Valmimise aeg 2025 detsember
JAGA MINU KONTAKTI KÕIGILE, KES VAJAVAD KINNISVARANÕU!
- - - - - - - - - -
Telli hindamine UUS MAA Kinnisvarabüroolt https://uusmaa.ee/teenused/hindamine/
ning saad:
- Eksperthinnangu kuni 20% soodsamalt kui võtad koduga seotud laenu Swedbankist
- Pankadest parimad kodulaenutingimused
- Kiire, kvaliteetse ning usaldusväärse hindamisteenuse Eestis
UUS MAA KINNISVARABÜROO EKSPERTHINNANGUID AKTSEPTEERIVAD KÕIK FINANTSASUTUSED.
- - - - - - - - - -
Liitu Uus Maa uudiskirjaga ja saa homset kinnisvarainfot juba täna!
https://www.uusmaa.ee/uudiskirjagaliitumine/
- - - - - - - - - -
Kodu aitab osta Swedbank.
Pakkumise saamiseks kasuta koodi UUSMAA ja Sind teenindatakse eelisjärjekorras.
Võtame ühendust 1 tööpäeva jooksul.
Uus Maa kliendile soodsam lepingutasu. Küsi täpsemat infot maaklerilt.
Finantsteenuseid pakub Swedbank AS. Tutvu tingimustega, pea nõu.
Hea planeeringuga ja oma muruplatsiga 4-toalised ridaelamuboksid on suurepärane valik perele.
Hästi läbimõeldud planeering kus on avar ja valgusküllane 32m2 elutuba avatud köögiga, 3 magamistuba ning duširuum/WC.
Tegemist on nurgapealse boksiga, mille juurde kuulub ka umbes 300 m² suurune muruplats. Uuel omanikul on võimalus rajada maja ette väike terrass, kus nautida suvepäevi ja vaba aega.
Hoone ehitatud betoonelementidest 430mm.
-Sisekiht 150mm R/B
-soojustus 200mm villsoojustus
-väliskiht 80mm R/B.
-Aknad 3x pakettaknad.
Tehnosüsteemid:
Kütteks õhk-vesi soojuspump põrandaküttena.
Soojustagastusega ventilatsioon.
B-energiamärgis
Vesi-kanal tsentraalne.
Iga boksi juurde kuulub 4 tasuta parkimiskohta.
Väga hea asukohaga. Korralikud asfalteeritud tänavad, poed, teater, kino, ilusad linna pargid jms kõik väikese jalutuskäigu kaugusel.
Teised samas arenduses saadaval olevad boksid.
Boks nr 2: 189 000€
Valmimise aeg 2025 detsember
JAGA MINU KONTAKTI KÕIGILE, KES VAJAVAD KINNISVARANÕU!
- - - - - - - - - -
Telli hindamine UUS MAA Kinnisvarabüroolt https://uusmaa.ee/teenused/hindamine/
ning saad:
- Eksperthinnangu kuni 20% soodsamalt kui võtad koduga seotud laenu Swedbankist
- Pankadest parimad kodulaenutingimused
- Kiire, kvaliteetse ning usaldusväärse hindamisteenuse Eestis
UUS MAA KINNISVARABÜROO EKSPERTHINNANGUID AKTSEPTEERIVAD KÕIK FINANTSASUTUSED.
- - - - - - - - - -
Liitu Uus Maa uudiskirjaga ja saa homset kinnisvarainfot juba täna!
https://www.uusmaa.ee/uudiskirjagaliitumine/
- - - - - - - - - -
Kodu aitab osta Swedbank.
Pakkumise saamiseks kasuta koodi UUSMAA ja Sind teenindatakse eelisjärjekorras.
Võtame ühendust 1 tööpäeva jooksul.
Uus Maa kliendile soodsam lepingutasu. Küsi täpsemat infot maaklerilt.
Finantsteenuseid pakub Swedbank AS. Tutvu tingimustega, pea nõu.

















