Eelregistreerimisega kliendipäev toimub 6.detsembril vahemikus kell 12:00-15:00. Tule oma uue koduga tutvust tegema! :)
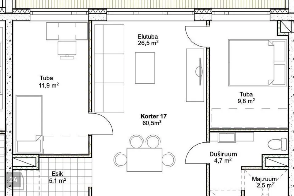
Müügile on tulnud valgusküllane 60,5 m² suurune 3-toaline korter Rae külas, kaasaegses ja energiatõhusas majas.
Kodu müüakse koos kogu sisustuse ja tehnikaga.
KORTER
Korter on planeeringult hästi läbi mõeldud ning pakub mugavat kodust ruumikust nii perele kui ka neile, kes vajavad töötuba või eraldiseisvat külalistetuba.
Eluruumi südameks on avatud köögiga elutuba, kust pääseb 13,5 m² suurusele rõdule – ideaalne koht hommikukohvi nautimiseks.. Köögimööbel koos funktsionaalse kivist tasapinnaga, on valmistatud eritellimusel, ning koos kvaliteetse tehnikaga jääb see uuele omanikule.
Lisaks on korteris vannituba koos eraldi majapidamisruumi nurgakesega, mis muudab igapäevased toimingud oluliselt mugavamaks. Kõik majapidamistöödeks vajalik, sh pesumasin, on peidetud kappi, mis on tehtud samuti eritellimusel.
Heledates toonides siseviimistlus loob helge ja värske üldmulje.
Korteris on vesipõrandaküttele baseeruv gaasiküte. Mõnusa sisekliima eest hoolitseb soojustagastusega ventilatsioon.
MAJA
Hoone on ehitatud 2022. aastal ning vastab tänapäevastele mugavuse nõuetele. Korter asub kolmandal korrusel. Samal korrusel asub ka korteri juurde kuuluv turvaline panipaik.
Igapäevast haldust teostab põhjalik ja usaldusväärne halduspartner, mis tagab hoone hea seisukorra.
PARKIMINE & PANIPAIK
Korteri hinna sisse kuulub:
• 2 kindlat parkimiskohta
• Lukustatud panipaik
ASUKOHT
Korter asub Rae vallas, hinnatud Rae külas – kiiresti arenevas, kaasaegses ja peresõbralikus piirkonnas, mis pakub tasakaalu roheluse ja hea taristu vahel. Lähim lasteaed asub 500m kaugusel. Lähimad poed (“Meie” pood Rae külas ning Järvekülas asuv Rimi) asuvad 2-3 km kaugusel.
Lähim bussipeatus asub samuti 500m kaugusel, kust on hea ühendus nii Tallinna kui lähedal asuvate valdadega. Tänu heale ühendusele Tallinna suunal on tööle ja linna teenusteni jõudmine lihtne ja kiire, samas saab kodus nautida rahulikku elukeskkonda ja rohelust.
Ümbruskonnas on ka kergliiklusteed, mis loovad mõnusa keskkonna tervisliku eluviisi harrastajatele!
Kui sa tunned, et see kodu võiks olla Sinu pere uus kodu, siis võta minuga ühendust ja läheme seda koos vaatama! :)
JAGA MINU KONTAKTI KÕIGILE, KES VAJAVAD KINNISVARANÕU!
- - - - - - - - - -
Telli hindamine UUS MAA Kinnisvarabüroolt https://uusmaa.ee/teenused/hindamine/
ning saad:
- Eksperthinnangu kuni 20% soodsamalt kui võtad koduga seotud laenu Swedbankist
- Pankadest parimad kodulaenutingimused
- Kiire, kvaliteetse ning usaldusväärse hindamisteenuse Eestis
UUS MAA KINNISVARABÜROO EKSPERTHINNANGUID AKTSEPTEERIVAD KÕIK FINANTSASUTUSED.
- - - - - - - - - -
Liitu Uus Maa uudiskirjaga ja saa homset kinnisvarainfot juba täna!
https://www.uusmaa.ee/uudiskirjagaliitumine/
- - - - - - - - - -
Kodu aitab osta Swedbank.
Pakkumise saamiseks kasuta koodi UUSMAA ja Sind teenindatakse eelisjärjekorras.
Võtame ühendust 1 tööpäeva jooksul.
Uus Maa kliendile soodsam lepingutasu. Küsi täpsemat infot maaklerilt.
Finantsteenuseid pakub Swedbank AS. Tutvu tingimustega, pea nõu.
Müügile on tulnud valgusküllane 60,5 m² suurune 3-toaline korter Rae külas, kaasaegses ja energiatõhusas majas.
Kodu müüakse koos kogu sisustuse ja tehnikaga.
KORTER
Korter on planeeringult hästi läbi mõeldud ning pakub mugavat kodust ruumikust nii perele kui ka neile, kes vajavad töötuba või eraldiseisvat külalistetuba.
Eluruumi südameks on avatud köögiga elutuba, kust pääseb 13,5 m² suurusele rõdule – ideaalne koht hommikukohvi nautimiseks.. Köögimööbel koos funktsionaalse kivist tasapinnaga, on valmistatud eritellimusel, ning koos kvaliteetse tehnikaga jääb see uuele omanikule.
Lisaks on korteris vannituba koos eraldi majapidamisruumi nurgakesega, mis muudab igapäevased toimingud oluliselt mugavamaks. Kõik majapidamistöödeks vajalik, sh pesumasin, on peidetud kappi, mis on tehtud samuti eritellimusel.
Heledates toonides siseviimistlus loob helge ja värske üldmulje.
Korteris on vesipõrandaküttele baseeruv gaasiküte. Mõnusa sisekliima eest hoolitseb soojustagastusega ventilatsioon.
MAJA
Hoone on ehitatud 2022. aastal ning vastab tänapäevastele mugavuse nõuetele. Korter asub kolmandal korrusel. Samal korrusel asub ka korteri juurde kuuluv turvaline panipaik.
Igapäevast haldust teostab põhjalik ja usaldusväärne halduspartner, mis tagab hoone hea seisukorra.
PARKIMINE & PANIPAIK
Korteri hinna sisse kuulub:
• 2 kindlat parkimiskohta
• Lukustatud panipaik
ASUKOHT
Korter asub Rae vallas, hinnatud Rae külas – kiiresti arenevas, kaasaegses ja peresõbralikus piirkonnas, mis pakub tasakaalu roheluse ja hea taristu vahel. Lähim lasteaed asub 500m kaugusel. Lähimad poed (“Meie” pood Rae külas ning Järvekülas asuv Rimi) asuvad 2-3 km kaugusel.
Lähim bussipeatus asub samuti 500m kaugusel, kust on hea ühendus nii Tallinna kui lähedal asuvate valdadega. Tänu heale ühendusele Tallinna suunal on tööle ja linna teenusteni jõudmine lihtne ja kiire, samas saab kodus nautida rahulikku elukeskkonda ja rohelust.
Ümbruskonnas on ka kergliiklusteed, mis loovad mõnusa keskkonna tervisliku eluviisi harrastajatele!
Kui sa tunned, et see kodu võiks olla Sinu pere uus kodu, siis võta minuga ühendust ja läheme seda koos vaatama! :)
JAGA MINU KONTAKTI KÕIGILE, KES VAJAVAD KINNISVARANÕU!
- - - - - - - - - -
Telli hindamine UUS MAA Kinnisvarabüroolt https://uusmaa.ee/teenused/hindamine/
ning saad:
- Eksperthinnangu kuni 20% soodsamalt kui võtad koduga seotud laenu Swedbankist
- Pankadest parimad kodulaenutingimused
- Kiire, kvaliteetse ning usaldusväärse hindamisteenuse Eestis
UUS MAA KINNISVARABÜROO EKSPERTHINNANGUID AKTSEPTEERIVAD KÕIK FINANTSASUTUSED.
- - - - - - - - - -
Liitu Uus Maa uudiskirjaga ja saa homset kinnisvarainfot juba täna!
https://www.uusmaa.ee/uudiskirjagaliitumine/
- - - - - - - - - -
Kodu aitab osta Swedbank.
Pakkumise saamiseks kasuta koodi UUSMAA ja Sind teenindatakse eelisjärjekorras.
Võtame ühendust 1 tööpäeva jooksul.
Uus Maa kliendile soodsam lepingutasu. Küsi täpsemat infot maaklerilt.
Finantsteenuseid pakub Swedbank AS. Tutvu tingimustega, pea nõu.













































