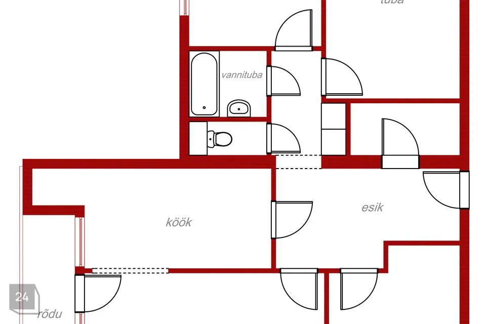
Müüa 4-toaline hea planeeringuga korter, mis asub kolmekorruselise korterelamu esimesel korrusel. Planeering läbi maja- esik-koridor, köök, elutuba, 3 magamistuba, vannituba, WC. Elutoa ja köögiga külgneb suur rõdu (5,9 m2). Lisaks on korteris ka 2 panipaika (sahvrit). Kõik toad on eraldi asetsevad.
Värviküllane ja armas kodu ootab uusi elanikke. Uuel omanikul on võimalik värskendada või renoveerida korter vastavalt oma soovide ja võimaluste kohaselt. Olemasolev mööbel ja kodutehnika jääb sisse, üksikute esemete osas on võimalik kokku leppida. Vannitoas on mõned aastad tagasi vahetatud boiler (50 l). Soe vesi boileriga. Esikus ja ühes magamistoas olemas garderoobid. Korteri kõikides ruumides on kahekordsed pakettaknad ja välisuks samuti vahetatud.
9 korteriga korteriühistu on jõudumööda toimekas, hetkel laen puudub. Vee- ja kanalisatsiooni püstakud on vahetatud 4 aastat tagasi. Ümbrus on heakorrastatud, hooajaliselt palju rohelust ja lastele on õues sobivat mänguruumi. Parkimiseks on ruumi kohe elamu kõrval.
Korteriühistu kulude kohta küsi lisainfot!
Korteri juurde kuulub ka keldriboks.
Keldriboksi ja parkimise osas ei ole seatud erikasutusõigust. Keldriboksi kasutamine toimub varasemate suuliste kokkulepete alusel.
Kesklinn ca 1,5 km kaugusel, Puhu rist ja Tallinn-Tartu maantee autoga ca 900 m kaugusel, jalgsi läbi pargi ca 400 m kaugusel. Põltsamaa on kena ja arenev väikelinn - renoveeritud loss, jõgi peagi korrastatava ujumiskohaga, kultuurikeskus, kauplused ning Põltsamaa Ühisgümnaasium ja huvikoolid. 2022 aasta sügiseks valminud lasteaed Kuuse tänaval asub 600 m kaugusel. Puhu ristis asub ka äsjavalminud Decora. Vahetus ümbruses uusim, kuid juba väärika ajalooga park Põltsamaal- Sõpruse park. Suvel on võimalik sportida ja aega veeta Kamari järve ääres asuvas atraktiivses ja tuntud seikluspargis - Põltsamaa veelauakeskuses Wpark.
Huvi korral läheme koos korteriga tutvuma!
Värviküllane ja armas kodu ootab uusi elanikke. Uuel omanikul on võimalik värskendada või renoveerida korter vastavalt oma soovide ja võimaluste kohaselt. Olemasolev mööbel ja kodutehnika jääb sisse, üksikute esemete osas on võimalik kokku leppida. Vannitoas on mõned aastad tagasi vahetatud boiler (50 l). Soe vesi boileriga. Esikus ja ühes magamistoas olemas garderoobid. Korteri kõikides ruumides on kahekordsed pakettaknad ja välisuks samuti vahetatud.
9 korteriga korteriühistu on jõudumööda toimekas, hetkel laen puudub. Vee- ja kanalisatsiooni püstakud on vahetatud 4 aastat tagasi. Ümbrus on heakorrastatud, hooajaliselt palju rohelust ja lastele on õues sobivat mänguruumi. Parkimiseks on ruumi kohe elamu kõrval.
Korteriühistu kulude kohta küsi lisainfot!
Korteri juurde kuulub ka keldriboks.
Keldriboksi ja parkimise osas ei ole seatud erikasutusõigust. Keldriboksi kasutamine toimub varasemate suuliste kokkulepete alusel.
Kesklinn ca 1,5 km kaugusel, Puhu rist ja Tallinn-Tartu maantee autoga ca 900 m kaugusel, jalgsi läbi pargi ca 400 m kaugusel. Põltsamaa on kena ja arenev väikelinn - renoveeritud loss, jõgi peagi korrastatava ujumiskohaga, kultuurikeskus, kauplused ning Põltsamaa Ühisgümnaasium ja huvikoolid. 2022 aasta sügiseks valminud lasteaed Kuuse tänaval asub 600 m kaugusel. Puhu ristis asub ka äsjavalminud Decora. Vahetus ümbruses uusim, kuid juba väärika ajalooga park Põltsamaal- Sõpruse park. Suvel on võimalik sportida ja aega veeta Kamari järve ääres asuvas atraktiivses ja tuntud seikluspargis - Põltsamaa veelauakeskuses Wpark.
Huvi korral läheme koos korteriga tutvuma!
--
Müüme, hindame ja teeme Sinu kinnisvara dokumendid korda - iga päev, suurima rõõmu ja pühendumisega!
Edasta müügisoov www.arcovara.ee/et/#edasta-myygisoov
Telli hindamine www.arcovara.ee/et/#telli-hindamine
Saada ehitus- või kasutusloa soov seadustamine.arcovara.ee

































