MÜÜA KESKLINNA SÜDAMES HUBANE 3-TOALINE SUURE RÕDUGA KORTER!
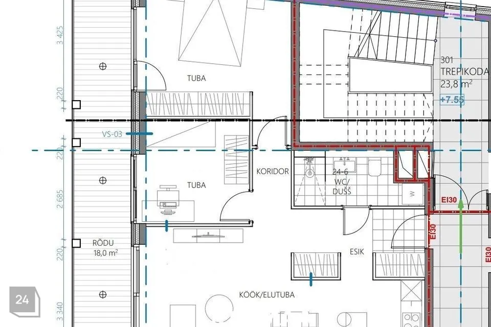
PLANEERING: eluruumi pind on kokku 66,2 m². Korteri koosseisu kuuluvad: esik, avatud köök-elutuba, 2 magamistuba, tualett-dušširuum ja rõdu 18m². Korterile paigaldatud turvalukustus.
SISEVIIMISTLUS- naturaalparkett Home Twin 1-lipiline tamm, värvitoonid Palazzo., vivacolor ja Tikkurila., keraamiline plaat esikus ja vannitoas - Rondine ( Wermstock ), spoonitud siseuksed Euroopa tamm ( Tartu Uksetehas) , sanitaartehinka Duravit ja Hansgrohe, aknad - 3 korde klaaspaketiga puitalumiiniumraamis kald-ja lükandaknad. ( Lasita aken)
KÜTTESÜSTEEM: linna trassist FORTUM kaugküte. Automaatne näidu saatmine. Korteri soojajaotus toimub läbi vesipõrandakütte ja vannitoas läbi elektripõrandakütte. Korteri eluruumides on kliima reguleerimiseks paigaldatud seinapealsed ruumiregulaatorid.
VENTILATSOON -korterisse on paigaldatud mehaaniliste sissepuhke/väljatõmbesüsteemidega SV1 …. SV36 agregaat.
Korteri põhised ventilatsioonisüsteemid on varustatud rootor soojustagastiga, elektri järelkütte kalorifeeriga ja komplekse automaatikaga.
Korterite pliidikubude heitõhk visatakse väliskeskkonda eraldi väljaviske torudega.
FONOSÜSTEEM - Hikivson kutsepaneel.
JAHUTUSSÜSTEEM: Korteri elutuoas seina peale paigaldatud jahutusagregaat. Teenust pakub GREN EESTI AS
VESI JA KANALISATSIOON: tsentraalne. Automaatne veenäidu saatmine.
ELEKTER: 2-tariifne arvesti. Automaatne elektrinäidu saatmine.
INTERNET: internet ja digitelevisioon.
HINNAS : köögimööbel koos tehnikaga ( integeertud keraamiline pliit-ja ahi, külmik, nõudepesumasin ja kubu, valgustid, kardinad. Ülejäänud mööbel kokkulepped.
Võimalik juurde osta:
PARKIMINE: parkimiskoht maja all hinnaga 20 000.-
PANIPAIK: 5000.-
JALGRATTARUUM - ruum rataste hoidmiseks.
HALDUSTEENUS - teenust pakub STELL EESTI AS.
ASUKOHT: kesklinna süda on sõnapaar, mis kirjeldab parimal võimalikul viisil tänapäeva infrastruktuuri - Por Artur, Konsertimaja, Endla teater, Selver, Rimi, koolid, lasteaiad, perearstikeskus ja bussiühendus igal suunal. Lisaks kõigele vajaminevale ootavad korterelamu vahetus läheduses Pärnu jõgi ja Jaansoni terviserada, et pakkuda inspiratsiooni vabaaja veetmisel, sportimisel või isiklikel looduslikel energiaallikate laadimistel.
NOTARITASUD
maksavad Ostja ja Müüja võrdselt, riigilõivu tasub Ostja.
Helista ja küsi lisa!
JAGA MINU KONTAKTI KÕIGILE, KES VAJAVAD KINNISVARANÕU!
- - - - - - - - - -
Telli hindamine UUS MAA Kinnisvarabüroolt https://uusmaa.ee/teenused/hindamine/
ning saad:
- Eksperthinnangu kuni 20% soodsamalt kui võtad koduga seotud laenu Swedbankist
- Pankadest parimad kodulaenutingimused
- Kiire, kvaliteetse ning usaldusväärse hindamisteenuse Eestis
UUS MAA KINNISVARABÜROO EKSPERTHINNANGUID AKTSEPTEERIVAD KÕIK FINANTSASUTUSED.
- - - - - - - - - -
Liitu Uus Maa uudiskirjaga ja saa homset kinnisvarainfot juba täna!
https://www.uusmaa.ee/uudiskirjagaliitumine/
- - - - - - - - - -
Kodu aitab osta Swedbank.
Pakkumise saamiseks kasuta koodi UUSMAA ja Sind teenindatakse eelisjärjekorras.
Võtame ühendust 1 tööpäeva jooksul.
Uus Maa kliendile soodsam lepingutasu. Küsi täpsemat infot maaklerilt.
Finantsteenuseid pakub Swedbank AS. Tutvu tingimustega, pea nõu.
PLANEERING: eluruumi pind on kokku 66,2 m². Korteri koosseisu kuuluvad: esik, avatud köök-elutuba, 2 magamistuba, tualett-dušširuum ja rõdu 18m². Korterile paigaldatud turvalukustus.
SISEVIIMISTLUS- naturaalparkett Home Twin 1-lipiline tamm, värvitoonid Palazzo., vivacolor ja Tikkurila., keraamiline plaat esikus ja vannitoas - Rondine ( Wermstock ), spoonitud siseuksed Euroopa tamm ( Tartu Uksetehas) , sanitaartehinka Duravit ja Hansgrohe, aknad - 3 korde klaaspaketiga puitalumiiniumraamis kald-ja lükandaknad. ( Lasita aken)
KÜTTESÜSTEEM: linna trassist FORTUM kaugküte. Automaatne näidu saatmine. Korteri soojajaotus toimub läbi vesipõrandakütte ja vannitoas läbi elektripõrandakütte. Korteri eluruumides on kliima reguleerimiseks paigaldatud seinapealsed ruumiregulaatorid.
VENTILATSOON -korterisse on paigaldatud mehaaniliste sissepuhke/väljatõmbesüsteemidega SV1 …. SV36 agregaat.
Korteri põhised ventilatsioonisüsteemid on varustatud rootor soojustagastiga, elektri järelkütte kalorifeeriga ja komplekse automaatikaga.
Korterite pliidikubude heitõhk visatakse väliskeskkonda eraldi väljaviske torudega.
FONOSÜSTEEM - Hikivson kutsepaneel.
JAHUTUSSÜSTEEM: Korteri elutuoas seina peale paigaldatud jahutusagregaat. Teenust pakub GREN EESTI AS
VESI JA KANALISATSIOON: tsentraalne. Automaatne veenäidu saatmine.
ELEKTER: 2-tariifne arvesti. Automaatne elektrinäidu saatmine.
INTERNET: internet ja digitelevisioon.
HINNAS : köögimööbel koos tehnikaga ( integeertud keraamiline pliit-ja ahi, külmik, nõudepesumasin ja kubu, valgustid, kardinad. Ülejäänud mööbel kokkulepped.
Võimalik juurde osta:
PARKIMINE: parkimiskoht maja all hinnaga 20 000.-
PANIPAIK: 5000.-
JALGRATTARUUM - ruum rataste hoidmiseks.
HALDUSTEENUS - teenust pakub STELL EESTI AS.
ASUKOHT: kesklinna süda on sõnapaar, mis kirjeldab parimal võimalikul viisil tänapäeva infrastruktuuri - Por Artur, Konsertimaja, Endla teater, Selver, Rimi, koolid, lasteaiad, perearstikeskus ja bussiühendus igal suunal. Lisaks kõigele vajaminevale ootavad korterelamu vahetus läheduses Pärnu jõgi ja Jaansoni terviserada, et pakkuda inspiratsiooni vabaaja veetmisel, sportimisel või isiklikel looduslikel energiaallikate laadimistel.
NOTARITASUD
maksavad Ostja ja Müüja võrdselt, riigilõivu tasub Ostja.
Helista ja küsi lisa!
JAGA MINU KONTAKTI KÕIGILE, KES VAJAVAD KINNISVARANÕU!
- - - - - - - - - -
Telli hindamine UUS MAA Kinnisvarabüroolt https://uusmaa.ee/teenused/hindamine/
ning saad:
- Eksperthinnangu kuni 20% soodsamalt kui võtad koduga seotud laenu Swedbankist
- Pankadest parimad kodulaenutingimused
- Kiire, kvaliteetse ning usaldusväärse hindamisteenuse Eestis
UUS MAA KINNISVARABÜROO EKSPERTHINNANGUID AKTSEPTEERIVAD KÕIK FINANTSASUTUSED.
- - - - - - - - - -
Liitu Uus Maa uudiskirjaga ja saa homset kinnisvarainfot juba täna!
https://www.uusmaa.ee/uudiskirjagaliitumine/
- - - - - - - - - -
Kodu aitab osta Swedbank.
Pakkumise saamiseks kasuta koodi UUSMAA ja Sind teenindatakse eelisjärjekorras.
Võtame ühendust 1 tööpäeva jooksul.
Uus Maa kliendile soodsam lepingutasu. Küsi täpsemat infot maaklerilt.
Finantsteenuseid pakub Swedbank AS. Tutvu tingimustega, pea nõu.

























































