Pärnu südalinna, jõe ja Vallikääru suudmesse rajatavasse uude Vanasadama kvartalisse ehitatakse 3 kortermaja koos avaliku ruumiga, millele tulevikus lisandub ka väikelaevadele mõeldud kai. Vanasadama kvartalit planeerides on mõeldud tänapäevasele inimesele, kes lisaks modernsele arhitektuurile hindab kauakestvaid materjale, mugavat ja terviklikku elukeskkonda koos hea asukohaga.
Esimesena valmib 2025ndal aastal Vanasadama kvartalis kõige merepoolsem kortermaja Kalda tn 4. Korterid majas on 1-5 toalised, enamus korteritel on lisaks rõdu prantsuse rõdu või terrass. Hoone tänavatasapinnal asuvad lisaks omaette sissepääsudega külaliskorterid ja äripinnad, mis on otse ühendatuna funktsionaalse linnaruumiga.
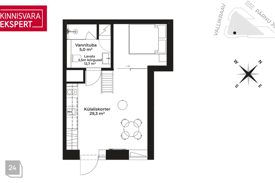
1toaline külaliskorter nr ÄR03 paikneb hoone I korrusel, südalinna ja jahtklubi ühendava Kalda tn ääres. Külaliskorteril on 20,1 m² suurune elutuba-köök, magamisnišš/tuba 8,9 m², duširuum/WC 3,6 3² ning teisel tasapinnal (magamis)lavats 8,9 m². Külaliskorteri esine trepimade on kasutatav väikese terrassina, külaliskorterit võib kasutada ka lihtsalt äripinnana.
NB! Külaliskorteri hinnale lisandub käibemaks (29 700 €), hind koos käibemaksuga 164 700 €.
Rohkem infot Vanasadama kvartali kohta leiate kodulehelt www.vanasadamakvartal.ee
Küsimuste korral ja lisainfo saamiseks võtke palun ühendust!
****
KINNISVARAEKSPERT tegutseb Eesti turul alates 1993. aastast. Meie Bürood asuvad Tallinnas ja Pärnus ning teenindame teid üle Eesti. Koostööpartnerite Nord Prime Capital ja Alliance Group UAB kaudu oleme esindatud ka Lätis ning Leedus.
Pakume maaklerteenust, hindamist ja kinnisvaraalast nõustamisteenust nii era- kui ka ärisektoris.
Kinnisvaraekspert teeb tihedat koostööd maailma suurimate kinnisvarafirmade hulka kuuluva ettevõttega Cushman & Wakefield. Meie koostöösidemed ulatuvad peale Balti riikide ja Põhjamaade pea kõikidesse maailmajagudesse.
Rohkem infot leiad www.kinnisvaraekspert.ee
***
Esimesena valmib 2025ndal aastal Vanasadama kvartalis kõige merepoolsem kortermaja Kalda tn 4. Korterid majas on 1-5 toalised, enamus korteritel on lisaks rõdu prantsuse rõdu või terrass. Hoone tänavatasapinnal asuvad lisaks omaette sissepääsudega külaliskorterid ja äripinnad, mis on otse ühendatuna funktsionaalse linnaruumiga.
1toaline külaliskorter nr ÄR03 paikneb hoone I korrusel, südalinna ja jahtklubi ühendava Kalda tn ääres. Külaliskorteril on 20,1 m² suurune elutuba-köök, magamisnišš/tuba 8,9 m², duširuum/WC 3,6 3² ning teisel tasapinnal (magamis)lavats 8,9 m². Külaliskorteri esine trepimade on kasutatav väikese terrassina, külaliskorterit võib kasutada ka lihtsalt äripinnana.
NB! Külaliskorteri hinnale lisandub käibemaks (29 700 €), hind koos käibemaksuga 164 700 €.
Rohkem infot Vanasadama kvartali kohta leiate kodulehelt www.vanasadamakvartal.ee
Küsimuste korral ja lisainfo saamiseks võtke palun ühendust!
****
KINNISVARAEKSPERT tegutseb Eesti turul alates 1993. aastast. Meie Bürood asuvad Tallinnas ja Pärnus ning teenindame teid üle Eesti. Koostööpartnerite Nord Prime Capital ja Alliance Group UAB kaudu oleme esindatud ka Lätis ning Leedus.
Pakume maaklerteenust, hindamist ja kinnisvaraalast nõustamisteenust nii era- kui ka ärisektoris.
Kinnisvaraekspert teeb tihedat koostööd maailma suurimate kinnisvarafirmade hulka kuuluva ettevõttega Cushman & Wakefield. Meie koostöösidemed ulatuvad peale Balti riikide ja Põhjamaade pea kõikidesse maailmajagudesse.
Rohkem infot leiad www.kinnisvaraekspert.ee
***
















