Teise korruse 2-toaline korter ajaloolises puithoones ootab uut omanikku. Korter sobib hästi noortele esimeseks koduks, väiksemale perele või investeerimishuvilisele.
KORTER
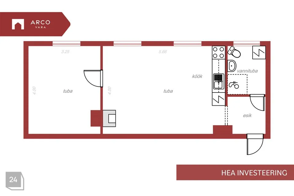
Korteri planeering hõlmab endas esikut, avatud köögiga elutuba, magamistuba ja duši- ning tualettruumi. Avarust ja valgust pakuvad suured aknad elutoas. Elutoas asuv ahi annab mõnusat kiirgavat soojust ja hubasust sügis- ja talveõhtutel. Ahi aitab reguleerida õhuniiskust ja tagada parema ventilatsiooni, mis teeb elukeskkonna tervislikumaks. Korteri aknad avanevad sisehoovi.
MAJA JA ASUKOHT
Kahekordne puitmaja kuulub ajaloolisse puitelamute väljajoonistuvasse klassi Riia maantee esimesel küljel, mis kasvas välja 19. sajandi lõpul ja 20. sajandi algul. Korterelamu vajab põhjalikku rekonstrueerimist. Rekonstrueerimisprojektid on valmis ja saanud kooskõlastused. Rekonstrueerimistöödega plaanitakse alustatakse lähemal ajal.
Korteri asukoht on suurepärane – paikneb Pärnu kesklinnas, kus kõik eluks vajalik on jalutuskäigu kaugusel: poed, kohvikud, turg, koolid, lasteaiad, ühistranspordipeatused, kaubanduskeskused, rohealad ja palju muud.
KÜTE JA KULUD
Korterit köetakse õhksoojuspumbaga ja soovi korral saab lisaks kasutada kütmiseks ahikütet.
PARKIMINE JA PANIPAIK
Parkimine on tasuta maja hoovis. Korteril on kasutada hetkel kuuriboks. Rekonstrueerimistööde käigus rajatakse hoovi korterile erikasutusõigusega parkimiskoht ja panipaik.
KORTER
Korteri planeering hõlmab endas esikut, avatud köögiga elutuba, magamistuba ja duši- ning tualettruumi. Avarust ja valgust pakuvad suured aknad elutoas. Elutoas asuv ahi annab mõnusat kiirgavat soojust ja hubasust sügis- ja talveõhtutel. Ahi aitab reguleerida õhuniiskust ja tagada parema ventilatsiooni, mis teeb elukeskkonna tervislikumaks. Korteri aknad avanevad sisehoovi.
MAJA JA ASUKOHT
Kahekordne puitmaja kuulub ajaloolisse puitelamute väljajoonistuvasse klassi Riia maantee esimesel küljel, mis kasvas välja 19. sajandi lõpul ja 20. sajandi algul. Korterelamu vajab põhjalikku rekonstrueerimist. Rekonstrueerimisprojektid on valmis ja saanud kooskõlastused. Rekonstrueerimistöödega plaanitakse alustatakse lähemal ajal.
Korteri asukoht on suurepärane – paikneb Pärnu kesklinnas, kus kõik eluks vajalik on jalutuskäigu kaugusel: poed, kohvikud, turg, koolid, lasteaiad, ühistranspordipeatused, kaubanduskeskused, rohealad ja palju muud.
KÜTE JA KULUD
Korterit köetakse õhksoojuspumbaga ja soovi korral saab lisaks kasutada kütmiseks ahikütet.
PARKIMINE JA PANIPAIK
Parkimine on tasuta maja hoovis. Korteril on kasutada hetkel kuuriboks. Rekonstrueerimistööde käigus rajatakse hoovi korterile erikasutusõigusega parkimiskoht ja panipaik.
--
Müüme, hindame ja teeme Sinu kinnisvara dokumendid korda - iga päev, suurima rõõmu ja pühendumisega!
Edasta müügisoov www.arcovara.ee/et/#edasta-myygisoov
Telli hindamine www.arcovara.ee/et/#telli-hindamine
Saada ehitus- või kasutusloa soov seadustamine.arcovara.ee


















