Pärnu jõe ja uhiuue silla kõrvale on linnakeskuses 2026 suvel valmimas elegantse arhitektuuriga ning ainulaadsete vaadetega 7korruseline elu- ja ärihoone – Lai 20.
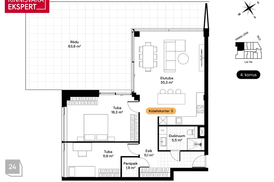
Jõevaatega 3toaline nurgapoolne külaliskorter nr 5 (84 m²) koos avara terrassiga (+63,8 m²) asub maja IV korrusel, vaadetega jõele ja uuele sillale. Korteril on suur elutuba-köök (35,3 m²), kaks magamistuba (18,3 m²; 11,9 m²), esik (11,1 m²), WC-duširuum (5,5 m²) ning panipaik (1,9 m²). Magamistubade ees on murukatus, mis lisab korterile isikupära ja rohelust. Terrassile viivad aknad on lükandaknad. Mugava sisekliima korteris tagavad vesipõrandaküte ja soojustagastusega ventilatsioon ning kaugjahutus. Korteris on kohe standardina luksuslik viimistlus, mida saab kujundada ka oma maitse järgi.
Tunnustatud BOA arhitektide poolt arhitektuurikonkursi võidutööna projekteeritud Lai 20 elu- ja ärihoone on astmelise mahuga, vähendades sellega hoone massiivsust ning jagunedes vertikaalselt kolmeks osaks – kaubanduse, büroo ja elukorrusteks. Nii loovad esimese korruse klaasfassaadid hoonele kerguse ja visuaalselt väiksema mahu, kus tagasiastes peasissepääsud rõhutavad maja õhulisust ja kaasaegsust. III kuni VII korrused, kus paiknevad korterid ja külaliskorterid astuvad teise korruse suhtes tagasi, lisades fassaadile rõdud ja astmelisuse, mis omakorda annavad hoonele juurde õhulisust. Korterid, milledest on vaade kas jõe või südalinna sunnas on kõik suurte rõdude või terrassidega (7 m² - 108 m²), kuni 3 m kõrguste lagede ning maast-laeni akendega.
Hoonel on maa-alune autoparkla, kuhu on võimalus mugavalt ja turvaliselt parkida auto ning sõita garaažist liftiga otse oma elukorrusele. Erikasutusõigusega parkimiskoha hind on 25 000 € ja panipaigal 5 000 €. Olemas elektriauto laadimisvõimalus. Kõik hinnad sisaldavad käibemaksu.
Vaata ka lisainfot: www.lai20.ee
Küsimuste korral ja lisainfo saamiseks võtke palun ühendust!
Varajasele ostjale suurem valik ja paindlikumad võimalused rääkida kaasa oma korteri valmimise juures!
NB! Korteri ostjal on võimalik kasutada ostu-müügihinna tasumiseks järelmaksu ka otse arendajalt - tasudes korteri ostmisel vähemalt 20% korteri maksumusest, pakub arendaja võimalust tasuda ülejäänud ostu-müügi hinna osa kuni viie aasta jooksul. Järelmaksu intress on 5-8 % aastas. Küsi täpsemalt järelmaksu tingimuste või infot pangalaenude eripakkumiste kohta Kinnisvaraekspert maaklerilt.
****
KINNISVARAEKSPERT tegutseb Eesti turul alates 1993. aastast. Meie Bürood asuvad Tallinnas ja Pärnus ning teenindame teid üle Eesti. Koostööpartnerite Nord Prime Capital ja Alliance Group UAB kaudu oleme esindatud ka Lätis ning Leedus.
Pakume maaklerteenust, hindamist ja kinnisvaraalast nõustamisteenust nii era- kui ka ärisektoris.
Kinnisvaraekspert teeb tihedat koostööd maailma suurimate kinnisvarafirmade hulka kuuluva ettevõttega Cushman & Wakefield. Meie koostöösidemed ulatuvad peale Balti riikide ja Põhjamaade pea kõikidesse maailmajagudesse.
Rohkem infot leiad www.kinnisvaraekspert.ee
***
Jõevaatega 3toaline nurgapoolne külaliskorter nr 5 (84 m²) koos avara terrassiga (+63,8 m²) asub maja IV korrusel, vaadetega jõele ja uuele sillale. Korteril on suur elutuba-köök (35,3 m²), kaks magamistuba (18,3 m²; 11,9 m²), esik (11,1 m²), WC-duširuum (5,5 m²) ning panipaik (1,9 m²). Magamistubade ees on murukatus, mis lisab korterile isikupära ja rohelust. Terrassile viivad aknad on lükandaknad. Mugava sisekliima korteris tagavad vesipõrandaküte ja soojustagastusega ventilatsioon ning kaugjahutus. Korteris on kohe standardina luksuslik viimistlus, mida saab kujundada ka oma maitse järgi.
Tunnustatud BOA arhitektide poolt arhitektuurikonkursi võidutööna projekteeritud Lai 20 elu- ja ärihoone on astmelise mahuga, vähendades sellega hoone massiivsust ning jagunedes vertikaalselt kolmeks osaks – kaubanduse, büroo ja elukorrusteks. Nii loovad esimese korruse klaasfassaadid hoonele kerguse ja visuaalselt väiksema mahu, kus tagasiastes peasissepääsud rõhutavad maja õhulisust ja kaasaegsust. III kuni VII korrused, kus paiknevad korterid ja külaliskorterid astuvad teise korruse suhtes tagasi, lisades fassaadile rõdud ja astmelisuse, mis omakorda annavad hoonele juurde õhulisust. Korterid, milledest on vaade kas jõe või südalinna sunnas on kõik suurte rõdude või terrassidega (7 m² - 108 m²), kuni 3 m kõrguste lagede ning maast-laeni akendega.
Hoonel on maa-alune autoparkla, kuhu on võimalus mugavalt ja turvaliselt parkida auto ning sõita garaažist liftiga otse oma elukorrusele. Erikasutusõigusega parkimiskoha hind on 25 000 € ja panipaigal 5 000 €. Olemas elektriauto laadimisvõimalus. Kõik hinnad sisaldavad käibemaksu.
Vaata ka lisainfot: www.lai20.ee
Küsimuste korral ja lisainfo saamiseks võtke palun ühendust!
Varajasele ostjale suurem valik ja paindlikumad võimalused rääkida kaasa oma korteri valmimise juures!
NB! Korteri ostjal on võimalik kasutada ostu-müügihinna tasumiseks järelmaksu ka otse arendajalt - tasudes korteri ostmisel vähemalt 20% korteri maksumusest, pakub arendaja võimalust tasuda ülejäänud ostu-müügi hinna osa kuni viie aasta jooksul. Järelmaksu intress on 5-8 % aastas. Küsi täpsemalt järelmaksu tingimuste või infot pangalaenude eripakkumiste kohta Kinnisvaraekspert maaklerilt.
****
KINNISVARAEKSPERT tegutseb Eesti turul alates 1993. aastast. Meie Bürood asuvad Tallinnas ja Pärnus ning teenindame teid üle Eesti. Koostööpartnerite Nord Prime Capital ja Alliance Group UAB kaudu oleme esindatud ka Lätis ning Leedus.
Pakume maaklerteenust, hindamist ja kinnisvaraalast nõustamisteenust nii era- kui ka ärisektoris.
Kinnisvaraekspert teeb tihedat koostööd maailma suurimate kinnisvarafirmade hulka kuuluva ettevõttega Cushman & Wakefield. Meie koostöösidemed ulatuvad peale Balti riikide ja Põhjamaade pea kõikidesse maailmajagudesse.
Rohkem infot leiad www.kinnisvaraekspert.ee
***

























