Pärnu vanalinnas Rüütli tänava ääres on müügile tulnud uued korterid ja äripinnad!
Mohri Majad on kolmest hoonest (Rüütli 23/ 25) koosnev kompleks korterite ja I korruse äripindadega!
Rohkem kui 340 aasta vanustel Mohri majadel on pikk ja põnev ajalugu.
Rüütli 23 valmis 1681. aastal Pärnu raehärra ja kaupmehe Christoph Heinrich Mohri elamuks. See oli üks esimesi maju Pärnus, mis rajati fassaadiga vastu tänavat ja vastu toonast turuplatsi ehk praegust Lasteparki. Hoone esimesel korrusel olid äriruumid, teisel korrusel eluruumid.
Põhjalikult renoveeritud Mohri Majad saavad tagasi oma kunagise väärika välimuse ja kaasaegse sisu!
Kõik korterid on omanäolised ja põnevate erilahendustega. Hoonete esimesele korrusele ja soklikorrusele on oodatud ärid, mis sobituvad Rüütli tänava kui linna peatänavaga ja vanalinna tuiksoonega.
Mohri Majades on kokku 16 korterit - 2-toalistest kuni 4-toaliseni, neist 8 korterit paikneb läbi kahe korruse ja osadel korteritel on terrass või rõdu.
Siseviimistluses kasutatakse kvaliteetseid premiumklassi viimistlusmaterjale mis sobituvad ajaloolisse väärikasse hoonesse.
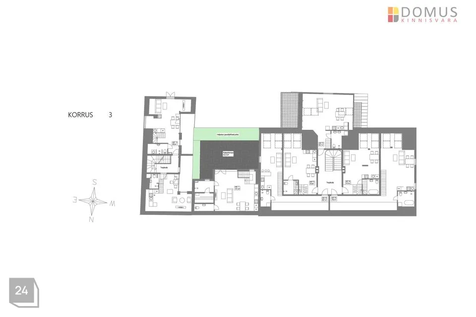
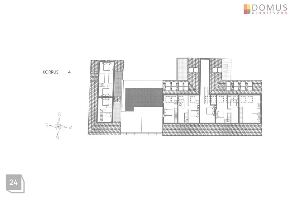
Müüdav korter on 2-toaline, 61,6 m² on mõõdetuna 1 m kõrguselt, 52,1 m² on pind 1,6 m kõrguselt ja põrandapinda on lausa 74,3 m². Avar korter asub läbi kahe korruse (III-IV) ja elutoast avaneb läände 7 m² katuseterrass. Korterisse on paigaldatud konditsioneer. Pesuruumis on vann.
Korteri hind sisaldab käibemaksu!
Juurde on võimalik osta:
- panipaik (erineva suurusega, alates 2 m²) 2200 €/m²
Tule naudi Pärnu ajaloolise vanalinna hõngu, puhka ja ela otse linnasüdames.
Pargid ja rohelus käeulatuses, supelrand jalutuskäigu kaugusel ja teatrisse saab mõne sammuga, muudest Pärnu võludest rääkimata.
Tutvu Mohri Majade kodulehega!
https://www.mohrimajad.domus.ee/
Tule tunne huvi!
Pangad pakuvad Domus Kinnisvara klientidele eluasemelaenu lepingutasu soodustusi. Küsi lisainfot Domus Kinnisvara maaklerilt või hindajalt.
Müü ja hinda meiega! Teeme kinnisvara müügi Sinu jaoks sujuvaks ja pingevabaks.
Mohri Majad on kolmest hoonest (Rüütli 23/ 25) koosnev kompleks korterite ja I korruse äripindadega!
Rohkem kui 340 aasta vanustel Mohri majadel on pikk ja põnev ajalugu.
Rüütli 23 valmis 1681. aastal Pärnu raehärra ja kaupmehe Christoph Heinrich Mohri elamuks. See oli üks esimesi maju Pärnus, mis rajati fassaadiga vastu tänavat ja vastu toonast turuplatsi ehk praegust Lasteparki. Hoone esimesel korrusel olid äriruumid, teisel korrusel eluruumid.
Põhjalikult renoveeritud Mohri Majad saavad tagasi oma kunagise väärika välimuse ja kaasaegse sisu!
Kõik korterid on omanäolised ja põnevate erilahendustega. Hoonete esimesele korrusele ja soklikorrusele on oodatud ärid, mis sobituvad Rüütli tänava kui linna peatänavaga ja vanalinna tuiksoonega.
Mohri Majades on kokku 16 korterit - 2-toalistest kuni 4-toaliseni, neist 8 korterit paikneb läbi kahe korruse ja osadel korteritel on terrass või rõdu.
Siseviimistluses kasutatakse kvaliteetseid premiumklassi viimistlusmaterjale mis sobituvad ajaloolisse väärikasse hoonesse.
Müüdav korter on 2-toaline, 61,6 m² on mõõdetuna 1 m kõrguselt, 52,1 m² on pind 1,6 m kõrguselt ja põrandapinda on lausa 74,3 m². Avar korter asub läbi kahe korruse (III-IV) ja elutoast avaneb läände 7 m² katuseterrass. Korterisse on paigaldatud konditsioneer. Pesuruumis on vann.
Korteri hind sisaldab käibemaksu!
Juurde on võimalik osta:
- panipaik (erineva suurusega, alates 2 m²) 2200 €/m²
Tule naudi Pärnu ajaloolise vanalinna hõngu, puhka ja ela otse linnasüdames.
Pargid ja rohelus käeulatuses, supelrand jalutuskäigu kaugusel ja teatrisse saab mõne sammuga, muudest Pärnu võludest rääkimata.
Tutvu Mohri Majade kodulehega!
https://www.mohrimajad.domus.ee/
Tule tunne huvi!
Pangad pakuvad Domus Kinnisvara klientidele eluasemelaenu lepingutasu soodustusi. Küsi lisainfot Domus Kinnisvara maaklerilt või hindajalt.
Müü ja hinda meiega! Teeme kinnisvara müügi Sinu jaoks sujuvaks ja pingevabaks.

































