Korterisse on arendaja poolt paigaldatud kvaliteetne eritellimusel köök ning väga korralikud kahekihilised (tüllid ja pimendavad) kardinad väärtuses 10 000 €.
Olemas värskelt tellitud ja kehtiv hindamisakt summale 237 000 eurot!
Pargivaatega butiikmaja, mis asub privaatsel kinnisel videovalvega territooriumil. Kena haljastus, ühtne kogukond, grillala ja suur ühiskasutusega terrass maja elanikele.
Esmaklassilised A-energiaklassiga korterid suurlinna võimalustega väikelinnas Keilas!
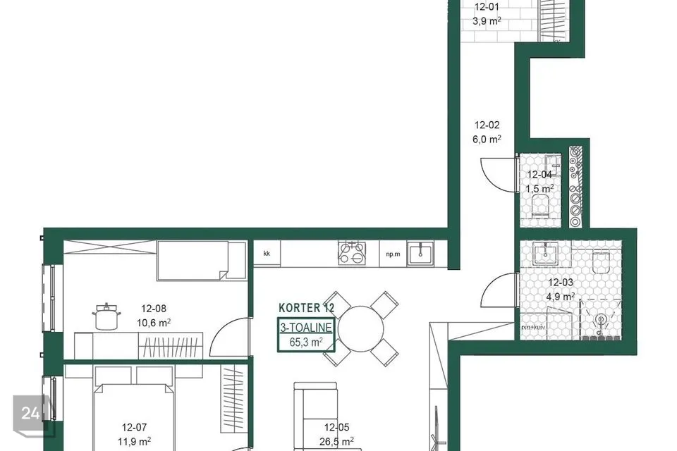
Korter nr 12 on 3-toaline ja asub kolmekorruselise galeriimaja teisel korrusel.
Korteri aknad avanevad maja kahte külge – lõuna ja õhtupäikese suunal. Lõunapoolsel suunal asub ka Keila keskpark, mistõttu avanevad akendest lummav rohelised vaated.
Korteriomandi koosseisu kuulub avatud köögiga elutuba, 2 magamistuba, esik, vannituba koos tualettruumiga ja lisaks veel eraldiseisev tualettruum.
Kortermaja iseloomustab silmapaistev arhitektuur ja läbimõeldud planeering, energiatõhusad lahendused (A-energiaklass, päikesepaneelid) ja premium-klassi siseviimistlus. Kõikides korterites kaugkütte baasil vesipõrandaküte ja plaatsoojusvahetiga soojustagastusega ventilatsioonisüsteem.
Tegemist on kahest majast koosneva arendusega, kus on kokku 16 korterit, millest enamik on tänaseks juba müüdud. Selle projekti puhul on erilist rõhku pandud tervikliku elukeskkonna loomisele. Kahte maja ühendab suur terrass, kuhu mahub istuma ka väga suure seltskonnaga. Hoovis on ühine puhkeala grillimiseks või lõõgastumiseks ja selle kõrval kohe ka kummikattega mänguväljak, kus pere pisemad mängida saavad.
Soovi korral on võimalik korteriga koos soetada ka parkimiskoht hinnaga 5000€ ja panipaik hinnaga 5000€. Panipaigad rataste, jalutuskärude jms hoiustamiseks on eraldi sissepääsudega maja hoovis. Parkimiskohad asuvad kinnistul väravatega suletud alal.
Kõik hinnad sisaldavad käibemaksu.
Kortermaja arendaja on pikaajalise kogemuse ja hea käekirjaga arendaja BAUSTONE, kelle rajatud on ka Metsapargi kodud Jõelähtme vallas ja Tammepesa kodud Sauel ning mitmed teised tuntud hooned Tallinnas ja selle ümber. Rohkem infot: www.baustone.ee
ÜMBRUSKOND
Keilas kohtuvad suurlinnale omased mitmekesised võimalused ja väikelinna võlud. Majad asuvad Keila südames, kohe keskpargi ääres. Logistiliselt väga hea asukoht, kõik eluks vajalik käe-jala juures. Kiire ja mugav ühendus pealinnaga – bussi ja rongipeatused vaid mõnesaja meetri kaugusel. Lühikese jalutuskäigu kaugusele jääb lai vailik erinevaid toidupoode (Selver, Rimi, Maxima, Grossi Toidukaubad). Värskelt avatud Vesiveski keskus ja peagi avatav Keila Keskus jäävad mõlemad vaid 900m kaugusele.
Keila Kool: 700m
Waldorfkool Läte: 400m
Keila lasteaed 300m
Keila Muusikakool: 800m
Ujula/veekeskus (tervisekeskus): 700m
Kultuurikeskus: 350m
Keila terviserajad (jooks, ratas, rulluisk, suusk, matk, discgolf): 2km
Rohkem infot: https://keskpargi.ee
Tunned, et see võiks olla sinu tulevane kodu ja/või otsid head võimalust investeeringuks?
Helista ja lähme vaatama!
JAGA MINU KONTAKTI KÕIGILE, KES VAJAVAD KINNISVARANÕU!
- - - - - - - - - -
Telli hindamine UUS MAA Kinnisvarabüroolt https://uusmaa.ee/teenused/hindamine/
ning saad:
- Eksperthinnangu kuni 20% soodsamalt kui võtad koduga seotud laenu Swedbankist
- Pankadest parimad kodulaenutingimused
- Kiire, kvaliteetse ning usaldusväärse hindamisteenuse Eestis
UUS MAA KINNISVARABÜROO EKSPERTHINNANGUID AKTSEPTEERIVAD KÕIK FINANTSASUTUSED.
- - - - - - - - - -
Liitu Uus Maa uudiskirjaga ja saa homset kinnisvarainfot juba täna!
https://www.uusmaa.ee/uudiskirjagaliitumine/
- - - - - - - - - -
Kodu aitab osta Swedbank.
Pakkumise saamiseks kasuta koodi UUSMAA ja Sind teenindatakse eelisjärjekorras.
Võtame ühendust 1 tööpäeva jooksul.
Uus Maa kliendile soodsam lepingutasu. Küsi täpsemat infot maaklerilt.
Finantsteenuseid pakub Swedbank AS. Tutvu tingimustega, pea nõu.
Olemas värskelt tellitud ja kehtiv hindamisakt summale 237 000 eurot!
Pargivaatega butiikmaja, mis asub privaatsel kinnisel videovalvega territooriumil. Kena haljastus, ühtne kogukond, grillala ja suur ühiskasutusega terrass maja elanikele.
Esmaklassilised A-energiaklassiga korterid suurlinna võimalustega väikelinnas Keilas!
Korter nr 12 on 3-toaline ja asub kolmekorruselise galeriimaja teisel korrusel.
Korteri aknad avanevad maja kahte külge – lõuna ja õhtupäikese suunal. Lõunapoolsel suunal asub ka Keila keskpark, mistõttu avanevad akendest lummav rohelised vaated.
Korteriomandi koosseisu kuulub avatud köögiga elutuba, 2 magamistuba, esik, vannituba koos tualettruumiga ja lisaks veel eraldiseisev tualettruum.
Kortermaja iseloomustab silmapaistev arhitektuur ja läbimõeldud planeering, energiatõhusad lahendused (A-energiaklass, päikesepaneelid) ja premium-klassi siseviimistlus. Kõikides korterites kaugkütte baasil vesipõrandaküte ja plaatsoojusvahetiga soojustagastusega ventilatsioonisüsteem.
Tegemist on kahest majast koosneva arendusega, kus on kokku 16 korterit, millest enamik on tänaseks juba müüdud. Selle projekti puhul on erilist rõhku pandud tervikliku elukeskkonna loomisele. Kahte maja ühendab suur terrass, kuhu mahub istuma ka väga suure seltskonnaga. Hoovis on ühine puhkeala grillimiseks või lõõgastumiseks ja selle kõrval kohe ka kummikattega mänguväljak, kus pere pisemad mängida saavad.
Soovi korral on võimalik korteriga koos soetada ka parkimiskoht hinnaga 5000€ ja panipaik hinnaga 5000€. Panipaigad rataste, jalutuskärude jms hoiustamiseks on eraldi sissepääsudega maja hoovis. Parkimiskohad asuvad kinnistul väravatega suletud alal.
Kõik hinnad sisaldavad käibemaksu.
Kortermaja arendaja on pikaajalise kogemuse ja hea käekirjaga arendaja BAUSTONE, kelle rajatud on ka Metsapargi kodud Jõelähtme vallas ja Tammepesa kodud Sauel ning mitmed teised tuntud hooned Tallinnas ja selle ümber. Rohkem infot: www.baustone.ee
ÜMBRUSKOND
Keilas kohtuvad suurlinnale omased mitmekesised võimalused ja väikelinna võlud. Majad asuvad Keila südames, kohe keskpargi ääres. Logistiliselt väga hea asukoht, kõik eluks vajalik käe-jala juures. Kiire ja mugav ühendus pealinnaga – bussi ja rongipeatused vaid mõnesaja meetri kaugusel. Lühikese jalutuskäigu kaugusele jääb lai vailik erinevaid toidupoode (Selver, Rimi, Maxima, Grossi Toidukaubad). Värskelt avatud Vesiveski keskus ja peagi avatav Keila Keskus jäävad mõlemad vaid 900m kaugusele.
Keila Kool: 700m
Waldorfkool Läte: 400m
Keila lasteaed 300m
Keila Muusikakool: 800m
Ujula/veekeskus (tervisekeskus): 700m
Kultuurikeskus: 350m
Keila terviserajad (jooks, ratas, rulluisk, suusk, matk, discgolf): 2km
Rohkem infot: https://keskpargi.ee
Tunned, et see võiks olla sinu tulevane kodu ja/või otsid head võimalust investeeringuks?
Helista ja lähme vaatama!
JAGA MINU KONTAKTI KÕIGILE, KES VAJAVAD KINNISVARANÕU!
- - - - - - - - - -
Telli hindamine UUS MAA Kinnisvarabüroolt https://uusmaa.ee/teenused/hindamine/
ning saad:
- Eksperthinnangu kuni 20% soodsamalt kui võtad koduga seotud laenu Swedbankist
- Pankadest parimad kodulaenutingimused
- Kiire, kvaliteetse ning usaldusväärse hindamisteenuse Eestis
UUS MAA KINNISVARABÜROO EKSPERTHINNANGUID AKTSEPTEERIVAD KÕIK FINANTSASUTUSED.
- - - - - - - - - -
Liitu Uus Maa uudiskirjaga ja saa homset kinnisvarainfot juba täna!
https://www.uusmaa.ee/uudiskirjagaliitumine/
- - - - - - - - - -
Kodu aitab osta Swedbank.
Pakkumise saamiseks kasuta koodi UUSMAA ja Sind teenindatakse eelisjärjekorras.
Võtame ühendust 1 tööpäeva jooksul.
Uus Maa kliendile soodsam lepingutasu. Küsi täpsemat infot maaklerilt.
Finantsteenuseid pakub Swedbank AS. Tutvu tingimustega, pea nõu.


















































