NB: sisustusega 3D pildid on illustratiivsed, korteri hind ei sisalda ilupiltidel kujutatud sisustust. Võimalus juurde osta köök.
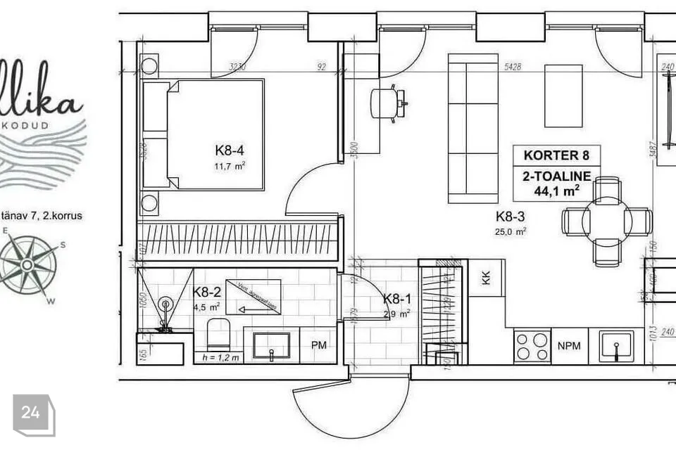
Allika Kodude korter nr 8 on teisel korrusel asuv kahetoaline mõnusa planeeringuga hoovipoolne elupind. Elutoa- ning köögialal on kaks suurt pea maast laeni prantsuserõduga akent, mis tagab kodus mõnusa loomuliku valguse. Magamistoas on samuti suur aken. Vannitoas on kvaliteetne santehnika ning dušš on eraldatud klaasseinaga.
Allika Kodud on ideaalne elukeskkond neile, kes hindavad oma elus väiksema linna võlusid. Pealinnaga võrreldes on siin elutempo oluliselt rahulikum ja keskkond kaunim. Keila kesklinnas suurepärases asukohas olevast Allika Kodudest on jalutuskäigu kaugusel nii poed, apteek, kaunid pargid, lasteaiad, koolid kui ka sportimisvõimalused. Samuti on läheduses rongijaam, kust Tallinna südalinna tööle, kooli või kultuuri nautima jõuab vaid 30-minutiga!
Hoone fassaadilt sisenetav eraldiseisev jalgratta- ja lapsekärude hoiuruum on samuti väärtus igapäevaseks mugavaks liikumiseks!
Golfi armastajad võtavad ilmselt koduklubiks Niitvälja, mis asub vaid 7 minutilise autosõidu kaugusel! Samal trajektooril asub ka vahva Niitvälja ratsakool!
Keilast on väga sujuv transpordiühendus Tallinna ringtee kaudu Harjumaa teiste toredate elupiirkondadega, näiteks: Saue, Saku, Luige, Peetri, Jüri või Kiili.
Keilasse rajatakse uus Keila Keskus, rohkem infot leiad siit: https://keilakeskus.ee/ Seal hakkab olema sisuliselt kõik, mis toetab igapäevaelu mugavusi.
Allika Kodude lähimad ujumisrannad, mida nautida suvel või taliujumise hooajal, on: Harku, Vääna-Jõesuu, Klooga ning kaunis Laulasmaa rand.
EHITUSINFO
Moodsa arhitektuuriga hoone fassaad on põneva viimistlusmaterjalide kokkumäng, kus on kasutatud krohvi, puitu ning fassaadiplaati. Aknad on kolmekordse klaaspaketiga.
Kodudesse kerge ligipääs on tagatud liftiga!
Hind sisaldab kvaliteetsete materjalidega siseviimistluspaketti, hinnale lisandub panipaiga maksumus (3900€) ning soovi korral saab lisatasu eest ka hästi läbimõeldud ja kvaliteetse köögi.
Dušëiruumis on paigaldatud sanitaartehnika ning dušiklaas uksega.
Pakkuda on kaks erinevat kööki, mida ka piltidelt näha on. Suurema köögi saab tellida 10 000€ ning väiksema 7000€ eest. Köögi hindadele lisandub käibemaks.
Korteris on jahutusseadme paigalduse valmidus (torustik ja kaabeldus elutoa lae alt katuseni).
Allika Kodud on A-energiaklassi hoone, mille katusel asuvad päikesepaneelid. Päikesepaneelide toodang suunatakse esmajoones maja omakasutusse üldelektriks.
Kui tunned, et siin võiks olla Sinu kodu või näed seda ideaalse investeerimisvõimalusena, võta palun minuga ühendust, räägime lähemalt.
Korterit on võimalik ka üürida!
Olemas kehtiv hindamisakt (300eur) - kiire tehing.
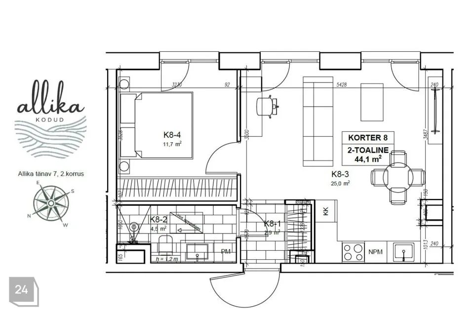
Allika Kodude korter nr 8 on teisel korrusel asuv kahetoaline mõnusa planeeringuga hoovipoolne elupind. Elutoa- ning köögialal on kaks suurt pea maast laeni prantsuserõduga akent, mis tagab kodus mõnusa loomuliku valguse. Magamistoas on samuti suur aken. Vannitoas on kvaliteetne santehnika ning dušš on eraldatud klaasseinaga.
Allika Kodud on ideaalne elukeskkond neile, kes hindavad oma elus väiksema linna võlusid. Pealinnaga võrreldes on siin elutempo oluliselt rahulikum ja keskkond kaunim. Keila kesklinnas suurepärases asukohas olevast Allika Kodudest on jalutuskäigu kaugusel nii poed, apteek, kaunid pargid, lasteaiad, koolid kui ka sportimisvõimalused. Samuti on läheduses rongijaam, kust Tallinna südalinna tööle, kooli või kultuuri nautima jõuab vaid 30-minutiga!
Hoone fassaadilt sisenetav eraldiseisev jalgratta- ja lapsekärude hoiuruum on samuti väärtus igapäevaseks mugavaks liikumiseks!
Golfi armastajad võtavad ilmselt koduklubiks Niitvälja, mis asub vaid 7 minutilise autosõidu kaugusel! Samal trajektooril asub ka vahva Niitvälja ratsakool!
Keilast on väga sujuv transpordiühendus Tallinna ringtee kaudu Harjumaa teiste toredate elupiirkondadega, näiteks: Saue, Saku, Luige, Peetri, Jüri või Kiili.
Keilasse rajatakse uus Keila Keskus, rohkem infot leiad siit: https://keilakeskus.ee/ Seal hakkab olema sisuliselt kõik, mis toetab igapäevaelu mugavusi.
Allika Kodude lähimad ujumisrannad, mida nautida suvel või taliujumise hooajal, on: Harku, Vääna-Jõesuu, Klooga ning kaunis Laulasmaa rand.
EHITUSINFO
Moodsa arhitektuuriga hoone fassaad on põneva viimistlusmaterjalide kokkumäng, kus on kasutatud krohvi, puitu ning fassaadiplaati. Aknad on kolmekordse klaaspaketiga.
Kodudesse kerge ligipääs on tagatud liftiga!
Hind sisaldab kvaliteetsete materjalidega siseviimistluspaketti, hinnale lisandub panipaiga maksumus (3900€) ning soovi korral saab lisatasu eest ka hästi läbimõeldud ja kvaliteetse köögi.
Dušëiruumis on paigaldatud sanitaartehnika ning dušiklaas uksega.
Pakkuda on kaks erinevat kööki, mida ka piltidelt näha on. Suurema köögi saab tellida 10 000€ ning väiksema 7000€ eest. Köögi hindadele lisandub käibemaks.
Korteris on jahutusseadme paigalduse valmidus (torustik ja kaabeldus elutoa lae alt katuseni).
Allika Kodud on A-energiaklassi hoone, mille katusel asuvad päikesepaneelid. Päikesepaneelide toodang suunatakse esmajoones maja omakasutusse üldelektriks.
Kui tunned, et siin võiks olla Sinu kodu või näed seda ideaalse investeerimisvõimalusena, võta palun minuga ühendust, räägime lähemalt.
Korterit on võimalik ka üürida!
Olemas kehtiv hindamisakt (300eur) - kiire tehing.





























