Müüa uus maja korteri hinnaga. Elamu valmib oktoobri lõpudks ja ootab juba Novembris 2025 uusi elanikke.
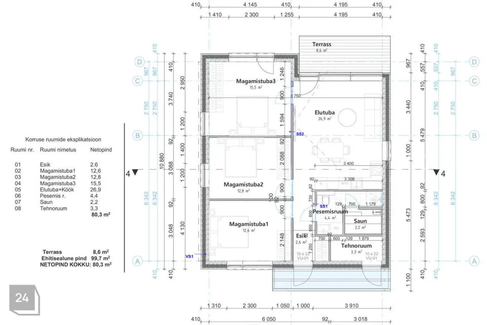
Elamu planeering on hästi läbimõeldud ja pakub head võimalused mõnusaks olemiseks. Avarust lisavad eluruumidele 3 m kõrgused laed ja kõrged aknad. Elutoa suur aken avaneb terrassi poole ja muudab eluruumi valgusküllaseks ning loob visuaalset lisaruumi.
Pakutav elamu on projekteeritud kauakesvaks ja minimaalset hoolt nõudvaks.
Hind ei sisalda piirdeaeda, köögimööblit ja tänavasillutist.
Arendaja kohustuseks jääb kasutusloa taotlemine.
Maja on projekteeritud B-energiaklassi, olemas on soojustagastusega ventilatsioon.
Planeering: esik, wc, saun või vannituba koos pesemisruumiga, kolm või neli magamistuba, avatud köögiga elutuba ja väljast sisenetav tehnoruum - panipaik.
Kütteks: õhk-vesi soojuspump põrandakütte lahendusena.
Majas on tsentraalne vesi-kanalisatsioon (Emajōe Veevärk), ning side kaabli paigadamise valmidus, elekteri liitumine 3x16A.
Detailplaneering lubab ehitada eluhoonele lisaks abihoone ehitusaluse pinnaga 50m²
Lisaks saame pakkumises samas rajoonis 3 või 4 magamistoa ja saunaga või vannitoaga peremaju.
Fotod maja välimusest on müüdavast majast,
siseviimistlus näited on tehtud varem valminud sarnastest objektidest.
Majaga tutvumiseks palun aega broneerida telefoni või e-kirja teel.
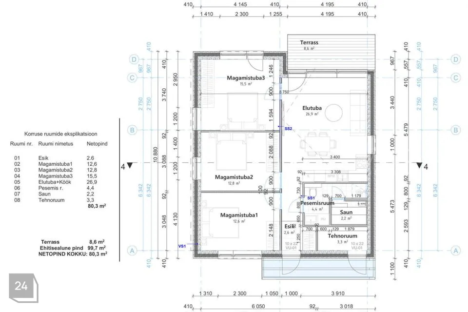
Elamu planeering on hästi läbimõeldud ja pakub head võimalused mõnusaks olemiseks. Avarust lisavad eluruumidele 3 m kõrgused laed ja kõrged aknad. Elutoa suur aken avaneb terrassi poole ja muudab eluruumi valgusküllaseks ning loob visuaalset lisaruumi.
Pakutav elamu on projekteeritud kauakesvaks ja minimaalset hoolt nõudvaks.
Hind ei sisalda piirdeaeda, köögimööblit ja tänavasillutist.
Arendaja kohustuseks jääb kasutusloa taotlemine.
Maja on projekteeritud B-energiaklassi, olemas on soojustagastusega ventilatsioon.
Planeering: esik, wc, saun või vannituba koos pesemisruumiga, kolm või neli magamistuba, avatud köögiga elutuba ja väljast sisenetav tehnoruum - panipaik.
Kütteks: õhk-vesi soojuspump põrandakütte lahendusena.
Majas on tsentraalne vesi-kanalisatsioon (Emajōe Veevärk), ning side kaabli paigadamise valmidus, elekteri liitumine 3x16A.
Detailplaneering lubab ehitada eluhoonele lisaks abihoone ehitusaluse pinnaga 50m²
Lisaks saame pakkumises samas rajoonis 3 või 4 magamistoa ja saunaga või vannitoaga peremaju.
Fotod maja välimusest on müüdavast majast,
siseviimistlus näited on tehtud varem valminud sarnastest objektidest.
Majaga tutvumiseks palun aega broneerida telefoni või e-kirja teel.


























