Hinnatud piirkonnas Ülenurmes vaikses tupiktänavas, linnapiirist kõigest ca 4 km kaugusel valmib 2025.aasta sügisel UUS kolmekordne korterelamu Paruni 19. Kortermaja on projekteerinud Kauss Arhitektuuribüroo. Arhitektuurne lahendus on omanäoline ja funktsionaalne. Kõik korterid on planeeringult läbimõeldud ning praktilise ruumilahendusega.
Paruni 19 korterelamu on eraldi A ja B korpusega ning keldrikorrusel asuvad panipaigad ja jalgrataste/lapsevankrite hoiuruum. Kõikidele korteritele on olemas parkimiskohad. Korterelamu ehitamisel kasutatakse kvaliteetseid ehitusmaterjale nii välis- kui ka siseviimistluses.
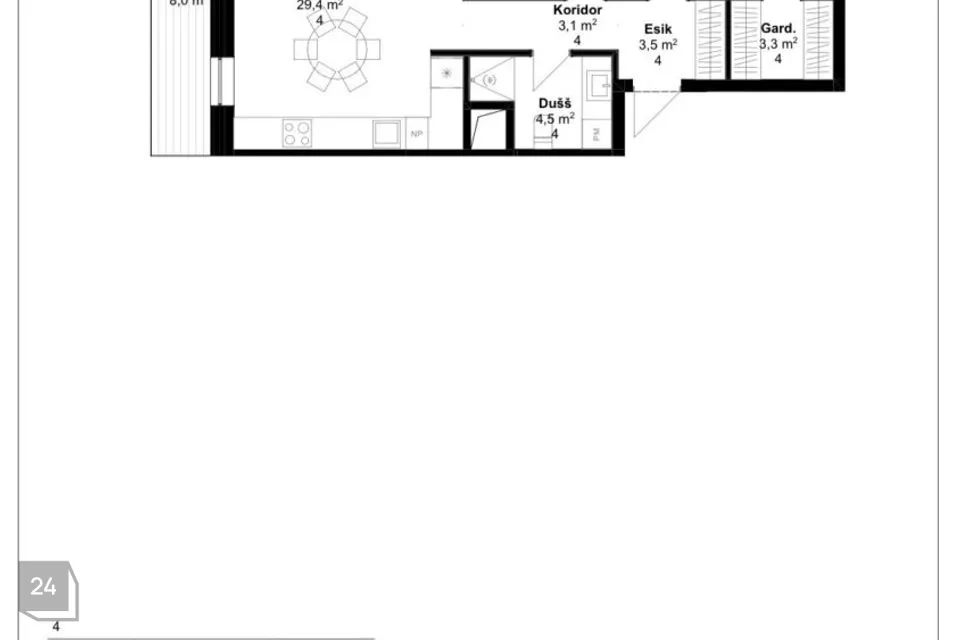
Paruni 19 korter 4 on esimesel korrusel asuv kahe magamistoaga korter. Magamistoad on suurustega 11,2 m2 ja 12,3 m2. Suurema magamistoa juures on lisaks veel eraldi garderoob suurusega 3,3 m2. Elutuba/köök on suurusega 29,5 m2. Korteril on avar rõdu suurusega 8m2, mis asub õhtupäikese poole.
Korteri juurde kuulub sokli korrusel olev panipaik suurusega 3,2 m2 ning 2 parkimiskohta maja ees asuvas asfalteeritud parklas.
Korteris on soojustagastusega ventilatsioon, küttesüsteem on rajatud vesipõrandakütte baasil.
Paruni 19 kortermaja peamine fassaadikattematerjal on värvitud puit, millele lisavad aktsenti maja otsades ja rõdu külgedel olevad värvitud fassaadiplaadiga pinnad.
Arvestades piirkonna üldist hoonestuslaadi on Paruni 19 kortermaja jaotatud kaheks korpuseks, mis on ühendatud kitsama osaga, mille esimesel korrusel on sissepääs. Sissepääsust pääseb trepikodadesse ja maja taha hoovi.
www.artehouse.ee
EI LUBA ENDA KUULUTUST KOPEERIDA!
Paruni 19 korterelamu on eraldi A ja B korpusega ning keldrikorrusel asuvad panipaigad ja jalgrataste/lapsevankrite hoiuruum. Kõikidele korteritele on olemas parkimiskohad. Korterelamu ehitamisel kasutatakse kvaliteetseid ehitusmaterjale nii välis- kui ka siseviimistluses.
Paruni 19 korter 4 on esimesel korrusel asuv kahe magamistoaga korter. Magamistoad on suurustega 11,2 m2 ja 12,3 m2. Suurema magamistoa juures on lisaks veel eraldi garderoob suurusega 3,3 m2. Elutuba/köök on suurusega 29,5 m2. Korteril on avar rõdu suurusega 8m2, mis asub õhtupäikese poole.
Korteri juurde kuulub sokli korrusel olev panipaik suurusega 3,2 m2 ning 2 parkimiskohta maja ees asuvas asfalteeritud parklas.
Korteris on soojustagastusega ventilatsioon, küttesüsteem on rajatud vesipõrandakütte baasil.
Paruni 19 kortermaja peamine fassaadikattematerjal on värvitud puit, millele lisavad aktsenti maja otsades ja rõdu külgedel olevad värvitud fassaadiplaadiga pinnad.
Arvestades piirkonna üldist hoonestuslaadi on Paruni 19 kortermaja jaotatud kaheks korpuseks, mis on ühendatud kitsama osaga, mille esimesel korrusel on sissepääs. Sissepääsust pääseb trepikodadesse ja maja taha hoovi.
www.artehouse.ee
EI LUBA ENDA KUULUTUST KOPEERIDA!













