A-energiaklassi galeriimaja korter Tiskres – Juure tee 1
NB !!!! Viimane vaba korter majas, kasutusloaga.
Korteriomand, kivimaja
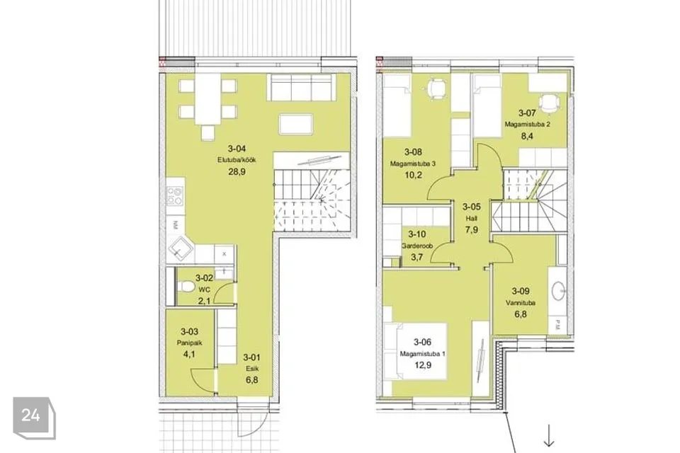
Köök: elektripliit, avatud köök,
Sanruum: wc ja vannituba eraldi
Küte ja ventilatsioon: Õhk-vesisoojuspump, kombineeritud küte
Lisainfo: parkimine tasuta, pakettaknad, toad eraldi, terrass, panipaik
Side ja turvalisus: valvesüsteemi kaabeldus tehtud, turvauks, trepikoda lukus
Ümbrus: meri lähedal, teed heas seisukorras, äärelinnas, ümbruses eramud ja korterelamud, naabrid ühel pool
Müüa uued kahekorruselised korterid Tiskres. Tiskre küla pakub peredele ideaalset elukeskkonda, kus on olemas kõik eluks vajalikud teenused ja mugavused. Lähikonnas asuvad koolid ja lasteaiad, erinevad kauplused ja ostukeskused, rohked vaba aja veetmise võimalused looduses ning mugavad ühistranspordiühendused muudavad Tiskre küla atraktiivseks elupiirkonnaks.
• Kesklinn on 20-minutilise autosõidu kaugusel
• Lähedal on Tiskre lasteaed, Harku kool, Tabasalu Ühisgümnaasium
• Kauplused: Meie Pood (2 min), Tiskre Prisma (4 min), Tabasalu Rimi ja Selver (6 min), Tabasalu keskus (6 min)
KOMMUNAALKULUD
Madalad kütte- ja kommunaalkulud tagavad õhk-soojuspump ja päikesepaneelid. Ruumide betoonpõrandates on vesipõrandaküte, mida saab ruumipõhiselt juhtida digitaalandurite kaudu.
KORTERID:
Igale ridaelamuboksile kuulub kaks parkimiskohta (parkimiskohad on hinna sees), on igas toas eraldi reguleeritav vesipõrandaküte, õhk-vesi soojuspump, igal korteril on oma soojustagastusega sundventilatsiooni agregaat, köök + elutuba, panipaik (4,1m2), tubade arv 4, magamistube 3 +garderoob(3,7m2).
Maja on ehitatud kivi plokides ,
NB ! vahekorrus ja katus betoonpaneelidest, mis tagab parima helipidavuse. Aknad on kolmekordse klaaspaketiga.
Olete huvitatud kodust Tiskre külas? Soovite rohkem teada saada ja näha oma tulevast kodu oma silmaga? Võtke ühendust ja tulge tutvuma!
Ei luba enda kuulutust kopeerida
Maakleritel palun mitte tülitada.



















































