Müüme parkimiskoha Rocca Towersi esimeses tornmajas, Päevalille tn 4! Parkimiskoha hind sisaldab käibemaksu (24%)!
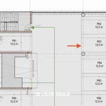
Müüdav parkimiskoht asub parkimismaja teisel korrusel ning ei ole äärmine koht, mis lihtsustab parkimist oluliselt. Parkimiskoht tähistusega P63.
Parkimismaja on suletud liugustega, mis on mugavalt puldist avatavad.
NB! Antud parkimiskoha saame müüa ka majast välja st et ostjaks ei pea olema ainult sama maja elanik.
ÜMBRUS
Vahetus läheduses asuvad Rocca al Mare Kaubanduskeskus, Unibet Arena, erinevad spordisaalid ning kaubandus- ja teeninduspinnad. Rocca Towers ja selle ümbruskond on hinnatud nii elamiskohana kui ka äriliselt! Elanikkond, teenuste tihedus, liiklus – kõik see toetab parkimiskohtade kasvavat vajadust antud piirkonnas.
Lisainfo saamiseks võtke julgelt ühendust!
Müüdav parkimiskoht asub parkimismaja teisel korrusel ning ei ole äärmine koht, mis lihtsustab parkimist oluliselt. Parkimiskoht tähistusega P63.
Parkimismaja on suletud liugustega, mis on mugavalt puldist avatavad.
NB! Antud parkimiskoha saame müüa ka majast välja st et ostjaks ei pea olema ainult sama maja elanik.
ÜMBRUS
Vahetus läheduses asuvad Rocca al Mare Kaubanduskeskus, Unibet Arena, erinevad spordisaalid ning kaubandus- ja teeninduspinnad. Rocca Towers ja selle ümbruskond on hinnatud nii elamiskohana kui ka äriliselt! Elanikkond, teenuste tihedus, liiklus – kõik see toetab parkimiskohtade kasvavat vajadust antud piirkonnas.
Lisainfo saamiseks võtke julgelt ühendust!

















