H O M E
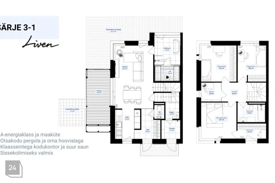
This corner house with a larger yard has a living room with corner windows on the first floor, which opens directly onto a terrace. This floor also includes a sauna, a separate toilet room, a utility room, and a practical storage area accessible from both the room and the yard. On the second floor, there is a study, a bathroom with a tub, and three bedrooms, one of which has its own walk-in closet with a window. Two parking spaces are included with the house section.
The home is ready for moving in, come and see!
I N T E R I O R
– single-layer natural finish oak parquet – smooth veneer doors finished similar to parquet – matte stainless steel door handles – matt white switches, sockets, and recessed lighting – 60x60 cm ceramic tiles in bathrooms, Grohe chrome-finished mixers, Villeroy & Boch sink and toilet, Balteco acrylic bathtub, bath glass
If desired, you can order built-in furniture through Liven – interior design service for furniture planning is included in the home price.
H O U S E S & O U T D O O R A R E A S
Iseära is a new self-emerging garden city near Harku Lake. Gabled row houses and apartments are rising here, each with its own unique interior and exterior. Homes feature high 3-meter ceilings and 2.6-meter windows. All Iseära row and apartment houses are A-energy class. House facade color solutions vary but are always inspired by the surrounding nature – lake reflections, forest paths, and evening sky blue. Homes seamlessly transition into terraces and then into car-free park areas between houses. Community life begins from here.
S U R R O U N D I N G S
A characteristic park with spaces for both adults and children is located between Iseära houses and continues to grow. The area is green and just a few minutes' drive from the city center. Everything needed for comfortable living is nearby – Harku Lake beach, cycling paths for sports, grocery stores and shopping centers, schools and kindergartens. It's wonderful here, come and see for yourself!
* At Iseära, you can visit a brand-new display home, either on your own or with a Liven interior designer. Contact us and ask for more information.
This corner house with a larger yard has a living room with corner windows on the first floor, which opens directly onto a terrace. This floor also includes a sauna, a separate toilet room, a utility room, and a practical storage area accessible from both the room and the yard. On the second floor, there is a study, a bathroom with a tub, and three bedrooms, one of which has its own walk-in closet with a window. Two parking spaces are included with the house section.
The home is ready for moving in, come and see!
I N T E R I O R
– single-layer natural finish oak parquet – smooth veneer doors finished similar to parquet – matte stainless steel door handles – matt white switches, sockets, and recessed lighting – 60x60 cm ceramic tiles in bathrooms, Grohe chrome-finished mixers, Villeroy & Boch sink and toilet, Balteco acrylic bathtub, bath glass
If desired, you can order built-in furniture through Liven – interior design service for furniture planning is included in the home price.
H O U S E S & O U T D O O R A R E A S
Iseära is a new self-emerging garden city near Harku Lake. Gabled row houses and apartments are rising here, each with its own unique interior and exterior. Homes feature high 3-meter ceilings and 2.6-meter windows. All Iseära row and apartment houses are A-energy class. House facade color solutions vary but are always inspired by the surrounding nature – lake reflections, forest paths, and evening sky blue. Homes seamlessly transition into terraces and then into car-free park areas between houses. Community life begins from here.
S U R R O U N D I N G S
A characteristic park with spaces for both adults and children is located between Iseära houses and continues to grow. The area is green and just a few minutes' drive from the city center. Everything needed for comfortable living is nearby – Harku Lake beach, cycling paths for sports, grocery stores and shopping centers, schools and kindergartens. It's wonderful here, come and see for yourself!
* At Iseära, you can visit a brand-new display home, either on your own or with a Liven interior designer. Contact us and ask for more information.




























