For Sale: Spacious and Modern 5-Room House in Rapidly Developing Kakumetsa Village, Completed by End of 2025. If you are looking for a home with quality construction and thoughtful layout in a peaceful yet developing area, this offer is perfect for you.
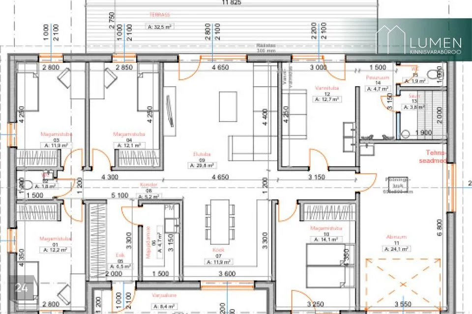
The house is single-story and spacious, with a heated area of 157.4 m² and a 32.5 m² terrace at the back. The total construction area is 189.9 m², and the modern design offers both spaciousness and practicality.
The house is built on a concrete slab foundation with 300 mm EPS insulation. Exterior walls are prefabricated wooden frame construction, insulated with 250 mm wool, and finished with high-quality siding. The roof is made of profile sheet metal installed on prefabricated trusses. Ceiling insulation is provided by 600 mm of loose wool. Windows are energy-efficient with triple-glazed packages. A special mesh has been installed on the foundation to prevent rodents, and all interior walls are insulated with 50 mm wool to achieve excellent sound isolation.
The layout is convenient and modern. At the entrance, there is a spacious hallway with enough room for a large wardrobe and direct access to the utility room. Moving from the hallway, you reach a corridor leading to the living room, with three bedrooms to the left measuring 11.9 m², 12.1 m², and 12.2 m² respectively, and a separate toilet of 1.8 m². The living room and open kitchen together are 41.7 m² and have a through layout, offering plenty of natural light and spaciousness. The living room provides direct access to the garage, which houses all technical equipment. To the right of the corridor is the largest bedroom at 14.1 m², and to the left are the sauna anteroom, toilet, washroom, and sauna.
Interior finishing uses modern and high-quality solutions. Floors are covered with durable parquet, and early buyers have the opportunity to provide input on interior finishes. The washroom is fully tiled and equipped with quality sanitary ware. The sauna room is finished with heat-treated aspen wood and has an electric heater. The sauna anteroom is spacious and can accommodate a sofa, TV, and wine cooler. There is also preparation for installing a jacuzzi to make relaxation even more enjoyable.
The house uses an economical and environmentally friendly ground source heat pump. The heating system is based on underfloor water heating, ensuring uniform and pleasant warmth throughout the house. A heat recovery ventilation system creates a good indoor climate. Water and sewage are centralized, and electrical capacity is 3x16A.
The plot size is 1,622 m² and will be planned and covered with grass. Parking is designed for at least two cars, offering convenience for the whole family.
Luunjamõisa new residential area is located 4 km from Tartu city limits. It is a suburban residential area with all utilities. Centralized water and sewage, centralized stormwater drainage, illuminated asphalt roads for vehicles, cyclists, and pedestrians. Bicycle path connection to the city. Bus stops 450 m away, Luunja center 2 km. Luunja has: Luunja Central School; Midrimaa Kindergarten; Coop; Luunja Harbor; leisure center; library, etc.
Lumen Real Estate Agency - We want people to have the right to transparent service, quick service, and a personal approach when selling their most valuable asset.
The house is single-story and spacious, with a heated area of 157.4 m² and a 32.5 m² terrace at the back. The total construction area is 189.9 m², and the modern design offers both spaciousness and practicality.
The house is built on a concrete slab foundation with 300 mm EPS insulation. Exterior walls are prefabricated wooden frame construction, insulated with 250 mm wool, and finished with high-quality siding. The roof is made of profile sheet metal installed on prefabricated trusses. Ceiling insulation is provided by 600 mm of loose wool. Windows are energy-efficient with triple-glazed packages. A special mesh has been installed on the foundation to prevent rodents, and all interior walls are insulated with 50 mm wool to achieve excellent sound isolation.
The layout is convenient and modern. At the entrance, there is a spacious hallway with enough room for a large wardrobe and direct access to the utility room. Moving from the hallway, you reach a corridor leading to the living room, with three bedrooms to the left measuring 11.9 m², 12.1 m², and 12.2 m² respectively, and a separate toilet of 1.8 m². The living room and open kitchen together are 41.7 m² and have a through layout, offering plenty of natural light and spaciousness. The living room provides direct access to the garage, which houses all technical equipment. To the right of the corridor is the largest bedroom at 14.1 m², and to the left are the sauna anteroom, toilet, washroom, and sauna.
Interior finishing uses modern and high-quality solutions. Floors are covered with durable parquet, and early buyers have the opportunity to provide input on interior finishes. The washroom is fully tiled and equipped with quality sanitary ware. The sauna room is finished with heat-treated aspen wood and has an electric heater. The sauna anteroom is spacious and can accommodate a sofa, TV, and wine cooler. There is also preparation for installing a jacuzzi to make relaxation even more enjoyable.
The house uses an economical and environmentally friendly ground source heat pump. The heating system is based on underfloor water heating, ensuring uniform and pleasant warmth throughout the house. A heat recovery ventilation system creates a good indoor climate. Water and sewage are centralized, and electrical capacity is 3x16A.
The plot size is 1,622 m² and will be planned and covered with grass. Parking is designed for at least two cars, offering convenience for the whole family.
Luunjamõisa new residential area is located 4 km from Tartu city limits. It is a suburban residential area with all utilities. Centralized water and sewage, centralized stormwater drainage, illuminated asphalt roads for vehicles, cyclists, and pedestrians. Bicycle path connection to the city. Bus stops 450 m away, Luunja center 2 km. Luunja has: Luunja Central School; Midrimaa Kindergarten; Coop; Luunja Harbor; leisure center; library, etc.
Lumen Real Estate Agency - We want people to have the right to transparent service, quick service, and a personal approach when selling their most valuable asset.
















































