1 / 21
2 / 21
3 / 21
4 / 21
5 / 21
6 / 21
7 / 21
8 / 21
9 / 21
10 / 21
11 / 21
12 / 21
13 / 21
14 / 21
15 / 21
16 / 21
17 / 21
18 / 21
19 / 21
20 / 21
21 / 21
Like what you saw?
NB! Good offers are taken quickly.
Description
Automatically translated
Opmani Homes are created as a symbiosis between beauty and practicality. The modernist architectural language, meticulously planned room layout, and natural building materials ensure a healthy and elegant environment for all residents.


Layout


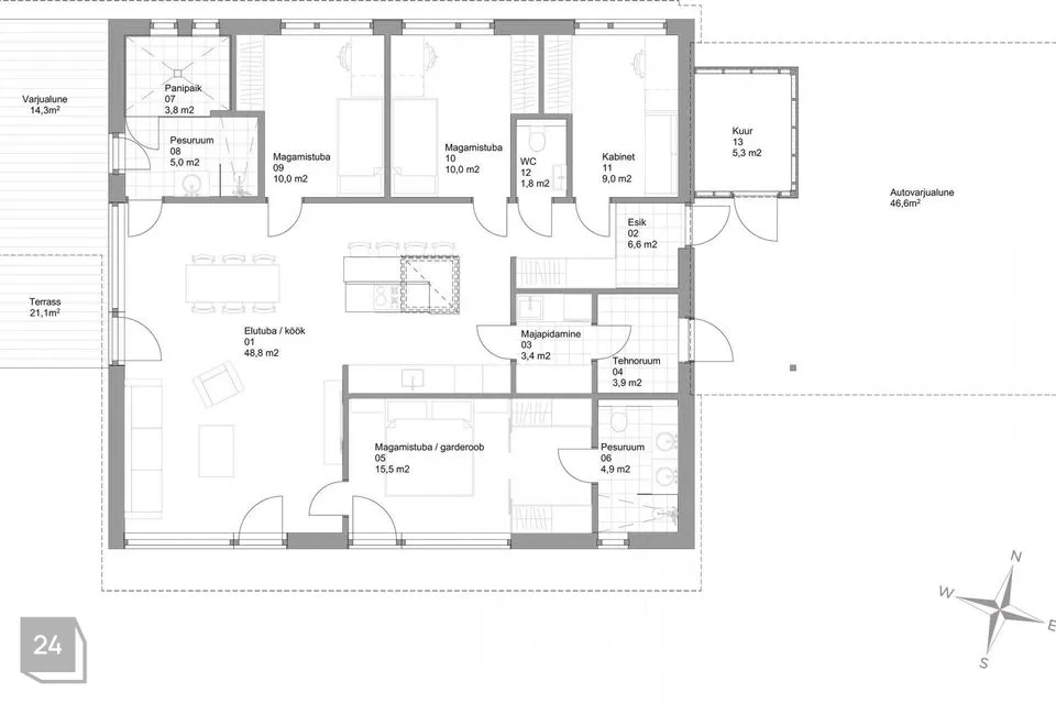
The main floor plan has been thoroughly optimized in its spatial arrangement. To the right of the main entrance axis are three bedrooms, a toilet, and a utility room with a storage area or sauna. The L-shaped central room is divided into three zones. The kitchen is located in the heart of the home, next to it is a dining room with west-facing windows and a living room area opening to the south. Full-height windows and a spacious roof window ensure sufficient natural light reaches even the kitchen, which is set back from the external perimeter. Directly next to the kitchen is a utility room / pantry, which provides access to the technical room. On the southern side of the building is the main bedroom with a walk-in closet and ensuite bathroom. Terraces are located on the south and west sides of the building. The western terrace has a canopy under which an outdoor kitchen can be built and which can be accessed from the utility room. Next to the main entrance is a cold storage shed and a shelter for two cars.


Facade


The building facade is covered with painted/stained wood cladding. The building has painted wooden windows and exterior doors. The foundation is an L-element prefabricated slab with a pre-finished surface. The roof is covered with a light PVC membrane.


Interior


Wooden floors are covered with 1-strip wood parquet. Floors in wet rooms, hallway, kitchen, utility room, and technical room have stone tile coverings.
Walls and ceilings are plastered and painted. Utility room walls are tiled.
Bedroom doors have a sloping threshold.


You can choose between four different interior design packages (coral, pearl shell, aquamarine, and kimberlit).


Structures


The building is constructed on a fiber concrete slab foundation.
The roof is built on wooden trusses. The roof is covered with a light PVC membrane.


Heating and Cooling


The building is heated using a ground source heat pump. The building is cooled using ground loop free cooling.
Readiness for solar panel installation is available.


Water, Sewerage, Electricity


The building has centralized water supply and sewerage. Hot water production is done using a ground source heat pump.
A drainage system will be built around the building, connected to the central gravity stormwater sewerage system.
The building has a 32A 3-phase electrical connection.
Parking spaces have the capability to install an Enefit VOLT electric vehicle charger.
The house is connected to Enefit Connect fiber optic cable.


A Loxone building automation system will be installed in the house. It controls technical equipment (ventilation, heating, floor cooling) and includes a gate intercom.
The automation control panel is located in the hallway and can also be used via the Loxone app on smart devices. For an additional fee, you can order an electric car charger, PV solar panels, and control of curtains for large windows in the living room and bedroom. It is also possible to integrate a security center with the automation system.


Landscaping


Gray nun stone will be used when creating the stone areas of the building.
The existing trees will be maximally preserved on the property, along with shrubs in the rear area. Ground source heating will be installed in the area between the street and the building.
The property has a light gray wooden slat fence. The building's car gate is a two-wing gate. The pedestrian gate is manually operated.


Location


Opmani Homes are located in Vaela, Kiili Municipality. Vaela kindergarten is 1 kilometer away, and Kiili center, which houses a gymnasium, family doctor center, shops, and eateries, is 4 km away. Immediately across the Tallinn Ring Road is the rapidly developing Kurna Park with IKEA, Selver, Decathlon, and other stores. Ülemiste and Järve shopping centers are less than a 15-minute drive away.


Developer


Lumberlov is a real estate development company that was the first in Estonia to specialize in wooden building construction.
Lumberlov uses factory-produced elements when building wooden houses. This construction method ensures the highest quality, as critical structures and nodes are completed in a controlled environment, not exposed to weather conditions on the construction site.


Development website: opmanielamud.ee


Also for sale in this development:
- Ilbapõllu põik 4
- Ilbapõllu põik 5
- Ilbapõllu põik 6
- Ilbapõllu põik 7
- Ilbapõllu põik 1


Plus row house units:


- Opmani tee 12-1
- Opmani tee 12-2
- Opmani tee 12-3
- Opmani tee 12-4
- Opmani tee 12-5
- Opmani tee 12-6


- Opmani tee 14-1 - reserved
- Opmani tee 14-2
- Opmani tee 14-3
- Opmani tee 14-4
- Opmani tee 14-5
- Opmani tee 14-6


Construction has begun. Project completion expected by end of 2025.


Images are illustrative and may differ from the final completed product.



SHARE MY CONTACT WITH EVERYONE WHO NEEDS REAL ESTATE ADVICE!
- - - - - - - - - -
Order an appraisal from UUS MAA Real Estate Agency https://uusmaa.ee/teenused/hindamine/
and get:
- Expert valuation up to 20% cheaper when taking a home-related loan from Swedbank
- Best home loan conditions from banks
- Fast, high-quality, and reliable valuation service in Estonia
UUS MAA REAL ESTATE AGENCY EXPERT VALUATIONS ARE ACCEPTED BY ALL FINANCIAL INSTITUTIONS.
- - - - - - - - - -


Subscribe to the Uus Maa newsletter and get tomorrow's real estate information today!
https://www.uusmaa.ee/uudiskirjagaliitumine/


- - - - - - - - - -


Swedbank helps you buy a home.
To receive an offer, use the code UUSMAA and you will be served in priority order.
We will contact you within 1 working day.
More favorable contract fee for Uus Maa clients. Ask your broker for specific details.


Financial services provided by Swedbank AS. Review the terms, seek advice.

Ilbapõllu põik 3, Vaela küla

Single-story house, A energy rating, also check out the video!

Kiili vald, Harju maakondMüüa|house

459 000 €
3577.55 €/m²
Area
128.30 m²
Condition
New development
Rooms
5
Bedrooms
4
Bathrooms/​WCs
2 / 2
Floors
1
Construction year
2025
Energy class
A
Land area
1999.00m²
Cadastral identification
30401:001:2465
Kadri Ojamets
Kadri OjametsKinnisvarabüroo UUS MAA OÜKinnisvaramaakler, tase 5
Kinnisvara24 Top Broker 2023
Coop logo
Home loan calculator
EUR
years
%
%
Own contribution:
0 €

Monthly payment:
0 €
The displayed result is informative and based on an estimated calculation.Read the conditionscarefully and, if neccessary, ask for additional information.

Interested? Ask for more details!

Kadri Ojamets
Kadri Ojamets
Kinnisvarabüroo UUS MAA OÜ
Real estate broker, level 5
Kinnisvara24 Top Broker 2023