WE WILL FINISH THE APARTMENT ACCORDING TO YOUR WISHES
The apartment for sale is designed across two floors - on the first floor there is an entryway, an open-plan kitchen-living room, two bedrooms, and a shower-toilet room, and in the basement floor there is a so-called home spa - a private relaxation and sauna complex with auxiliary rooms - with a total area of 86.7 m²
The apartment's good indoor climate is ensured by heat recovery ventilation and the heating solution is floor heating on a district heating basis with water carriers.
There is readiness for Telia fiber optic cable connection, video-phone lock system readiness, and electric car charging possibility.
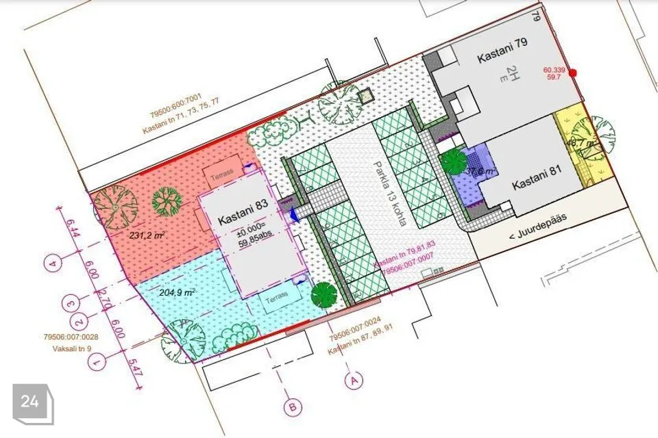
On a property with a century-long history on Kastani Street, three different era-reflecting apartment buildings are being completed - Kastani St 79/81/83.
Kastani 79 and 81 are completed, and the historic Kastani 83 apartment building is being restored as a new construction: https://kastanihoov.ee/
Kastani 83 is a new four-apartment building designed with a gable roof characteristic of the area, yet in a modern architectural approach. On the first floor are two 3-room apartments and on the second floor two 4-room apartments.
- interior finishing according to the developer's offered packages;
- parking spot on the property.
SHARE MY CONTACT WITH EVERYONE WHO NEEDS REAL ESTATE ADVICE!
- - - - - - - - - -
Order an appraisal from UUS MAA Real Estate Agency https://uusmaa.ee/teenused/hindamine/
and get:
- Expert assessment up to 20% cheaper if you take a home-related loan from Swedbank
- Best home loan conditions from banks
- Quick, high-quality, and reliable assessment service in Estonia
UUS MAA REAL ESTATE AGENCY EXPERT ASSESSMENTS ARE ACCEPTED BY ALL FINANCIAL INSTITUTIONS.
- - - - - - - - - -
https://www.uusmaa.ee/uudiskirjagaliitumine/
To get an offer, use the code UUSMAA and you will be served in priority order.
We will contact you within 1 working day.
More favorable contract fee for Uus Maa clients. Ask your broker for precise information.
The apartment for sale is designed across two floors - on the first floor there is an entryway, an open-plan kitchen-living room, two bedrooms, and a shower-toilet room, and in the basement floor there is a so-called home spa - a private relaxation and sauna complex with auxiliary rooms - with a total area of 86.7 m²
The apartment's good indoor climate is ensured by heat recovery ventilation and the heating solution is floor heating on a district heating basis with water carriers.
There is readiness for Telia fiber optic cable connection, video-phone lock system readiness, and electric car charging possibility.
On a property with a century-long history on Kastani Street, three different era-reflecting apartment buildings are being completed - Kastani St 79/81/83.
Kastani 79 and 81 are completed, and the historic Kastani 83 apartment building is being restored as a new construction: https://kastanihoov.ee/
Kastani 83 is a new four-apartment building designed with a gable roof characteristic of the area, yet in a modern architectural approach. On the first floor are two 3-room apartments and on the second floor two 4-room apartments.
- interior finishing according to the developer's offered packages;
- parking spot on the property.
SHARE MY CONTACT WITH EVERYONE WHO NEEDS REAL ESTATE ADVICE!
- - - - - - - - - -
Order an appraisal from UUS MAA Real Estate Agency https://uusmaa.ee/teenused/hindamine/
and get:
- Expert assessment up to 20% cheaper if you take a home-related loan from Swedbank
- Best home loan conditions from banks
- Quick, high-quality, and reliable assessment service in Estonia
UUS MAA REAL ESTATE AGENCY EXPERT ASSESSMENTS ARE ACCEPTED BY ALL FINANCIAL INSTITUTIONS.
- - - - - - - - - -
https://www.uusmaa.ee/uudiskirjagaliitumine/
To get an offer, use the code UUSMAA and you will be served in priority order.
We will contact you within 1 working day.
More favorable contract fee for Uus Maa clients. Ask your broker for precise information.

































