Would you like to live in a private, nature-close area away from the big city hustle, yet conveniently close to the city center? LADVAOTSA HOMES offer all this and more. The apartment building will have 34 stylish apartments of varying sizes, offering choices for investors, young people looking for their first home, and families.
We have begun selling the third and final apartment building at Lääne 12 address. The apartments will be completed by the end of summer 2026.
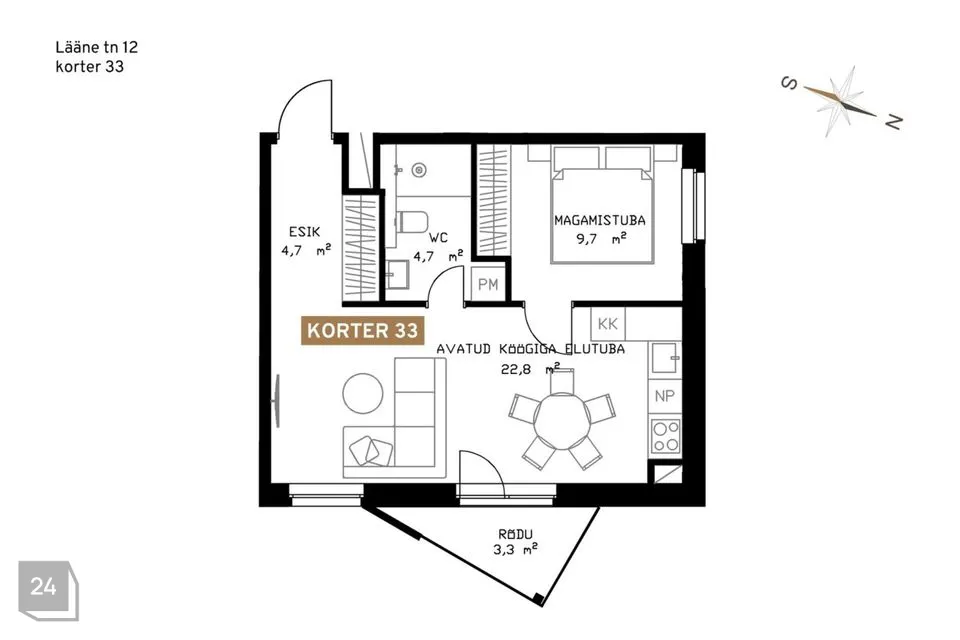
The closed net area of the apartment for sale is 41.9 m2, with an additional 3.3 m2 balcony. The apartment consists of an entryway, a living room with an open kitchen, a bedroom, and a bathroom with shower. The apartment price includes final interior finishing. The floors will have parquet, walls and ceilings will be painted. Bathroom walls and floors will be tiled and sanitary equipment installed (toilet, sink, shower mixer).
Thanks to the cozy balconies belonging to each apartment, you can enjoy sunshine and fresh air year-round. You don't need to worry about space, as the basement storage room has plenty of room for seasonal items. You can park your car calmly in the spacious parking lot next to the building. If you prefer to make your daily trips by bicycle, you can store your bike in the separate bicycle room on the basement floor.
In the new apartment building, you don't need to worry about high energy prices and leaving a large carbon footprint - the nearly zero-energy building has very low heating costs. District heating is used, which is Tartu's greenest and most affordable option. A pleasant indoor climate is ensured by heat recovery ventilation. Additionally, solar panels on the roof produce part of the required electrical energy.
A parking space must be purchased separately for 3000 €.
More information: www.ladvaotsa.ee
NB! The images attached to the listing are illustrative.
We have begun selling the third and final apartment building at Lääne 12 address. The apartments will be completed by the end of summer 2026.
The closed net area of the apartment for sale is 41.9 m2, with an additional 3.3 m2 balcony. The apartment consists of an entryway, a living room with an open kitchen, a bedroom, and a bathroom with shower. The apartment price includes final interior finishing. The floors will have parquet, walls and ceilings will be painted. Bathroom walls and floors will be tiled and sanitary equipment installed (toilet, sink, shower mixer).
Thanks to the cozy balconies belonging to each apartment, you can enjoy sunshine and fresh air year-round. You don't need to worry about space, as the basement storage room has plenty of room for seasonal items. You can park your car calmly in the spacious parking lot next to the building. If you prefer to make your daily trips by bicycle, you can store your bike in the separate bicycle room on the basement floor.
In the new apartment building, you don't need to worry about high energy prices and leaving a large carbon footprint - the nearly zero-energy building has very low heating costs. District heating is used, which is Tartu's greenest and most affordable option. A pleasant indoor climate is ensured by heat recovery ventilation. Additionally, solar panels on the roof produce part of the required electrical energy.
A parking space must be purchased separately for 3000 €.
More information: www.ladvaotsa.ee
NB! The images attached to the listing are illustrative.














