Abroad
•
Articles
•
Find an agent
•
Developments
•
Prefabricated Houses
en
EE
EN
RU
Log in
Add advertisement
Homepage
Apartment
Sale
Harju maakond
Tallinn
Kesklinna linnaosa
Kitseküla
For sale apartment, 3 rooms
1 / 37
2 / 37
3 / 37
4 / 37
5 / 37
6 / 37
7 / 37
8 / 37
9 / 37
10 / 37
11 / 37
12 / 37
13 / 37
14 / 37
15 / 37
16 / 37
17 / 37
18 / 37
19 / 37
20 / 37
21 / 37
22 / 37
23 / 37
24 / 37
25 / 37
26 / 37
27 / 37
28 / 37
29 / 37
30 / 37
31 / 37
32 / 37
33 / 37
34 / 37
35 / 37
36 / 37
37 / 37
Like what you saw?
Get in touch
NB! Good offers are taken quickly.
Explore development
Share
Map
Copy link
Copy
Print
Description
Read more
Details
General information
Property type
:
apartment
Intended use
:
residential land 90%, commercial land 10%
Property details
Bathrooms
:
1
Kitchen area
:
5.3m²
Shower
Extras
Additional spaces and parking
Parking space
:
free
Storage room
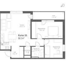
Kiisa tn 12-58, Kitseküla, Kesklinn
Tallinn, Harju maakond
Müüa
|
apartment
283 500 €
4169.12 €/m²
Monthly payment 0 €
Area
68.00 m²
Rooms
3
Bedrooms
2
Floor
4/6
Condition
New development
Construction year
2024
Energy class
B
Balcony
7.2 m²
Building construction material
Panel
Cadastral identification
78401:101:0521
Eno Juul
Kinnisvarabüroo UUS MAA OÜ
Kinnisvara vanemmaakler, tase 6
Kinnisvara24 Top Broker 2023/2024
Show number
Send email
Home loan calculator
Price
EUR
Period
years
Interest rate
%
EURIBOR 6 months
%
i
Own contribution
%
€
Own contribution:
0 €
Monthly payment:
0 €
Ask for a loan offer
The displayed result is informative and based on an estimated calculation.
Read the conditions
carefully and, if neccessary, ask for additional information.
Report inappropriate listing
Interested? Ask for more details!
Eno Juul
Kinnisvarabüroo UUS MAA OÜ
Real estate broker, level 6
Kinnisvara24 Top Broker 2023/2024
See all realtor's ads
Show number
Send email