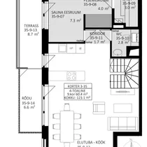
Astangu 50B/3-35 is a 123.1 m2 penthouse apartment, which comes with 2 balconies (6.7m2+6.6m2) and a terrace (8.7m2), offering magnificent views towards the forests and Harku Lake.
The apartment spans two floors:
On the 1st floor are the bedrooms, a balcony (6.6m2), and a spacious bathroom with a bathtub and WC.
On the 2nd floor is an open-plan kitchen with a living room and balcony, a separate WC, a sauna with a utility room and terrace.
The entire apartment receives afternoon sun. Cooling system ready!
The apartment price does not include the cost of storage room and parking spaces.
Storage room price starting from €5,500.
Parking space price starting from €10,000.
Ask the sales representative about other available apartments or check the development website: https://fundehitus.ee/marjamae/
Architectural firm Puusepp & Mänd OÜ has designed 3 modern-looking residential buildings on the property, to be constructed in two phases – first, a 9-story building with 38 apartments will be completed, followed by two 7-story residential buildings in the next phase. The buildings are connected by an underground parking floor. Each building has a spacious elevator, storage rooms, and bicycle storage areas. There are 2- to 5-room apartments ranging from 48-137 m², so you're sure to find the most suitable one for you. Thanks to large windows and open floor plans, the apartments are spacious and light-filled. Each apartment has a balcony or terrace. Inspired by nature-close tones, we have created interior finishing solutions in collaboration with an interior architect. An inner courtyard will be built on the property, where it will be possible to relax and unwind in every season. A safe playground is planned for the youngest family members. The terrain between the buildings can be used as a sledding hill during winter.
More information can be found:





















