Abroad
•
Articles
•
Find an agent
•
Developments
•
Prefabricated Houses
en
EE
EN
RU
Log in
Add advertisement
Homepage
Apartment
Sale
Harju maakond
Tallinn
Haabersti linnaosa
Astangu
For sale apartment, 4 rooms
1 / 11
2 / 11
3 / 11
4 / 11
5 / 11
6 / 11
7 / 11
8 / 11
9 / 11
10 / 11
11 / 11
Like what you saw?
Get in touch
NB! Good offers are taken quickly.
Explore development
Share
Map
Copy link
Copy
Print
Description
Read more
Details
General information
Property type
:
apartment
Neighbourhood
:
surrounded
Nearby water body
:
lake
Road conditions
:
good
Building permit
Property details
Bathrooms/WCs
:
2 / 2
Connected Kitchen
Connected bathroom and WC
Shower
Bathtub
Extras
Additional spaces and parking
Parking space
:
underground lot
Storage room
Building description
Completeness of building
:
ready
Windows
:
plastic windows
Phono
Technical systems
Power supply
:
✔
Heating system
:
central
Warm water
:
central
Water supply
:
central
Sewage
:
central
Type of ventilation
:
heat return
Solar panelling
Elevator
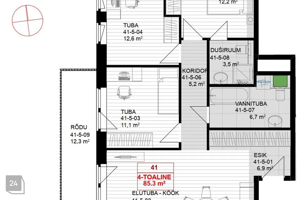
Astangu tn 50b/2-41, Astangu, Haabersti
Tallinn, Harju maakond
Müüa
|
apartment
253 900 €
2969.59 €/m²
Monthly payment 0 €
Area
85.50 m²
Rooms
4
Bedrooms
3
Floor
5/7
Condition
New development
Construction year
2025
Energy class
A
Balcony
12.3 m²
Building construction material
Panel
Ownership arrangement
Apartment
Kristina Sõmerik
Fund Ehitus OÜ
Kinnisvara vanemmaakler, tase 6
Show number
Send email
Home loan calculator
Price
EUR
Period
years
Interest rate
%
EURIBOR 6 months
%
i
Own contribution
%
€
Own contribution:
0 €
Monthly payment:
0 €
Ask for a loan offer
The displayed result is informative and based on an estimated calculation.
Read the conditions
carefully and, if neccessary, ask for additional information.
Report inappropriate listing
Interested? Ask for more details!
Kristina Sõmerik
Fund Ehitus OÜ
Real estate broker, level 6
See all realtor's ads
Show number
Send email