A 3-room apartment with a good layout and large balcony – perfect for a city dweller who values spaciousness and functionality.
Come with me on a video tour: https://www.youtube.com/shorts/p1OHPVF3oRY
BUILDING Mustjuure City Homes is a new residential development with A-energy class apartment buildings in a developing area of Tallinn. The building rising on the Paldiski Highway 95 plot will be completed in the summer of 2026. The building features modern technical systems, underfloor heating, heat recovery ventilation, and an elevator that takes you directly from the heated underground garage to your floor – convenience for everyday and in any weather.
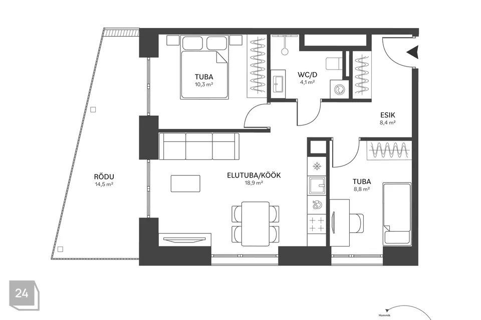
LAYOUT AND INTERIOR Apartment 6 (50.5 m²) is located on the second floor and offers a solution with two bedrooms and a spacious living room-kitchen. The crown of the apartment is a 14.5 m² glazed balcony, accessible from the living room – an ideal spot for evening dinners in the fresh air or peaceful morning coffees.
Windows face south and west, bringing abundant light into the apartment throughout the day.
The apartment includes:
Living room and open kitchen – 18.9 m²
Bedroom 1 – 10.3 m²
Bedroom 2 – 8.8 m²
Hallway – 8.4 m²
WC/shower room – 4.1 m²
Balcony – 14.5 m²
The apartment is delivered with finishing – with a choice of modern and timeless interior design packages that suit different tastes and interior styles.
PARKING AND STORAGE You can acquire an underground parking space for €11,000 and a storage room for €3,000 – a practical solution for storing everyday and seasonal items. There is a separate storage room for bicycles.
LOCATION AND SURROUNDINGS Mustjuure's location is unique – the intersection of Kristiine, Haabersti, and North Tallinn offers good connectivity to the entire city and plenty of green surroundings.
Stroomi beach and promenade within walking distance
Running and cycling paths right next to the building
City center access in 10 minutes
Good public transportation connection
Schools, kindergartens, shops, and cafes nearby
Want to see more options? Explore other apartments in the development: www.mustjuure.ee
Ask for more information or schedule a meeting.
BUILDING Mustjuure City Homes is a new residential development with A-energy class apartment buildings in a developing area of Tallinn. The building rising on the Paldiski Highway 95 plot will be completed in the summer of 2026. The building features modern technical systems, underfloor heating, heat recovery ventilation, and an elevator that takes you directly from the heated underground garage to your floor – convenience for everyday and in any weather.
LAYOUT AND INTERIOR Apartment 6 (50.5 m²) is located on the second floor and offers a solution with two bedrooms and a spacious living room-kitchen. The crown of the apartment is a 14.5 m² glazed balcony, accessible from the living room – an ideal spot for evening dinners in the fresh air or peaceful morning coffees.
Windows face south and west, bringing abundant light into the apartment throughout the day.
The apartment includes:
Living room and open kitchen – 18.9 m²
Bedroom 1 – 10.3 m²
Bedroom 2 – 8.8 m²
Hallway – 8.4 m²
WC/shower room – 4.1 m²
Balcony – 14.5 m²
The apartment is delivered with finishing – with a choice of modern and timeless interior design packages that suit different tastes and interior styles.
PARKING AND STORAGE You can acquire an underground parking space for €11,000 and a storage room for €3,000 – a practical solution for storing everyday and seasonal items. There is a separate storage room for bicycles.
LOCATION AND SURROUNDINGS Mustjuure's location is unique – the intersection of Kristiine, Haabersti, and North Tallinn offers good connectivity to the entire city and plenty of green surroundings.
Stroomi beach and promenade within walking distance
Running and cycling paths right next to the building
City center access in 10 minutes
Good public transportation connection
Schools, kindergartens, shops, and cafes nearby
Want to see more options? Explore other apartments in the development: www.mustjuure.ee
Ask for more information or schedule a meeting.


















