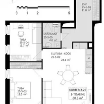
The apartment at Astangu 50B/3- 25 is a 3-room apartment with a 12.3m2 balcony. The views open in two directions.
The price of the apartment does not include a storage room or a parking space.
Storage space price from 5500€, parking space price from 10000€.
Photos are illustrative!
Ask the sales representative for information about other apartments for sale or see more details on the development website: https://fundehitus.ee/marjamae/
Architectural office Puusepp & Mänd OÜ has designed 3 apartment buildings with a modern exterior on the property, which will be built in two stages - the first will be a 9-story apartment building with 38 apartments, and in the next stage, two 7-story apartment buildings. The buildings are connected by an underground parking floor. Each building has a spacious elevator, storage rooms and bicycle storage rooms. The selection includes 2- to 5-room apartments, ranging in size from 48 to 137 m², among which you will definitely find the most suitable one for you. Thanks to the large windows and open layout, the apartments are spacious and bright. Each apartment has a balcony or terrace. Inspired by natural tones, we have created interior finishing solutions in collaboration with an interior architect. A courtyard area will be built on the property, where there is an opportunity to rest and relax in any season. A safe playground is planned for the youngest members of the family. The relief that will emerge between the houses can be used as a sledding hill in winter, for example.
For more information, see:

















