Come discover your new home in the heart of Tallinn!
Ready in tfebruary 2026!
Find some additional information from:
https://grunbergi.ee/
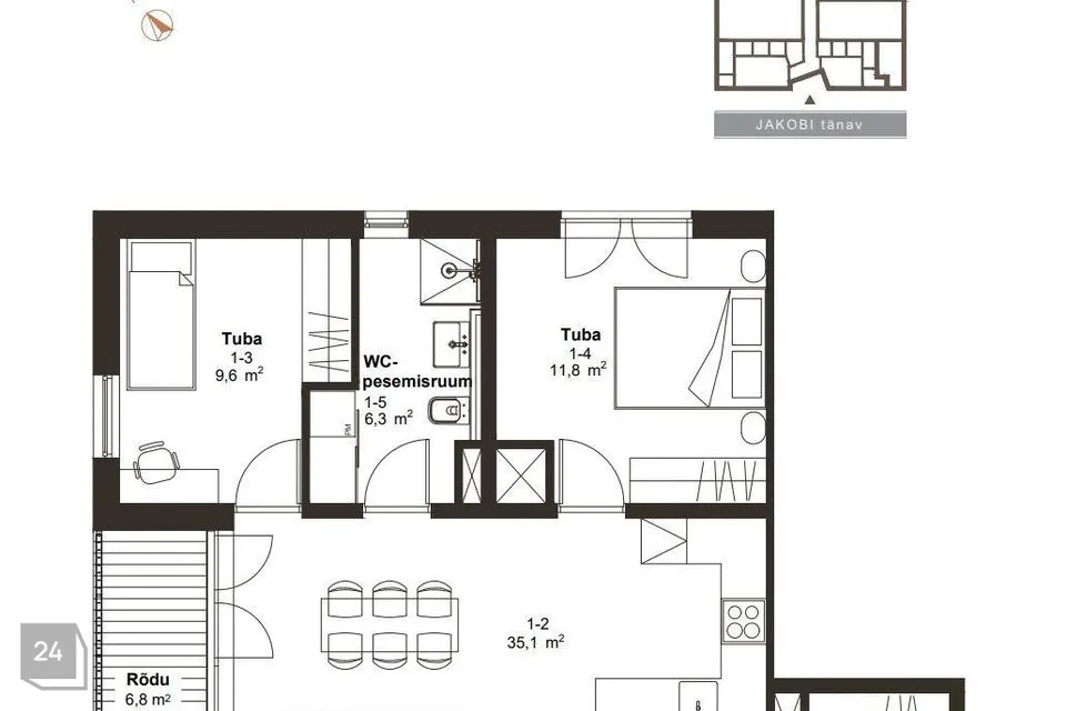
We offer a 70.8 m² apartment with a balcony overlooking the courtyard on the first floor of the building. The apartment features a spacious kitchen-living room, two bedrooms, a bathroom with a shower, and a separate guest toilet. There is also a cozy 6.8 m² covered balcony.
Grünberg House is a modern five-story residential building known for its elegant and functional architecture. The building has a total of 17 bright and modern apartments and 3 commercial spaces, offering an ideal combination of urban convenience and a peaceful living environment.
Beautiful home with a green courtyard The courtyard of Grünberg House is designed as a green recreational area, offering privacy and the opportunity to enjoy tranquility in the middle of the city. Most apartments have balconies with views of the greenery. The building has underground parking spaces, priced at €25,000. This is an ideal place for those who want to live in a modern, cozy, and people-friendly environment.
Everything you need for life within reach
*Educational institutions nearby: The new Liivamäe kindergarten and Juhkentali Gymnasium are in close proximity, offering excellent educational opportunities for families. *Shopping and leisure: A short walk away are the soon-to-be-renovated Central Market, Stockmann department store, and a small Rimi store – everything you need for daily life is right here.
In the heart of the city, with ideal connections Grünberg House is located between three main streets – Tartu Road, Juhkentali, and Odra Street – offering excellent public transport connections and quick access to all parts of Tallinn.
The preliminary design of the building was created by renowned architect Ignar Fjuk (ARCHITECTURE OFFICE IGNAR FJUK). The construction quality is ensured by the experienced real estate developer Capitall Mill.
There are still 3-4 room apartments of various layouts and sizes available in the building. Contact us for more information.
Contact us today for more information and find your new home or business in the city center, where the city and greenery meet.
Ready in tfebruary 2026!
Find some additional information from:
https://grunbergi.ee/
We offer a 70.8 m² apartment with a balcony overlooking the courtyard on the first floor of the building. The apartment features a spacious kitchen-living room, two bedrooms, a bathroom with a shower, and a separate guest toilet. There is also a cozy 6.8 m² covered balcony.
Grünberg House is a modern five-story residential building known for its elegant and functional architecture. The building has a total of 17 bright and modern apartments and 3 commercial spaces, offering an ideal combination of urban convenience and a peaceful living environment.
Beautiful home with a green courtyard The courtyard of Grünberg House is designed as a green recreational area, offering privacy and the opportunity to enjoy tranquility in the middle of the city. Most apartments have balconies with views of the greenery. The building has underground parking spaces, priced at €25,000. This is an ideal place for those who want to live in a modern, cozy, and people-friendly environment.
Everything you need for life within reach
*Educational institutions nearby: The new Liivamäe kindergarten and Juhkentali Gymnasium are in close proximity, offering excellent educational opportunities for families. *Shopping and leisure: A short walk away are the soon-to-be-renovated Central Market, Stockmann department store, and a small Rimi store – everything you need for daily life is right here.
In the heart of the city, with ideal connections Grünberg House is located between three main streets – Tartu Road, Juhkentali, and Odra Street – offering excellent public transport connections and quick access to all parts of Tallinn.
The preliminary design of the building was created by renowned architect Ignar Fjuk (ARCHITECTURE OFFICE IGNAR FJUK). The construction quality is ensured by the experienced real estate developer Capitall Mill.
There are still 3-4 room apartments of various layouts and sizes available in the building. Contact us for more information.
Contact us today for more information and find your new home or business in the city center, where the city and greenery meet.

























