The price of the apartment includes kitchen furniture and appliances!
In the beautiful and close-to-town Tiskre settlement, two modern A-energy class apartment buildings are being built, developed by AS TTP, known for its construction quality and with over 30 years of experience.
36 modern apartments offer a comfortable life.
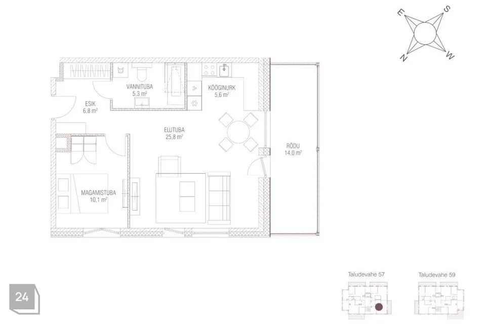
Each building has 18 2- to 4-room apartments with different layouts. Ideal choices for families with and without children, single people and older people. A layout and size that suits everyone's needs. A balcony or terrace in almost every apartment is an additional space that is appreciated in good weather. The elevator is the icing on the cake of convenience. Depending on the location of the apartment in the building, the apartments on the third and fourth floors offer a breathtaking sea view over lovely private houses.
Convenient to park both underground and above ground.
The shared underground garage of the two apartment buildings saves cars from both the blazing summer sun and winter ice. After a shopping trip, it is even more convenient to drive out without delay on a winter morning, while the ice is being scraped off the windshield outside. 2/3 of the 56 parking spaces are planned for the shared parking lot under the buildings. There are also storage rooms for all apartments there.
Close to nature but with the conveniences of the city.
The Rannamõisa and Sõrve landscape protection areas are rich in both flora and fauna. Countless kilometers of light traffic roads allow you to move in every direction, both on foot and by bicycle. A car or bus ride will take you smoothly to any part of the city via Haabersti and Rocca al Mare.
Tiskre Prisma, located within walking distance, can become your home store, while numerous restaurants in the area provide a break from everyday cooking. Up the hill is Tabasalu with its diverse shopping, sports and leisure opportunities.
All this and of course the proximity to the sea make Taludevahe a very attractive place to live.
Energy-efficient and environmentally friendly. Everyone agrees.
Solar panels on the roof, economical air-to-water heat pumps, forced ventilation with heat recovery and triple-glazed windows ensure an A-energy class, thanks to which the maintenance costs of your new home are reasonable. Underfloor heating is adjustable on an apartment-by-apartment basis. Effective sound insulation ensures that your home peace is not disturbed by neighbors or passing cars. However, banks usually provide loans for A-energy class homes on preferential terms.
Three timeless interior decoration packages with matching bathroom solutions.
When you buy an apartment in Taludevahe, you can say with your hand on your heart: “This is our most beautiful home.”
The floor-to-ceiling windows bring natural daylight into the room, which is an important advantage in our climate.
The interior decoration packages, which have been carefully prepared, have been thought out down to the last detail. With us, you don’t have to think about which interior door matches which color of wall or floor, or which stone tile should be in the bathroom. Everything is designed for you. You choose a package - you get an elegant complete solution inside, right down to the sockets. There is one small but, in our opinion, nice choice you really have to make regarding the interior decoration yourself - whether the floor is herringbone or not. Everything else has been taken care of for you in advance.
We do not compromise on quality – we promise you that everything aesthetically beautiful is also reliable.
What might you like here?
• Solar panels
• Smart house system
• Cooling capacity in some apartments
• Elevator
• Balconies
• Terraces
• Underground parking
• Playground
• Fenced yard
• Closed bicycle parking
Distances: sea 750 m, Tabasalu 24/7 Fitness 1.4 km, childcare 300 m, Tiskre Prisma 850 m, bus stop 290 m, Rocca al Mare Centre 5.2 km, Tabasalu Selver 1.4 km, Tiskre 24/7 Alexela 750 m.
Yours The construction of a new comfortable A-energy class home is in full swing and the buildings have already reached their full height.
Contact us to secure an apartment with the best layout for your family in this wonderful new development, which will be completed in May 2025.
You can find more detailed prices, plans, sales conditions and everything else on the website: https://taludevahe.ee/
The price of the apartment does not include the price of a parking space and storage room:
• Storage room 3.5-4m2 5,000 euros
• Parking space under the house 12,000 euros
• Parking space outside 7,000 euros
NB! The pictures of the apartment are illustrative! The price does not include the furniture in the pictures.
SHARE MY CONTACT WITH EVERYONE WHO NEEDS REAL ESTATE ADVICE!
- - - - - - - - - - -
Order an appraisal from UUS MAA Real Estate Agency https://uusmaa.ee/teenused/hindamine/
and you will get:
- Expert appraisal up to 20% cheaper than taking a home loan from Swedbank
- The best home loan terms from banks
- Fast, high-quality and reliable appraisal service in Estonia
THE EXPERT APPRAISALS OF UUS MAA REAL ESTATE AGENCY ARE ACCEPTED BY ALL FINANCIAL INSTITUTIONS.
- - - - - - - - - -
Subscribe to the Uus Maa newsletter and get tomorrow's real estate information today!
https://www.uusmaa.ee/uudiskirjagaliitumine/
- - - - - - - - - - -
Swedbank helps you buy a home.
To receive an offer, use the code UUSMAA and you will be served in priority order.
We will contact you within 1 business day.
A more favorable contract fee for Uus Maa clients. Ask a broker for more detailed information.
Financial services are offered by Swedbank AS. Read the terms and conditions, consult.
In the beautiful and close-to-town Tiskre settlement, two modern A-energy class apartment buildings are being built, developed by AS TTP, known for its construction quality and with over 30 years of experience.
36 modern apartments offer a comfortable life.
Each building has 18 2- to 4-room apartments with different layouts. Ideal choices for families with and without children, single people and older people. A layout and size that suits everyone's needs. A balcony or terrace in almost every apartment is an additional space that is appreciated in good weather. The elevator is the icing on the cake of convenience. Depending on the location of the apartment in the building, the apartments on the third and fourth floors offer a breathtaking sea view over lovely private houses.
Convenient to park both underground and above ground.
The shared underground garage of the two apartment buildings saves cars from both the blazing summer sun and winter ice. After a shopping trip, it is even more convenient to drive out without delay on a winter morning, while the ice is being scraped off the windshield outside. 2/3 of the 56 parking spaces are planned for the shared parking lot under the buildings. There are also storage rooms for all apartments there.
Close to nature but with the conveniences of the city.
The Rannamõisa and Sõrve landscape protection areas are rich in both flora and fauna. Countless kilometers of light traffic roads allow you to move in every direction, both on foot and by bicycle. A car or bus ride will take you smoothly to any part of the city via Haabersti and Rocca al Mare.
Tiskre Prisma, located within walking distance, can become your home store, while numerous restaurants in the area provide a break from everyday cooking. Up the hill is Tabasalu with its diverse shopping, sports and leisure opportunities.
All this and of course the proximity to the sea make Taludevahe a very attractive place to live.
Energy-efficient and environmentally friendly. Everyone agrees.
Solar panels on the roof, economical air-to-water heat pumps, forced ventilation with heat recovery and triple-glazed windows ensure an A-energy class, thanks to which the maintenance costs of your new home are reasonable. Underfloor heating is adjustable on an apartment-by-apartment basis. Effective sound insulation ensures that your home peace is not disturbed by neighbors or passing cars. However, banks usually provide loans for A-energy class homes on preferential terms.
Three timeless interior decoration packages with matching bathroom solutions.
When you buy an apartment in Taludevahe, you can say with your hand on your heart: “This is our most beautiful home.”
The floor-to-ceiling windows bring natural daylight into the room, which is an important advantage in our climate.
The interior decoration packages, which have been carefully prepared, have been thought out down to the last detail. With us, you don’t have to think about which interior door matches which color of wall or floor, or which stone tile should be in the bathroom. Everything is designed for you. You choose a package - you get an elegant complete solution inside, right down to the sockets. There is one small but, in our opinion, nice choice you really have to make regarding the interior decoration yourself - whether the floor is herringbone or not. Everything else has been taken care of for you in advance.
We do not compromise on quality – we promise you that everything aesthetically beautiful is also reliable.
What might you like here?
• Solar panels
• Smart house system
• Cooling capacity in some apartments
• Elevator
• Balconies
• Terraces
• Underground parking
• Playground
• Fenced yard
• Closed bicycle parking
Distances: sea 750 m, Tabasalu 24/7 Fitness 1.4 km, childcare 300 m, Tiskre Prisma 850 m, bus stop 290 m, Rocca al Mare Centre 5.2 km, Tabasalu Selver 1.4 km, Tiskre 24/7 Alexela 750 m.
Yours The construction of a new comfortable A-energy class home is in full swing and the buildings have already reached their full height.
Contact us to secure an apartment with the best layout for your family in this wonderful new development, which will be completed in May 2025.
You can find more detailed prices, plans, sales conditions and everything else on the website: https://taludevahe.ee/
The price of the apartment does not include the price of a parking space and storage room:
• Storage room 3.5-4m2 5,000 euros
• Parking space under the house 12,000 euros
• Parking space outside 7,000 euros
NB! The pictures of the apartment are illustrative! The price does not include the furniture in the pictures.
SHARE MY CONTACT WITH EVERYONE WHO NEEDS REAL ESTATE ADVICE!
- - - - - - - - - - -
Order an appraisal from UUS MAA Real Estate Agency https://uusmaa.ee/teenused/hindamine/
and you will get:
- Expert appraisal up to 20% cheaper than taking a home loan from Swedbank
- The best home loan terms from banks
- Fast, high-quality and reliable appraisal service in Estonia
THE EXPERT APPRAISALS OF UUS MAA REAL ESTATE AGENCY ARE ACCEPTED BY ALL FINANCIAL INSTITUTIONS.
- - - - - - - - - -
Subscribe to the Uus Maa newsletter and get tomorrow's real estate information today!
https://www.uusmaa.ee/uudiskirjagaliitumine/
- - - - - - - - - - -
Swedbank helps you buy a home.
To receive an offer, use the code UUSMAA and you will be served in priority order.
We will contact you within 1 business day.
A more favorable contract fee for Uus Maa clients. Ask a broker for more detailed information.
Financial services are offered by Swedbank AS. Read the terms and conditions, consult.































