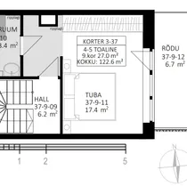
Astangu 50B/3-37 is a 122.6 m2 penthouse apartment, which includes a 25.7m2 balcony. The discounted price of the apartment is €452,300
The apartment price does not include the cost of storage room and parking spaces.
Storage room price starts from €5,500,
Parking space prices start from €10,000.
Ask the sales representative for information about other apartments for sale or check the development website: https://fundehitus.ee/marjamae/
Architectural bureau Puusepp & Mänd OÜ has planned 3 modern-looking apartment buildings on the property, to be built in two stages – first, a 9-story building with 38 apartments will be completed, followed by two 7-story apartment buildings in the next stage. The buildings are connected by an underground parking floor. Each building has a spacious elevator, storage rooms, and bicycle storage areas. There is a selection of 2- to 5-room apartments ranging from 48-137 m², from which you will certainly find the most suitable one. Thanks to large windows and open floor plans, the apartments are spacious and bright. Each apartment has a balcony or terrace. Inspired by nature-close tones, we have created interior finishing solutions in collaboration with an interior architect. A courtyard area will be built on the property, where it is possible to relax and unwind in every season. A safe playground is planned for the youngest family members. The terrain between the buildings can be used as a sledding hill during winter.
More information at: https://fundehitus.ee/marjamae/






















