THE IMAGES IN THE AD REFLECT REALITY, I.E. THEY ARE TAKEN SPECIFICALLY FOR THIS APARTMENT.
Discover Raemõisa, a beautiful and comprehensive new residential development located just 3.5km from Tallinn's city limits.
A NEW GREEN A-ENERGY CLASS HOME ON THE CITY BORDER.
- A-energy class - Each apartment has a balcony or terrace - Experienced developer Reterra and builder Mapri Ehitus - 2-5 room apartments - Ceilings up to 3 meters high - Quality interior finishing - Next (fifth) stage will be completed in early 2026.
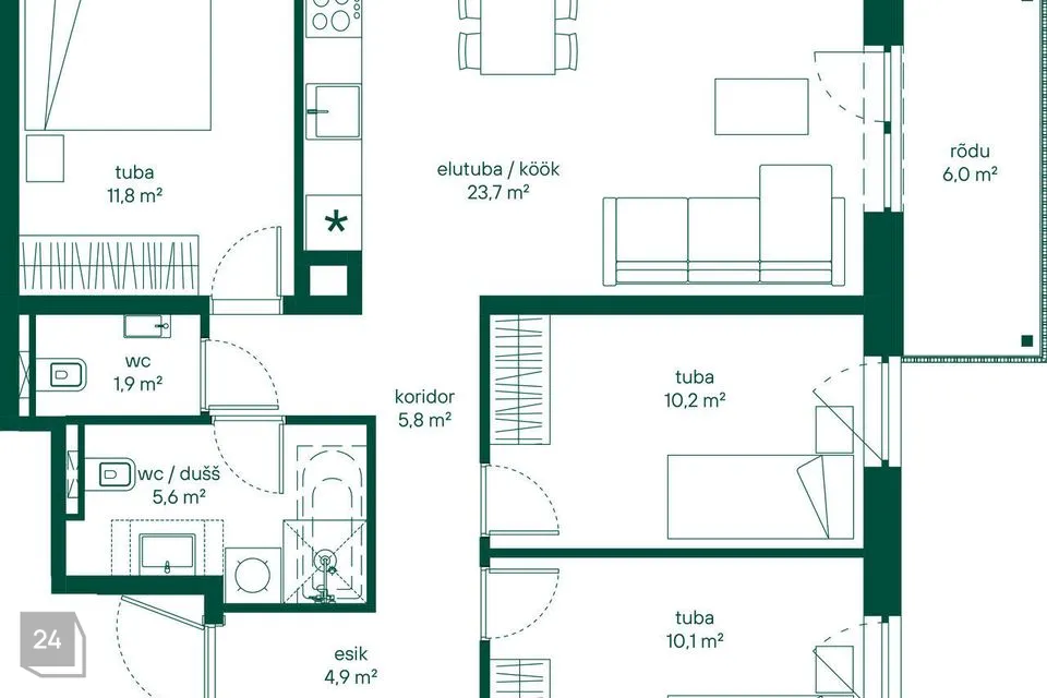
ARCHITECTURE AND LAYOUTS
The new residential area is designed by renowned PIN architects and built following MAPRI's high-quality standards. Three-story apartment buildings feature modern architecture, are energy-efficient, and equipped with an elevator. The development offers 2- to 5-room apartments ranging from 40 m2 to 91 m2. Meticulously thought-out solutions make living comfortably convenient and management simple. Each apartment comes with a separate balcony or terrace. Large windows and spacious first-floor terraces bring plenty of natural light into every apartment. Apartment ceiling heights are approximately 3 meters, suspended ceilings in dry rooms are around 2.6 meters, and in wet rooms around 2.3 meters. Trendy and high-quality interior finishing packages were created under the leadership of PIN Architects' interior designer Katrin Kaevats. Apartments can be purchased with a built-in designer kitchen that the client can choose themselves.
HEATING AND VENTILATION
The new residential buildings have been awarded a particularly energy-efficient A-energy class, with solar panels on the roofs. Heating is provided by a local air-to-water heat pump, and apartments have room-specific water underfloor heating. Each apartment has a heat recovery forced ventilation system, and the buildings' ventilation system is constructed on a per-apartment basis.
STORAGE AND PARKING
Each apartment is allocated one storage room located on the first floor. The storage room price is 2500 euros. Parking spaces are conveniently located near the buildings. Options include standard outdoor parking spaces priced at 5000 euros and separate parking spaces with electric charging readiness priced at 8500 euros. A new extended bicycle path runs alongside the development.
LOCATION
Around the buildings are multiple bicycle paths for walking, attractive playgrounds for children of different ages, herb boxes for gardening enthusiasts, and opportunities for sports activities. The Raemõisa development itself is located in the quiet and green Rae village, with quick and good connectivity to Tallinn city via Tartu Highway. Conveniently located near the homes are kindergartens-schools, sports complexes, shopping centers, and grocery stores. A new Raemõisa school is planned in the neighborhood of the development.
COMPLETION
A total of 270 apartments are planned in the development. I stage (Dolomiidi tee 2/1, 2/2 and 2/3): completed, sold out. II stage (Graniidi tee 23/1 and 23/2): almost sold out (only 2 apartments left), completed in May 2024. III stage (Graniidi tee 23/3 and Graniidi tee 23/4): on sale, completed in November 2024. IV stage (Graniidi tee 23/5, 23/6 and 23/7): on sale, will be completed in December 2025. V stage: under design, pre-sale coming soon!
https://raemoisa.ee
Discover Raemõisa, a beautiful and comprehensive new residential development located just 3.5km from Tallinn's city limits.
A NEW GREEN A-ENERGY CLASS HOME ON THE CITY BORDER.
- A-energy class - Each apartment has a balcony or terrace - Experienced developer Reterra and builder Mapri Ehitus - 2-5 room apartments - Ceilings up to 3 meters high - Quality interior finishing - Next (fifth) stage will be completed in early 2026.
ARCHITECTURE AND LAYOUTS
The new residential area is designed by renowned PIN architects and built following MAPRI's high-quality standards. Three-story apartment buildings feature modern architecture, are energy-efficient, and equipped with an elevator. The development offers 2- to 5-room apartments ranging from 40 m2 to 91 m2. Meticulously thought-out solutions make living comfortably convenient and management simple. Each apartment comes with a separate balcony or terrace. Large windows and spacious first-floor terraces bring plenty of natural light into every apartment. Apartment ceiling heights are approximately 3 meters, suspended ceilings in dry rooms are around 2.6 meters, and in wet rooms around 2.3 meters. Trendy and high-quality interior finishing packages were created under the leadership of PIN Architects' interior designer Katrin Kaevats. Apartments can be purchased with a built-in designer kitchen that the client can choose themselves.
HEATING AND VENTILATION
The new residential buildings have been awarded a particularly energy-efficient A-energy class, with solar panels on the roofs. Heating is provided by a local air-to-water heat pump, and apartments have room-specific water underfloor heating. Each apartment has a heat recovery forced ventilation system, and the buildings' ventilation system is constructed on a per-apartment basis.
STORAGE AND PARKING
Each apartment is allocated one storage room located on the first floor. The storage room price is 2500 euros. Parking spaces are conveniently located near the buildings. Options include standard outdoor parking spaces priced at 5000 euros and separate parking spaces with electric charging readiness priced at 8500 euros. A new extended bicycle path runs alongside the development.
LOCATION
Around the buildings are multiple bicycle paths for walking, attractive playgrounds for children of different ages, herb boxes for gardening enthusiasts, and opportunities for sports activities. The Raemõisa development itself is located in the quiet and green Rae village, with quick and good connectivity to Tallinn city via Tartu Highway. Conveniently located near the homes are kindergartens-schools, sports complexes, shopping centers, and grocery stores. A new Raemõisa school is planned in the neighborhood of the development.
COMPLETION
A total of 270 apartments are planned in the development. I stage (Dolomiidi tee 2/1, 2/2 and 2/3): completed, sold out. II stage (Graniidi tee 23/1 and 23/2): almost sold out (only 2 apartments left), completed in May 2024. III stage (Graniidi tee 23/3 and Graniidi tee 23/4): on sale, completed in November 2024. IV stage (Graniidi tee 23/5, 23/6 and 23/7): on sale, will be completed in December 2025. V stage: under design, pre-sale coming soon!
https://raemoisa.ee














































