Rent Warehouse and Production Spaces in Pirita Kose.
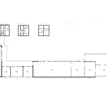
On the drawing, the rentable area is marked: Warehouse 1-3, total 1205 m2
Rooms marked in gray on the drawing are already rented, the remaining rooms are available.
Hunditubaka tee 7 Warehouse and administrative building size 1860 m2
Hunditubaka tee 7 Warehouse 630 m2
Total rentable area 4758 m2.
Tenant reduced activity in Estonia, which is why the existing contract was terminated.
Gas heating
Electrical capacity: 200A + 250A
Warehouse height to fermin 5.5 m
Free parking in the yard
Share my contact with everyone who needs real estate advice!
On the drawing, the rentable area is marked: Warehouse 1-3, total 1205 m2
Rooms marked in gray on the drawing are already rented, the remaining rooms are available.
Hunditubaka tee 7 Warehouse and administrative building size 1860 m2
Hunditubaka tee 7 Warehouse 630 m2
Total rentable area 4758 m2.
Tenant reduced activity in Estonia, which is why the existing contract was terminated.
Gas heating
Electrical capacity: 200A + 250A
Warehouse height to fermin 5.5 m
Free parking in the yard
Share my contact with everyone who needs real estate advice!









































