1 / 4
2 / 4
3 / 4
4 / 4
Like what you saw?
NB! Good offers are taken quickly.
Description
Automatically translated
A new modern business building will be completed in Saue city by the summer of 2026, bringing fresh breath to the area's business environment. Here, companies have a rare opportunity to start their operations in a completely new and high-quality business house, located in one of the city's most visible and convenient locations — at the corner of Pärnasalu and Tule Streets.


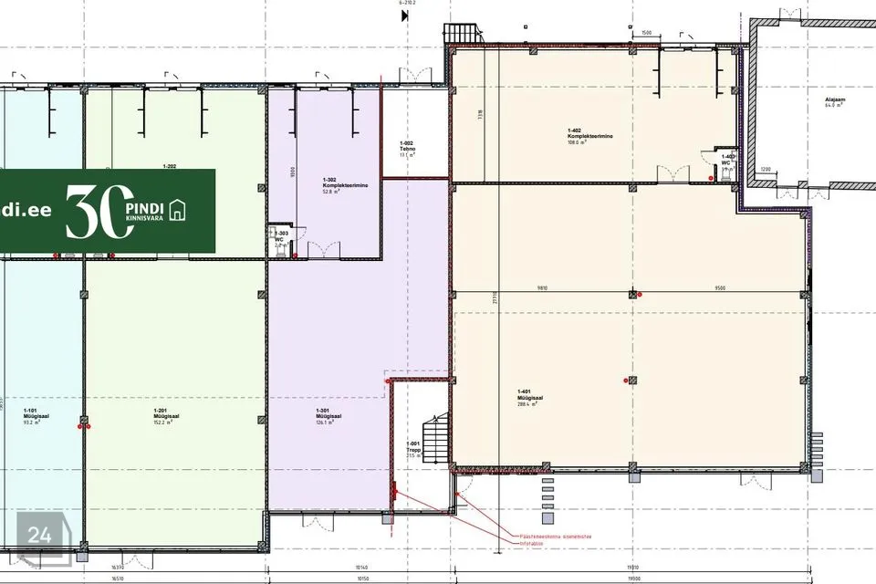
A spacious representative space of 288.4 m² is available for rent, along with 108 m² of warehouse space.
This is a large and light-filled business space on the first floor, which is ideal for retail, services, showroom, or why not a combined business solution with a warehouse.
The representative space has an open layout and a large street-facing display window, ensuring good visibility and an excellent opportunity to advertise your business.


The warehouse space is located on the same floor and can be connected to the business space, allowing convenient storage of goods or used as additional space for work or service areas.


Space properties:
Representative space: 288.4 m²


Warehouse space: 108.0 m²


Large display windows and good visibility


Possible to combine or adapt according to company needs


Free parking in front of the building for both clients and employees


Modern interior finishing and energy efficiency


A location that brings visibility and customers to your business
The intersection of Pärnasalu and Tule Streets is one of Saue's most active traffic nodes, where local residents and city transit pass daily. Nearby are several residential areas, shops, a school, and Saue train station, which quickly connects Saue to Tallinn and Keila. This is an area where residential and business activity has grown rapidly in recent years, with more developments expected in the coming years.


Rental price:
Representative space: €9.5/m² + VAT
Warehouse space: €9.5/m² + VAT
Additional side costs according to consumption.
VAT will be added to the rental price.


More opportunities in the same building!
In addition to this space, Pärnasalu 34 offers various sizes and solutions on both the 1st and 2nd floors.
On the 1st floor, spacious business spaces from 147–398 m² and on the 2nd floor, light-filled offices and beauty service rooms from 26–75 m². Possibility to combine spaces and create up to 1000 m² business solutions on one floor.


Contact us and request a suitable space offer today!



-------------------------------------------------------------------------------------------------------------------------------------------------------


BANK BENEFITS We cooperate with all major banks! As our client, you will be served in priority order, and home loan contract fees come with discounts.


MEDIATION Pindi Real Estate has offered representative services in the real estate market since 1995. As the largest real estate agency in Estonia, we are represented in 18 cities.


PURCHASE REPRESENTATION Looking for real estate? We'll make your search process smooth and pleasant. We have a large client base and dedicated brokers.


VALUATION Our 30 professional appraiser expert assessments are accepted by all financial institutions! We appraise both residential and commercial real estate.


MANAGEMENT We offer a full solution for real estate management: accounting, maintenance of technical systems, landscaping on the property and in the building, organization of construction and renovation works, mediation of energy, water and communication services, and special cleaning services.


LEGAL CONSULTING Specialists from Pindi Real Estate's subsidiary Realia Legal Bureau are here to help you with all legal matters concerning real estate.


Read more and contact: https://www.pindi.ee/ or consult with your broker.


Pärnasalu tn 34, Saue linn

A-energy class commercial building!

Saue vald, Harju maakondÜürida|business

3 784 €
9.5 €/m²
Area
398.30 m²
Commercial type
Commerce, service, food
Floor
1/2
Construction year
2026
Energy class
A
Rooms
2
Land area
3115m²
Cadastral identification
72601:001:1031

Interested? Ask for more details!