Domus Kinnisvara clients enjoy special offers from banks.
Sell or get Your property appraised with us!
Sell or get Your property appraised with us!
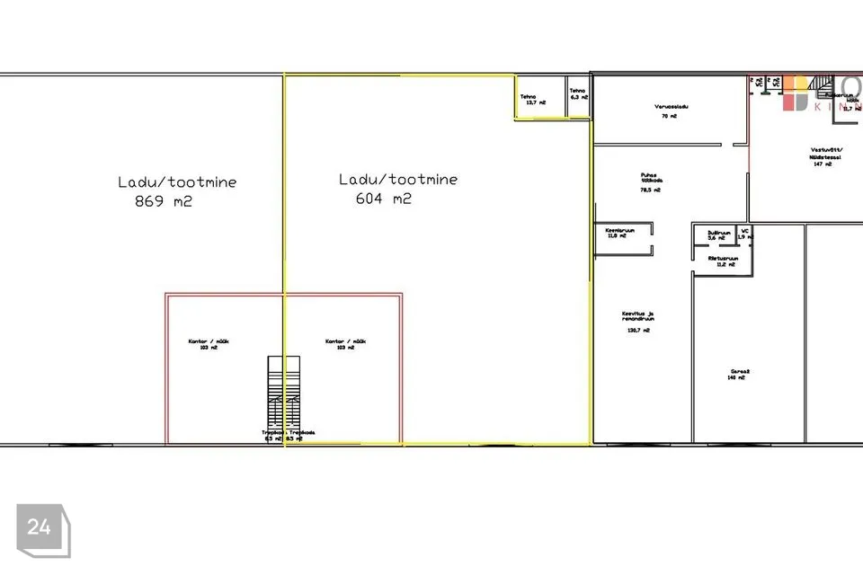
Area | 818.50 m² |
Commercial type | Bureau, warehouse, manufacture |
Condition | New development |
Floor | 1/2 |
Energy class | A |
Building construction material | Panel |
Land area | 8748m² |
Cadastral identification | 65301:001:5755 |

