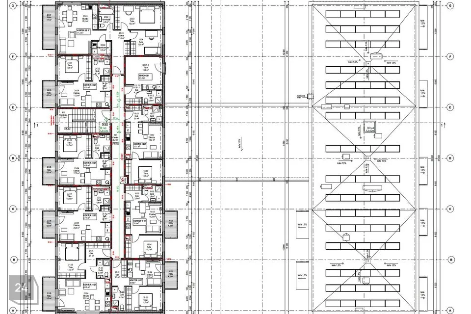
The new development "Avar 8" is a modern 4-storey residential building with 56 apartments and commercial premises in the center of Maardu.
The completion date of the building is July 2025.
The building has 1-3 room apartments. All apartments have a well-thought-out layout, each apartment also has a glazed balcony.
A parking space in the yard and a storage room can be purchased with the living space.
The building has an A energy class, which ensures low utility costs all year round.
LOCATION:
The building is located in the heart of Maardu. There are schools, kindergartens, shops, a gym and fitness trails in the vicinity.
Fast public transport connection to the city of Tallinn.
TECHNICAL SOLUTIONS:
- Water floor heating
- Apartment-based heating accounting
- Ventilation unit with heat recovery in each apartment
- Remotely readable electricity, water and heating meters
- Solar panels
- Trolley and bicycle room on the first floor
- Territory separated by a barrier
- Bicycle parking spaces on the territory
The price-quality ratio of Avar 8 is very good. Here you can buy a 3-room apartment for the same price as 2-room new apartments in Lasnamäe.
We are happy to answer all additional questions, call and find out more!
SHARE MY CONTACT WITH EVERYONE WHO NEEDS REAL ESTATE ADVICE!
- - - - - - - - - - -
Order an appraisal from UUS MAA Real Estate Agency https://uusmaa.ee/teenused/hindamine/
ALL FINANCIAL INSTITUTIONS ACCEPT EXPERT APPRAISALS FROM UUS MAA REAL ESTATE AGENCY.
- - - - - - - - - - -
Subscribe to the Uus Maa newsletter and get tomorrow's real estate information today!
https://www.uusmaa.ee/uudiskirjagaliitumine/
- - - - - - - - - - -
Swedbank helps you buy a home.
To receive an offer, use the code UUSMAA and you will be served in priority order.
We will contact you within 1 business day.
A more favorable contract fee for Uus Maa clients. Ask a broker for more detailed information.
Financial services are offered by Swedbank AS. Read the terms and conditions, consult.
The completion date of the building is July 2025.
The building has 1-3 room apartments. All apartments have a well-thought-out layout, each apartment also has a glazed balcony.
A parking space in the yard and a storage room can be purchased with the living space.
The building has an A energy class, which ensures low utility costs all year round.
LOCATION:
The building is located in the heart of Maardu. There are schools, kindergartens, shops, a gym and fitness trails in the vicinity.
Fast public transport connection to the city of Tallinn.
TECHNICAL SOLUTIONS:
- Water floor heating
- Apartment-based heating accounting
- Ventilation unit with heat recovery in each apartment
- Remotely readable electricity, water and heating meters
- Solar panels
- Trolley and bicycle room on the first floor
- Territory separated by a barrier
- Bicycle parking spaces on the territory
The price-quality ratio of Avar 8 is very good. Here you can buy a 3-room apartment for the same price as 2-room new apartments in Lasnamäe.
We are happy to answer all additional questions, call and find out more!
SHARE MY CONTACT WITH EVERYONE WHO NEEDS REAL ESTATE ADVICE!
- - - - - - - - - - -
Order an appraisal from UUS MAA Real Estate Agency https://uusmaa.ee/teenused/hindamine/
ALL FINANCIAL INSTITUTIONS ACCEPT EXPERT APPRAISALS FROM UUS MAA REAL ESTATE AGENCY.
- - - - - - - - - - -
Subscribe to the Uus Maa newsletter and get tomorrow's real estate information today!
https://www.uusmaa.ee/uudiskirjagaliitumine/
- - - - - - - - - - -
Swedbank helps you buy a home.
To receive an offer, use the code UUSMAA and you will be served in priority order.
We will contact you within 1 business day.
A more favorable contract fee for Uus Maa clients. Ask a broker for more detailed information.
Financial services are offered by Swedbank AS. Read the terms and conditions, consult.
































