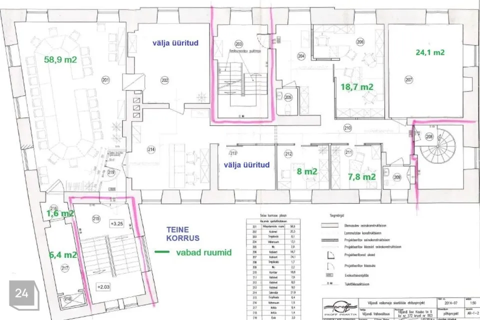
Viljandi vanalinnas on välja üürida kogu Kauba tn 9 hoone II korrus. Korrusele pääseb eraldi sissepääsudest Kauba tn poolt ja otse parklast. Kogu korrus võib olla privaatselt sinu kasutuses.
Võimalus kogu korrus muuta omale sobivaks, kasutada ruume enda tegevuseks. Omanik on nõus ümberehitust teostama vastavalt kliendi vajadusele.
Võta kindlasti ühendust ja arutame variandid läbi!
Tutvu fotode hulgas olevate korruste plaanidega.
Hoones on elektriküte. Kaugküttetorustik on hoones olemas, kuid vajalik välja ehitada (paigaldada küttekehad).
Elekter: 3 faasi, 125A
Elektriarve suurus 2025 augustis oli 278€.
Parkimine kinnistu hoovis vabade kohtade olemasolul (mahutab 4-5 sõiduautot).
Kui soovid selle arhitektuurse hoone II korrust üürida, siis tuleb tasuda 1 kuu üür ette (1600€), ühe kuu üür tagatisrahaks (1600€, võimalik tasuda osadena) ja lepingutasu 800€ + km.
Üürihinnale lisandub käibemaks.
Võta ühendust ja lähme vaatama: www.lahekinnisvara.ee/Karin
Eksperthinnanguid koostab kiirelt:
Lauri Pärnaku (www.lahekinnisvara.ee/Lauri)
Võimalus kogu korrus muuta omale sobivaks, kasutada ruume enda tegevuseks. Omanik on nõus ümberehitust teostama vastavalt kliendi vajadusele.
Võta kindlasti ühendust ja arutame variandid läbi!
Tutvu fotode hulgas olevate korruste plaanidega.
Hoones on elektriküte. Kaugküttetorustik on hoones olemas, kuid vajalik välja ehitada (paigaldada küttekehad).
Elekter: 3 faasi, 125A
Elektriarve suurus 2025 augustis oli 278€.
Parkimine kinnistu hoovis vabade kohtade olemasolul (mahutab 4-5 sõiduautot).
Kui soovid selle arhitektuurse hoone II korrust üürida, siis tuleb tasuda 1 kuu üür ette (1600€), ühe kuu üür tagatisrahaks (1600€, võimalik tasuda osadena) ja lepingutasu 800€ + km.
Üürihinnale lisandub käibemaks.
Võta ühendust ja lähme vaatama: www.lahekinnisvara.ee/Karin
Eksperthinnanguid koostab kiirelt:
Lauri Pärnaku (www.lahekinnisvara.ee/Lauri)
Kinnisvara hindamine ja kinnisvara müük Lahe Kinnisvara kutselistelt hindajatelt ja maakleritel, kes on pälvinud klientide kõrge tunnustuse!






























