Viljandi kesklinnas/ vanalinnas rendile anda suurepärase asukohaga eraldi ruumid, hoone 0. ja 1. korrusel.
Tallinna 2A, hoone 1.korrus ja 0.korrus.
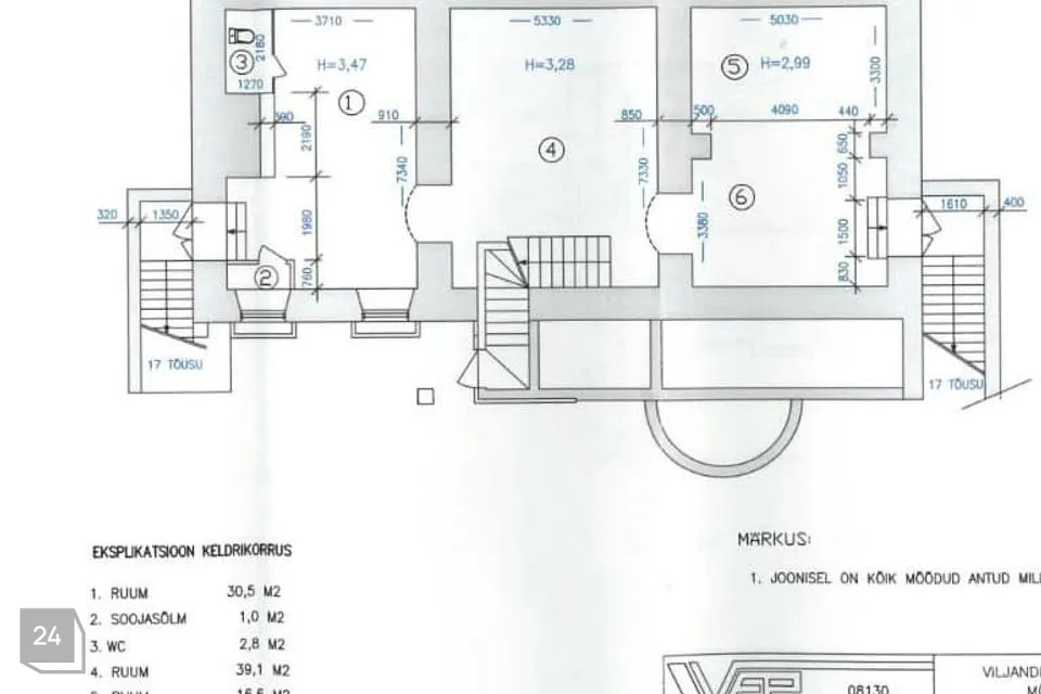
0.korruse ruumid:
Ruum 1, 27m2 -broneeritud
Ruum 2, 40m2- 240€
Ruum 3. 33m2- 220€
1. korrusel 4 ruumi pindalaga: 10-43 m2.
Kabinet -10 m2- 180€
Kabinet - 20,4 m2- 240€
Kabinet - 25 m2- 300€
Müügisaal- 43m3- 550€
Hinnale lisandub kehtiv käibemaks ja kommunaalkulud, esimesele maksele lisandub lepingu sõlmimistasu 120€+ km
Tualett/ duširuum eraldi (ühiskasutatavad 1. ja 0. korruse kasutajatele).
Panipaigad- võimalik lisaks rentida.
0.korruse ligipääs kolmest erinevast uksest.
Kõrged laed, maakivist seinad/vundament.
Kõiki ruume on võimalik kujundada vastavalt soovile.
Hoone asub Viljandi peatänaval, tiheda liiklusega tänaval.
Sisehoov väikese terrassiga pakub privaatsust ja mugavat parkimist.























