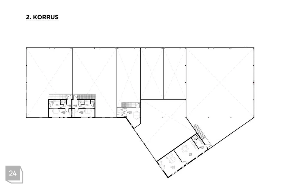
Valmib juulis 2025. Autopesulaks sobiv ruum, väikse kontori ja olmeosaga teisel korrusel, wc ,dušširuum. Lisainfo viljandiäripinnad.ee
Valmib juulis 2025. Autopesulaks sobiv ruum, väikse kontori ja olmeosaga teisel korrusel, wc ,dušširuum. Lisainfo viljandiäripinnad.ee
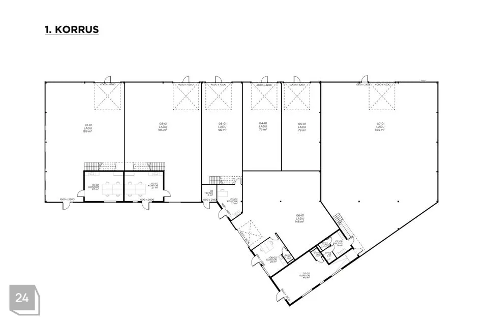
Pindala | 140.00 m² |
Äripinna tüüp | Teenindus, ladu, tootmine, stock office |
Seisukord | Ehitamisel |
Korrus | 1/2 |
Ehitusaasta | 2025 |
Energiaklass | B |
Hoone materjal | Paneelmaja |
Tube | 3 |
Krundi pindala | 3136m² |
Katastritunnus | 89718:001:0049 |

