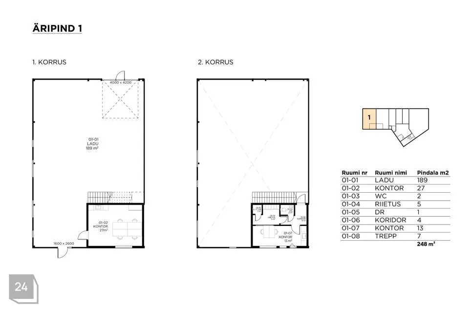
2025 juulis valmiv ärihoone mida võib kasutada erinevateks vajadusteks. See4 on Raua tänava poolne äripind kus on suured aknad Raua tänava poole. Peale müügisaali on esimesel korrusel büroo osa ja teisel korrusel olmeruumid koos wc ja dušširuumiga. Lisainfo viljandiäripinnad.ee lehel











