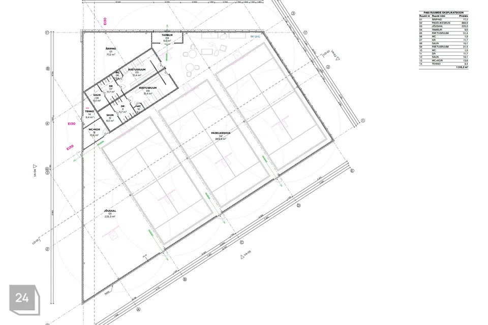
2025 sügisel valmib Paala tee 65 kinnistule 3 väljakuga padelikeskus. Padeliväljaku sisekõrgus on 8 meetrit. Padelikeskuse juurde saab teha 225 m2 jõusaali või midagi muud. Lisainfo arenduse kohta tel. 56****** Raul Alliksaar
2025 sügisel valmib Paala tee 65 kinnistule 3 väljakuga padelikeskus. Padeliväljaku sisekõrgus on 8 meetrit. Padelikeskuse juurde saab teha 225 m2 jõusaali või midagi muud. Lisainfo arenduse kohta tel. 56****** Raul Alliksaar
Pindala | 1106.00 m² |
Äripinna tüüp | Muu |
Seisukord | Ehitamisel |
Korrus | 1/1 |
Ehitusaasta | 2025 |
Energiaklass | B |
Katastritunnus | 89718:001:0053 |

