Üürile anda äripind Viljandi kesklinnas!
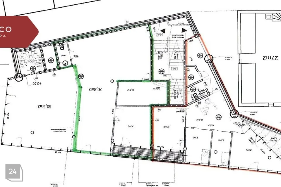
Üürile anda 103 m² suurune äripind suure avatud ruumiga (70,8 m²), lisaks kaks eraldi tuba ning oma tualett. Pind asub hoone 2. korrusel, on rõdu ja suurepärase vaatega. Põhjaplaanil on üüritav pind märgitud rohelisega.
Tehnilised tingimused:
kaasaegsed kommunikatsioonisüsteemid
soojustagastusega ventilatsioon
elekter, tsentraalne vesi ja kanalisatsioon
valvesüsteem ja internetiühendus
Kulud:
Fikseeritud kommunaalkulud: kütteperioodil 200 €, suvisel ajal 150 €
Lisainfo:
Praegu tegutseb pinnal kauplus, kes on valmis ruumid uuele üürnikule üle andma (etteteatamise aeg kuni 3 kuud).
Üürileandja on paindlik ja avatud läbirääkimisteks.
Huvi korral võta ühendust:
Sirli Leevit
Tel_5555 ****
Üürile anda 103 m² suurune äripind suure avatud ruumiga (70,8 m²), lisaks kaks eraldi tuba ning oma tualett. Pind asub hoone 2. korrusel, on rõdu ja suurepärase vaatega. Põhjaplaanil on üüritav pind märgitud rohelisega.
Tehnilised tingimused:
kaasaegsed kommunikatsioonisüsteemid
soojustagastusega ventilatsioon
elekter, tsentraalne vesi ja kanalisatsioon
valvesüsteem ja internetiühendus
Kulud:
Fikseeritud kommunaalkulud: kütteperioodil 200 €, suvisel ajal 150 €
Lisainfo:
Praegu tegutseb pinnal kauplus, kes on valmis ruumid uuele üürnikule üle andma (etteteatamise aeg kuni 3 kuud).
Üürileandja on paindlik ja avatud läbirääkimisteks.
Huvi korral võta ühendust:
Sirli Leevit
Tel_5555 ****
--
Müüme, hindame ja teeme Sinu kinnisvara dokumendid korda - iga päev, suurima rõõmu ja pühendumisega!
Edasta müügisoov www.arcovara.ee/et/#edasta-myygisoov
Telli hindamine www.arcovara.ee/et/#telli-hindamine
Saada ehitus- või kasutusloa soov seadustamine.arcovara.ee
























