Üürile on saabunud hea nähtavuse ja juurdepääsuga äripind Turu tänaval.
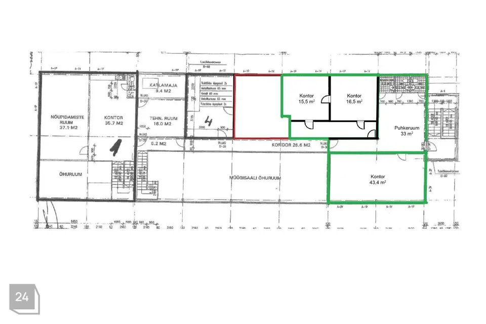
Üüritav äripind koosneb kokku 4 erinevast ruumist, millest kaks väiksemat 16,5 ja 15,5 m² ruumid jäävad kergliiklustee ja hommikupäikese suunas. Teise, suurema ruumi akand jäävad maja ette, loode suunda, tagades sellesse ruumi mõnusa õhtupäikese. Maja siseossa jääb suurem ruum, mida saab puhke või ooteruumiks kasutada - sõltub ärilistest vajadustest. Pinnal on olemas ka oma tualetid.
Üüritav pind jääb maja teisele korrusele.
Äripinna eelised:
- Tasuta parkimine
- Elektrooniline valve
- Hea nähtavus
- Hea juurdepääs
- Ümberringi palju ärisid - rohkelt koostöö võimalusi.
Üürilepingu sõlmimisel tuleb tasuda tagatisraha, esimese kuu üürisumma ettemaksuna ning maaklerteenuse tasu 50/50 põhimõttel.
Kui see äripind kõnetab teid, võtke minuga ühendust ja korraldan äripinna visiidi.
Pangad pakuvad Domus Kinnisvara klientidele eluasemelaenu lepingutasu soodustusi. Küsi lisainfot Domus Kinnisvara maaklerilt või hindajalt.
Müü ja hinda meiega! Teeme kinnisvara müügi Sinu jaoks sujuvaks ja pingevabaks.
Üüritav äripind koosneb kokku 4 erinevast ruumist, millest kaks väiksemat 16,5 ja 15,5 m² ruumid jäävad kergliiklustee ja hommikupäikese suunas. Teise, suurema ruumi akand jäävad maja ette, loode suunda, tagades sellesse ruumi mõnusa õhtupäikese. Maja siseossa jääb suurem ruum, mida saab puhke või ooteruumiks kasutada - sõltub ärilistest vajadustest. Pinnal on olemas ka oma tualetid.
Üüritav pind jääb maja teisele korrusele.
Äripinna eelised:
- Tasuta parkimine
- Elektrooniline valve
- Hea nähtavus
- Hea juurdepääs
- Ümberringi palju ärisid - rohkelt koostöö võimalusi.
Üürilepingu sõlmimisel tuleb tasuda tagatisraha, esimese kuu üürisumma ettemaksuna ning maaklerteenuse tasu 50/50 põhimõttel.
Kui see äripind kõnetab teid, võtke minuga ühendust ja korraldan äripinna visiidi.
Pangad pakuvad Domus Kinnisvara klientidele eluasemelaenu lepingutasu soodustusi. Küsi lisainfot Domus Kinnisvara maaklerilt või hindajalt.
Müü ja hinda meiega! Teeme kinnisvara müügi Sinu jaoks sujuvaks ja pingevabaks.





















