Tartu linnas Raja ja Lääneringtee ristmikul asuv uus ärimaja on modernne, kahe maapealse ja ühe maa-aluse korrusega hoone, mille arhitektuur on valgusküllane, elegantne ja ümbritsevasse keskkonda sobituv. Projekti fookuses on funktsionaalsus, kvaliteet ja suurepärane nähtavus.
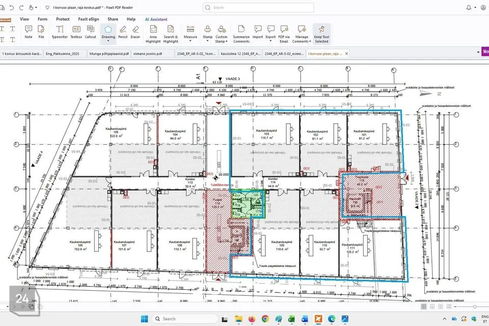
Esimesel korrusel paiknevad kaubandus- ja teeninduspinnad kogupindalaga ligikaudu 1250 m², mida on võimalik kasutada ühe suure äripinnana ilma vajaduseta ruume väiksemateks osadeks jagada. Pind ei nõua eraldi koridoride rajamist ning kogu põrandapinda saab kasutada tõhusalt ettevõtte äriliseks tegevuseks. Soovi korral pakume üürile ka pool kogupinnast, ehk ligikaudu 640 m² suurust pinda.
Vajadusel saab vastavalt üürniku soovidele ruumi paindlikult jagada väiksemateks üksusteks. Tänu 5-meetrisele sisekõrgusele on võimalik soovi korral lisada ka vahekorrus, mis loob lisapinda ja mitmekülgseid kasutusvõimalusi. Kõigil äripindadel on eraldi sissepääs tänavalt.
Maa-alusele korrusele on planeeritud parkimiskohad ning panipaigad ja laopinnad (kogupindalaga ligikaudu 450 m²), mis pakuvad ettevõtetele lisamugavust. Laopindade kasutamist teeb eriti mugavaks transportlift, mis ühendab maa-aluse korruse esimese korrusega ja võimaldab kauba lihtsat liikumist korruste vahel.
Hoone arhitektuuri ilmestavad kvaliteetsed fassaadiplaadid ja eenduvad arhitektuursed detailid, mis annavad hoonele esindusliku ilme. Sissepääsude kohal asuvad varikatused loovad kutsuva mulje ning rõhutavad äripindade nähtavust.
Hoone vastas üle tee asub Lõuna-Eesti suurim kaubanduskeskus Lõunakeskus, mis toob piirkonda rohkelt külastajaid ja tagab suure külastatavuse kõikidele äripindadele. Lisaks asub ühistranspordi peatus otse hoone ees, mis tagab mugava ligipääsu nii klientidele kui töötajatele.
Tutvu projekti kodulehega aadressil www.raja33.ee
JAGA MINU KONTAKTI KÕIGILE, KES VAJAVAD KINNISVARANÕU!
- - - - - - - - - -
Telli hindamine UUS MAA Kinnisvarabüroolt https://uusmaa.ee/teenused/hindamine/
UUS MAA KINNISVARABÜROO EKSPERTHINNANGUID AKTSEPTEERIVAD KÕIK FINANTSASUTUSED.
- - - - - - - - - -
Liitu Uus Maa uudiskirjaga ja saa homset kinnisvarainfot juba täna!
https://www.uusmaa.ee/uudiskirjagaliitumine/
- - - - - - - - - -
Kodu aitab osta Swedbank.
Pakkumise saamiseks kasuta koodi UUSMAA ja Sind teenindatakse eelisjärjekorras.
Võtame ühendust 1 tööpäeva jooksul.
Uus Maa kliendile soodsam lepingutasu. Küsi täpsemat infot maaklerilt.
Finantsteenuseid pakub Swedbank AS. Tutvu tingimustega, pea nõu.
Esimesel korrusel paiknevad kaubandus- ja teeninduspinnad kogupindalaga ligikaudu 1250 m², mida on võimalik kasutada ühe suure äripinnana ilma vajaduseta ruume väiksemateks osadeks jagada. Pind ei nõua eraldi koridoride rajamist ning kogu põrandapinda saab kasutada tõhusalt ettevõtte äriliseks tegevuseks. Soovi korral pakume üürile ka pool kogupinnast, ehk ligikaudu 640 m² suurust pinda.
Vajadusel saab vastavalt üürniku soovidele ruumi paindlikult jagada väiksemateks üksusteks. Tänu 5-meetrisele sisekõrgusele on võimalik soovi korral lisada ka vahekorrus, mis loob lisapinda ja mitmekülgseid kasutusvõimalusi. Kõigil äripindadel on eraldi sissepääs tänavalt.
Maa-alusele korrusele on planeeritud parkimiskohad ning panipaigad ja laopinnad (kogupindalaga ligikaudu 450 m²), mis pakuvad ettevõtetele lisamugavust. Laopindade kasutamist teeb eriti mugavaks transportlift, mis ühendab maa-aluse korruse esimese korrusega ja võimaldab kauba lihtsat liikumist korruste vahel.
Hoone arhitektuuri ilmestavad kvaliteetsed fassaadiplaadid ja eenduvad arhitektuursed detailid, mis annavad hoonele esindusliku ilme. Sissepääsude kohal asuvad varikatused loovad kutsuva mulje ning rõhutavad äripindade nähtavust.
Hoone vastas üle tee asub Lõuna-Eesti suurim kaubanduskeskus Lõunakeskus, mis toob piirkonda rohkelt külastajaid ja tagab suure külastatavuse kõikidele äripindadele. Lisaks asub ühistranspordi peatus otse hoone ees, mis tagab mugava ligipääsu nii klientidele kui töötajatele.
Tutvu projekti kodulehega aadressil www.raja33.ee
JAGA MINU KONTAKTI KÕIGILE, KES VAJAVAD KINNISVARANÕU!
- - - - - - - - - -
Telli hindamine UUS MAA Kinnisvarabüroolt https://uusmaa.ee/teenused/hindamine/
UUS MAA KINNISVARABÜROO EKSPERTHINNANGUID AKTSEPTEERIVAD KÕIK FINANTSASUTUSED.
- - - - - - - - - -
Liitu Uus Maa uudiskirjaga ja saa homset kinnisvarainfot juba täna!
https://www.uusmaa.ee/uudiskirjagaliitumine/
- - - - - - - - - -
Kodu aitab osta Swedbank.
Pakkumise saamiseks kasuta koodi UUSMAA ja Sind teenindatakse eelisjärjekorras.
Võtame ühendust 1 tööpäeva jooksul.
Uus Maa kliendile soodsam lepingutasu. Küsi täpsemat infot maaklerilt.
Finantsteenuseid pakub Swedbank AS. Tutvu tingimustega, pea nõu.




















